Pankhurst Avenue, Royal Docks, London, E16
By Keatons
£ 600,000
Reviews
3 out of 5 stars
Keatons says ..
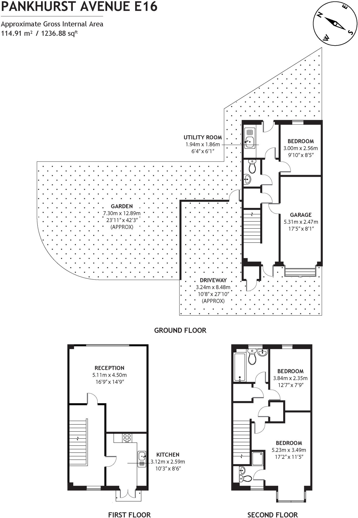
Spaciously arranged over three excellent floors is this wonderful three-bedroom house providing the ideal family home or rental investment. The property consists of a superb, bright and airy reception room, spacious kitchen, three double bedrooms, ground floor WC, and a further contempory family ...
Property Oracle says ..
This three-bedroom property is located in the Royal Docks area of Newham, London. The property benefits from being close to several primary schools, including Oasis Academy Silvertown which has a good Ofsted rating, and is within approximately 3.5km of West Ham underground station. The property itself is a three-story townhouse with a small rear garden and garage. While the interior appears clean and well-maintained, the garden is somewhat overgrown and could benefit from some landscaping. The property seems to be in good condition, however, the images do not provide sufficient detail to make a comprehensive assessment of the property’s condition. The average price per square foot in the area is £642, and this property is listed at £600,000 with 1236.88 sqft. Considering the location, condition, and size, the list price appears to be in line with or slightly above the average for the area.
Therefore, we give this property 6 / 10. *Disclaimer: This is our option and does constitute a recommendation or financial advice. Do your own research. *
- Price
- 7
- Condition
- 7
- Location
- 8
- Land
- 3
- Bedrooms
- 3
- Bathrooms
- 2
- Sqft (est)
- 1,236.88
The heatmap indicates the level of crime in the area. The color of the heatmap indicates the crime severity and recency.
Metrics Year-on-Year
- Average area value
- 470,329.00 £Decreased by 0.02 %
- Est sale value
- 756,970.56 £Increased by 3.03 %
- Average area rental value
- 2,036.00 £/moIncreased by 3.77 %
- Est letting value
- 2,473.76 £/moUnchanged by 0.00 %
- Est rental Yield
- 5.19 %Increased by 3.80 %
- Crime Rate
- 8.00 %Unchanged by 0.00 %
Agent Activity
Keatons created the listing.
Nearby Schools
| Name | Type | Ofsted | Distance |
|---|---|---|---|
| Oasis Academy Silvertown | Free Schools | Good | 0.14 KM |
| Britannia Village Primary School | Academy Converter | 0.21 KM | |
| Royal Wharf Primary School | Free Schools | 0.45 KM | |
| St Joachim'S Catholic Primary School | Academy Converter | Good | 0.90 KM |
| Royal Docks Academy | Academy Sponsor Led | Good | 1.11 KM |
Images
Nearby Streets
| Name | Average Price | Average Sqft | Distance |
|---|---|---|---|
| Southampton Mews | £ 0 | 0 | 0.00 KM |
| West Ramp | £ 0 | 0 | 0.00 KM |
| Royal Crest Avenue | £ 210,000 | 0 | 0.00 KM |
| Barrier Point Road | £ 0 | 0 | 0.00 KM |
| Chauntler Close | £ 0 | 0 | 0.00 KM |
Nearby Transport
| Name | NLC | TLC | Distance |
|---|---|---|---|
| Charlton | 5144 | CTN | 2.03 KM |
| Westcombe Park | 5151 | WCB | 2.46 KM |
| Woolwich Dockyard | 5153 | WWD | 3.40 KM |
| West Ham | 7474 | WEH | 3.58 KM |
| Maze Hill | 5149 | MZH | 3.62 KM |
Nearby Listings
| Address | Price | Type | Score | Distance |
|---|---|---|---|---|
| Pankhurst Avenue, Royal Docks, London, E16 | £ 600,000 | BUY | 6 / 10 | 0.00 KM |
| Russell Flint House, 2 Pankhurst Avenue, London, E16 | £ 300,000 | BUY | 5 / 10 | 0.01 KM |
| Russell Flint House, Pankhurst Avenue, London, E16 | £ 375,000 | BUY | 6 / 10 | 0.01 KM |
| Wesley Avenue, London, E16 | £ 380,000 | BUY | 5 / 10 | 0.04 KM |
| Rayleigh Road, London, E16 1AX | £ 360,000 | BUY | 6 / 10 | 0.04 KM |
Nearby Properties
| Address | Price | Distance |
|---|---|---|
| 8 Pankhurst Avenue | £ 480,000 | 0.01 KM |
| 11 Pankhurst Avenue | £ 519,000 | 0.01 KM |
| 3 Pankhurst Avenue | £ 585,000 | 0.01 KM |
| 5 Pankhurst Avenue | £ 283,000 | 0.01 KM |
| 6 Pankhurst Avenue | £ 392,000 | 0.01 KM |