Kenardington, Ashford, Kent
ST

Kenardington, Ashford, Kent

By Strutt & Parker

£ 1,895,000

Strutt & Parker says ..

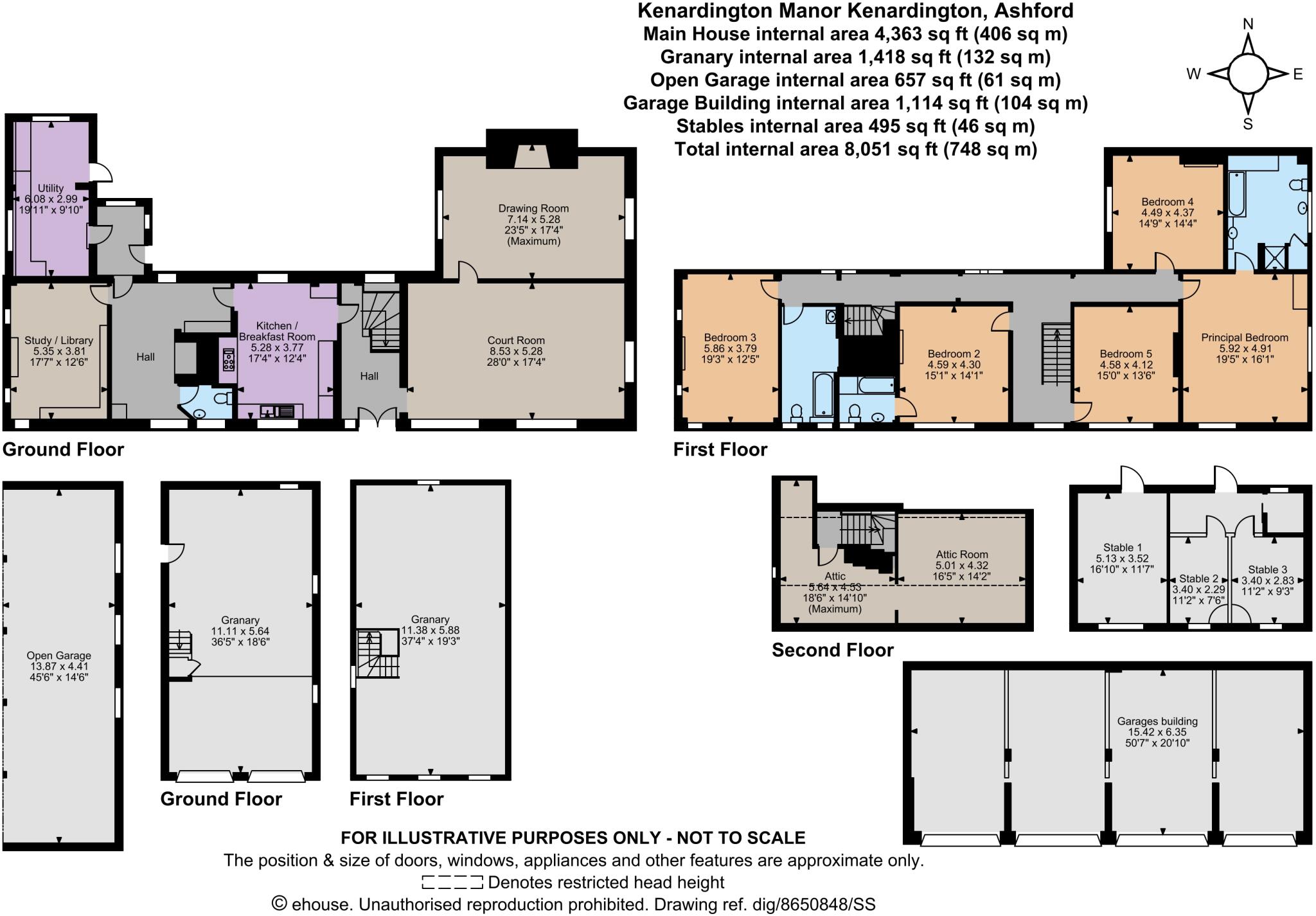
A stunning timber-framed manor house dating from the late 15th century with beautifully proportioned rooms the quality of which are indicative of the historic high standing of the house, set in parklike grounds with excellent outbuildings.

Bedrooms
5
Bathrooms
3

The heatmap indicates the level of crime in the area. The color of the heatmap indicates the crime severity and recency.

Metrics Year-on-Year

Average area value
257,097.00 £
Decreased by 8.25 %
from 280,201.00 £
Average area rental value
956.00 £/mo
Increased by 1.92 %
from 938.00 £/mo
Est rental Yield
4.46 %
Increased by 10.95 %
from 4.02 %
Crime Rate
0.00 %
from 0.00 %

Agent Activity

  • Strutt & Parker created the listing.

Nearby Schools

NameTypeOfstedDistance
Woodchurch Church Of England Primary SchoolVoluntary Controlled SchoolGood4.95 KM
Hamstreet Primary AcademyAcademy ConverterGood5.08 KM
Brookland Church Of England Primary SchoolVoluntary Controlled SchoolGood7.22 KM
Brenzett Church Of England Primary SchoolAcademy Sponsor LedGood7.61 KM
Kingsnorth Church Of England Primary SchoolAcademy ConverterGood9.20 KM

Images

Kenardington Manor Kenardington Manor Court Room Drawing Room Hallway Study/Library Kitchen/Breakfast Rm Staircase Hall Bedroom Bedroom Landing Bedroom Bathroom Grounds Kenardington Manor Kenardington Manor Grounds Grounds Grounds Granary Granary Studio Cart Barn Period Stable Block Garage Building Driveway Aerial View Of Site Drawing Room Aerial View Of Front Drawing Room Grounds

Nearby Streets

NameAverage PriceAverage SqftDistance
Church Lane £ 000.00 KM
Bench Hill £ 000.00 KM

Nearby Transport

NameNLCTLCDistance
Appledore (Kent)5003APD2.82 KM
Ham Street5037HMT5.27 KM

Nearby Listings

AddressPriceTypeScoreDistance
Kenardington, Ashford, Kent £ 1,895,000BUYUnknown0.00 KM
Kenardington, Ashford, Kent, TN26 £ 775,000BUY7 / 100.13 KM
The Wish, Kenardington, Ashford £ 349,995BUY7 / 100.25 KM
The Old Post House, Kenardington £ 700,000BUY7 / 100.37 KM
Church Lane, Kenardington, Ashford, Kent, TN26 £ 550,000BUY7 / 100.56 KM

Nearby Properties

AddressPriceDistance
8 The Wish £ 200,0000.25 KM
13 The Wish £ 255,0000.25 KM
3 The Wish £ 191,0000.25 KM
5 The Wish £ 138,0000.25 KM
The Old Post House £ 410,0000.35 KM