Lomond says ..
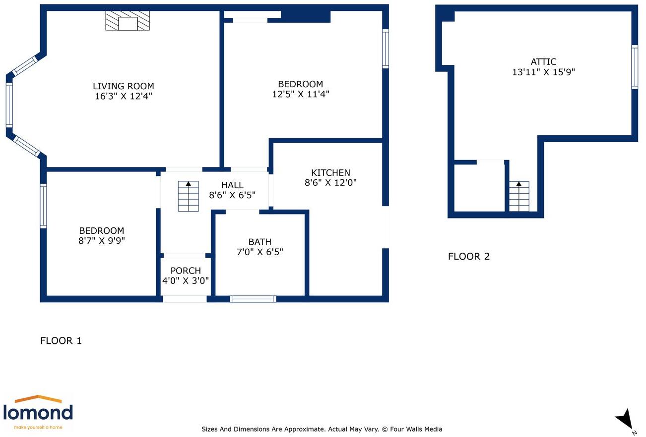
143 Lochside Road is a semi detached bungalow offering spacious room sizes throughout. comprising two bedrooms, spacious lounge, bathroom and kitchen. The garden grounds are easily maintained with off street parking.
Property Oracle says ..
This semi-detached bungalow in Ayr, South Ayrshire is listed at £70,000. The property is a 2-bedroom, 1-bathroom home with 863.64 sqft of living space. While the average price per sqft in the area is £436, this property is significantly below average. This could be due to its condition or location. The property benefits from a small garden area. The location is close to several train stations, making it convenient for commuters. However, there is no information provided about nearby schools.
Therefore, we give this property 6 / 10. *Disclaimer: This is our option and does constitute a recommendation or financial advice. Do your own research. *
- Price
- 8
- Condition
- 6
- Location
- 7
- Land
- 4
- Bedrooms
- 2
- Bathrooms
- 1
- Sqft (est)
- 863.64
The heatmap indicates the level of crime in the area. The color of the heatmap indicates the crime severity and recency.
Metrics Year-on-Year
- Average area value
- 591,667.00 £Increased by 9.11 %
- Est sale value
- 248,728.32 £Decreased by 44.40 %
- Average area rental value
- 2,375.00 £/moIncreased by 124.69 %
- Est letting value
- 863.64 £/moUnchanged by 0.00 %
- Est rental Yield
- 4.82 %Increased by 105.98 %
- Crime Rate
- 0.00 %
Agent Activity
Lomond marked this listing as sold.
Lomond created the listing.
Images
Nearby Streets
| Name | Average Price | Average Sqft | Distance |
|---|---|---|---|
| Wills Road | £ 0 | 0 | 0.00 KM |
| Cowan Crescent | £ 100,000 | 0 | 0.00 KM |
| Murray Place | £ 0 | 0 | 0.00 KM |
| Mccolgan Place | £ 152,250 | 0 | 0.00 KM |
| Whittle Road | £ 130,000 | 0 | 0.00 KM |
Nearby Transport
| Name | NLC | TLC | Distance |
|---|---|---|---|
| Newton-On-Ayr | 9571 | NOA | 1.74 KM |
| Ayr | 9463 | AYR | 2.35 KM |
| Prestwick Town | 9543 | PTW | 3.30 KM |
| Prestwick International Airport | 9544 | PRA | 4.09 KM |
| Troon | 9562 | TRN | 9.27 KM |
Nearby Listings
| Address | Price | Type | Score | Distance |
|---|---|---|---|---|
| Lochside Road, Ayr, KA8 | £ 70,000 | BUY | 6 / 10 | 0.00 KM |
| Galloway Avenue, Ayr | £ 50,000 | BUY | 6 / 10 | 0.26 KM |
| Galloway Avenue, Ayr | £ 50,000 | BUY | Unknown | 0.26 KM |
| 20 Wills Road, Ayr, KA8 9NN | £ 59,999 | BUY | Unknown | 0.31 KM |
| Whitletts Road, Ayr, Ayrshire, KA8 0JG | £ 240,000 | BUY | Unknown | 0.38 KM |