Portico says ..
*Well-Presented 2-Bedroom Terraced Home with Generous Garden & Allocated Parking – NO CHAIN* Nestled in a quiet residential turning in Dagenham (RM8 2HX), this well-maintained 2-bedroom terraced house offers comfortable living space, a large private garden, and the added bene...
Property Oracle says ..
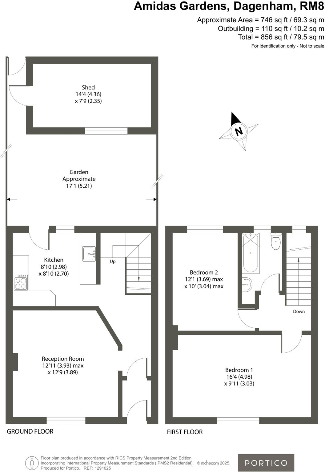
This two-bedroom terraced house in Amidas Gardens, Dagenham, is located in the Becontree area of Barking and Dagenham. The property benefits from a good-sized garden, as shown in the provided images. The asking price of £375,000 is slightly above the average price for the area (£363,654), but considering the property appears to be well-maintained and in good condition, and the inclusion of a garden, the price may be considered reasonable. The property is within reasonable proximity to local schools and transportation links, making it an attractive option for families and commuters. Nearby properties have sold for a range of prices, indicating some price variation in the area.
Therefore, we give this property 7 / 10. *Disclaimer: This is our option and does constitute a recommendation or financial advice. Do your own research. *
- Price
- 7
- Condition
- 8
- Location
- 7
- Land
- 8
- Bedrooms
- 2
- Bathrooms
- 1
- Sqft (est)
- 647.00
- Lot (est)
- 856.00
The heatmap indicates the level of crime in the area. The color of the heatmap indicates the crime severity and recency.
Metrics Year-on-Year
- Average area value
- 448,333.00 £Increased by 35.02 %
- Est sale value
- 324,147.00 £Increased by 24.01 %
- Average area rental value
- 1,840.00 £/moDecreased by 4.47 %
- Est letting value
- 1,294.00 £/moUnchanged by 0.00 %
- Est rental Yield
- 4.92 %Decreased by 29.31 %
- Crime Rate
- 5.00 %Unchanged by 0.00 %
Agent Activity
Portico created the listing.
Nearby Schools
| Name | Type | Ofsted | Distance |
|---|---|---|---|
| Dorothy Barley Junior Academy | Academy Sponsor Led | Good | 0.38 KM |
| Dorothy Barley Infants' School | Community School | Good | 0.44 KM |
| Alamiyah School | Other Independent School | 0.56 KM | |
| Becontree Children'S Centre | Children's Centre | 0.63 KM | |
| Becontree Primary School | Community School | Good | 0.70 KM |
Images
Nearby Streets
| Name | Average Price | Average Sqft | Distance |
|---|---|---|---|
| College Way | £ 0 | 0 | 0.00 KM |
| Milner Road | £ 358,333 | 0 | 0.00 KM |
| Lindisfarne Road | £ 225,000 | 0 | 0.00 KM |
| Holly Lane | £ 0 | 0 | 0.00 KM |
| Bennett's Castle Lane | £ 391,667 | 0 | 0.00 KM |
Nearby Transport
| Name | NLC | TLC | Distance |
|---|---|---|---|
| Goodmayes | 6878 | GMY | 1.72 KM |
| Chadwell Heath | 6874 | CTH | 2.43 KM |
| Seven Kings | 6893 | SVK | 2.50 KM |
| Barking | 7492 | BKG | 4.03 KM |
| Dagenham Dock | 7440 | DDK | 4.37 KM |
Nearby Listings
| Address | Price | Type | Score | Distance |
|---|---|---|---|---|
| Amidas Gardens, Dagenham | £ 375,000 | BUY | 7 / 10 | 0.00 KM |
| Amidas Gardens, Dagenham | £ 400,000 | BUY | 6 / 10 | 0.00 KM |
| Amidas Gardens, Dagenham, RM8 | £ 350,000 | BUY | Unknown | 0.01 KM |
| Amidas Gardens, Dagenham | £ 350,000 | BUY | 7 / 10 | 0.04 KM |
| Longbridge Road, Dagenham, RM8 | £ 450,000 | BUY | 6 / 10 | 0.06 KM |
Nearby Properties
| Address | Price | Distance |
|---|---|---|
| 3 Amidas Gardens | £ 172,000 | 0.00 KM |
| 2 Amidas Gardens | £ 187,000 | 0.00 KM |
| 11 Amidas Gardens | £ 212,500 | 0.00 KM |
| 1 Amidas Gardens | £ 250,000 | 0.00 KM |
| 35 Amidas Gardens | £ 190,000 | 0.00 KM |