Newboulds & Co says ..
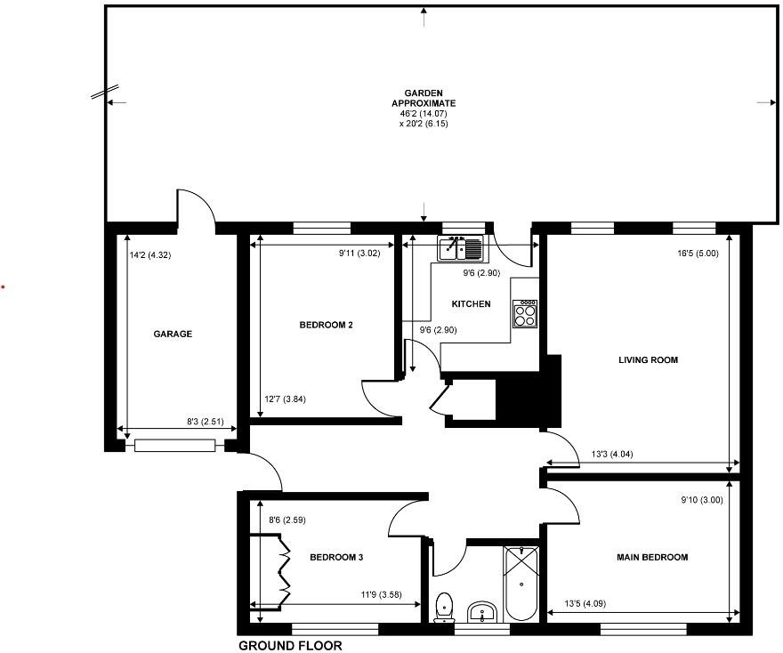
This delightful 3-bedroom bungalow located in Shepperton offers a spacious reception, garage, car port, and a south-facing courtyard style garden. No onward chain.
Property Oracle says ..
The property is located in Shepperton, Surrey, a desirable area in the South East of England. Shepperton benefits from excellent transport links via the South Western Railway, with Shepperton station being less than a kilometre away. Several highly-rated schools are also within a reasonable distance, including Manor Mead School (Outstanding Ofsted rating) and St Nicholas Cofe Primary School (Good Ofsted rating). This makes the location very family-friendly. Based on the provided images, the property appears to be in generally good condition. While some aspects, such as the wallpaper and carpeting, might be considered dated, there is no visible evidence of significant disrepair or the need for extensive renovations. The kitchen and bathroom seem functional, although a modern update could enhance their appeal. The property benefits from a patio garden, offering outdoor space. The list price of £550,000 is significantly below the average house price in the area (£788,680). Considering the property’s size (692 sqft) and the average price per sqft in the area (£498), the list price appears to be relatively low. However, a direct price per sqft comparison is not possible due to the lack of sqft information for comparable properties. The lower price may reflect the property’s traditional style and the fact that it might benefit from some modernisation to appeal to a wider range of buyers. Nearby properties on Dunboe Place show a range of prices, suggesting some price variability on the street.
Therefore, we give this property 7 / 10. *Disclaimer: This is our option and does constitute a recommendation or financial advice. Do your own research. *
- Price
- 8
- Condition
- 7
- Location
- 9
- Land
- 6
- Bedrooms
- 3
- Bathrooms
- 1
- Sqft (est)
- 692.00
The heatmap indicates the level of crime in the area. The color of the heatmap indicates the crime severity and recency.
Metrics Year-on-Year
- Average area value
- 587,488.00 £Decreased by 12.73 %
- Est sale value
- 308,632.00 £Decreased by 26.64 %
- Average area rental value
- 2,195.00 £/moIncreased by 2.33 %
- Est letting value
- 692.00 £/moUnchanged by 0.00 %
- Est rental Yield
- 4.48 %Increased by 17.28 %
- Crime Rate
- 7.00 %Unchanged by 0.00 %
Agent Activity
Newboulds & Co created the listing.
Nearby Schools
| Name | Type | Ofsted | Distance |
|---|---|---|---|
| Halliford School | Other Independent School | 0.36 KM | |
| St Nicholas Cofe Primary School | Voluntary Aided School | Good | 0.61 KM |
| Thamesmead School | Academy Converter | Good | 0.75 KM |
| Manor Mead School | Community Special School | Outstanding | 0.96 KM |
| St George'S Junior School Weybridge | Other Independent School | 1.62 KM |
Images
Nearby Streets
| Name | Average Price | Average Sqft | Distance |
|---|---|---|---|
| Ferry Square | £ 1,150,000 | 0 | 0.00 KM |
| Church Square | £ 499,950 | 0 | 0.00 KM |
| Pearmain Close | £ 0 | 0 | 0.00 KM |
| Preston Road | £ 0 | 0 | 0.00 KM |
| Penny Lane | £ 0 | 0 | 0.00 KM |
Nearby Transport
| Name | NLC | TLC | Distance |
|---|---|---|---|
| Shepperton | 5605 | SHP | 0.73 KM |
| Upper Halliford | 5613 | UPH | 3.15 KM |
| Weybridge | 5577 | WYB | 3.36 KM |
| Walton-On-Thames | 5575 | WAL | 4.16 KM |
| Addlestone | 5550 | ASN | 4.48 KM |
Nearby Listings
| Address | Price | Type | Score | Distance |
|---|---|---|---|---|
| Dunboe Place, Shepperton | £ 550,000 | BUY | 7 / 10 | 0.00 KM |
| Dunboe Place, Shepperton, TW17 | £ 590,000 | BUY | Unknown | 0.03 KM |
| Dunboe Place, Shepperton, TW17 | £ 550,000 | BUY | 6 / 10 | 0.06 KM |
| Dunboe Place, Shepperton, TW17 | £ 1,450,000 | BUY | Unknown | 0.07 KM |
| Dunboe Place, Shepperton | £ 1,525,000 | BUY | 7 / 10 | 0.08 KM |
Nearby Properties
| Address | Price | Distance |
|---|---|---|
| 2 Dunboe Place | £ 318,000 | 0.08 KM |
| 40 Dunboe Place | £ 313,000 | 0.08 KM |
| 24 Dunboe Place | £ 463,000 | 0.08 KM |
| 18 Dunboe Place | £ 324,000 | 0.08 KM |
| 48 Dunboe Place | £ 435,000 | 0.08 KM |