Wheatcroft & Lloyd says ..
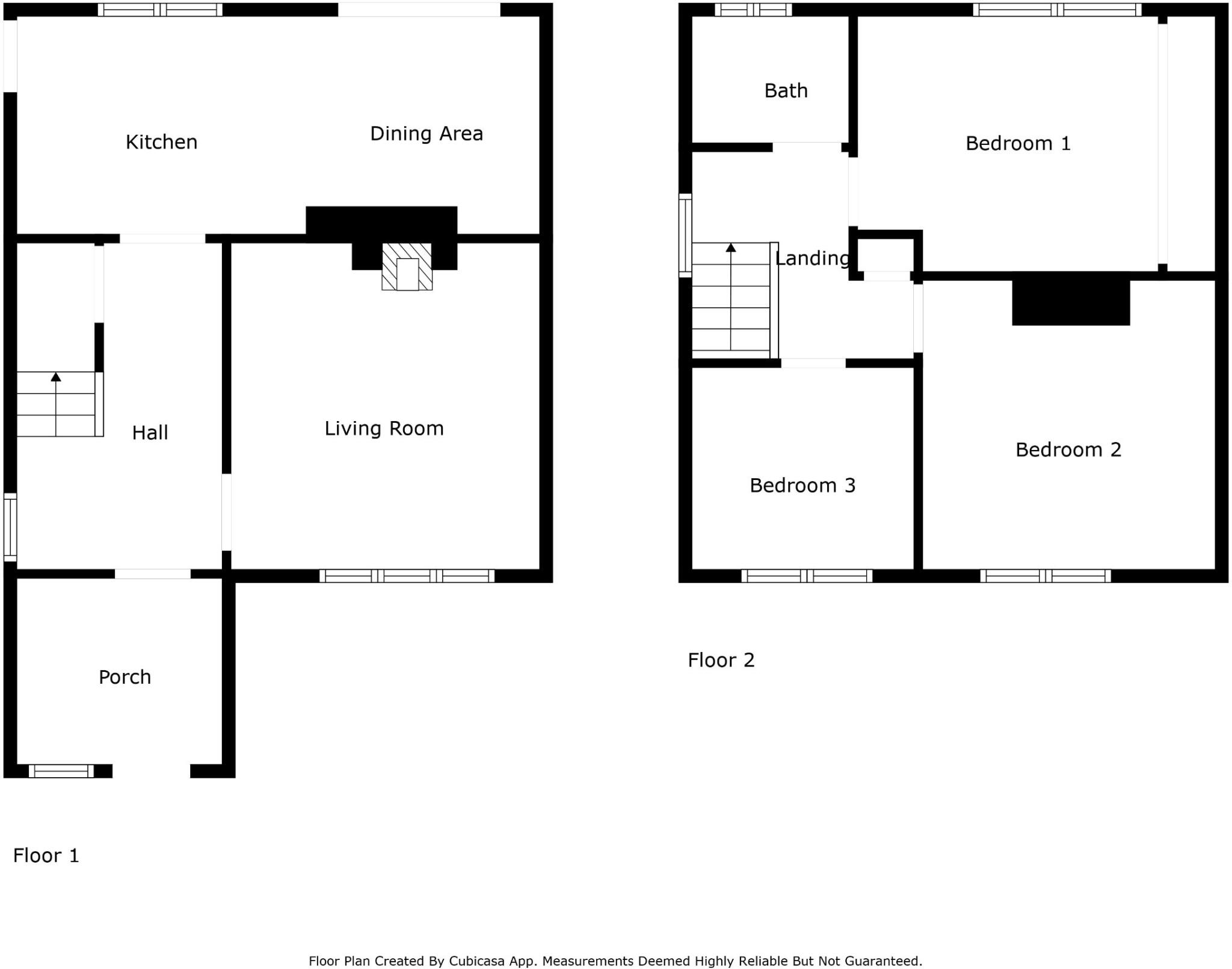
Sitting on a generous corner plot in the heart of Wistaston Green we are pleased to offer of sale this lovingly updated 3 bedroom family home with enclosed rear garden.
Property Oracle says ..
Therefore, we give this property 7 / 10. *Disclaimer: This is our option and does constitute a recommendation or financial advice. Do your own research. *
- Price
- 8
- Condition
- 8
- Location
- 7
- Land
- 7
- Bedrooms
- 3
- Bathrooms
- 0
- Sqft (est)
- 877.00
The heatmap indicates the level of crime in the area. The color of the heatmap indicates the crime severity and recency.
Metrics Year-on-Year
- Average area value
- 268,792.00 £Decreased by 11.42 %
- Est sale value
- 253,453.00 £Increased by 36.32 %
- Average area rental value
- 1,600.00 £/moIncreased by 36.17 %
- Est letting value
- 877.00 £/mo
- Est rental Yield
- 7.14 %Increased by 53.55 %
- Crime Rate
- 15.00 %Unchanged by 0.00 %
from 303,434.00 £
from 185,924.00 £
from 1,175.00 £/mo
from 0.00 £/mo
from 4.65 %
from 15.00 %
Agent Activity
Wheatcroft & Lloyd marked this listing as sold.
Wheatcroft & Lloyd created the listing.
Nearby Schools
| Name | Type | Ofsted | Distance |
|---|---|---|---|
| Wistaston Academy | Academy Converter | 0.81 KM | |
| Wistaston Church Lane Academy | Academy Converter | Good | 0.93 KM |
| The Axis Academy | Free Schools Special | 1.01 KM | |
| St Mary'S Catholic Primary School, Crewe | Voluntary Aided School | Good | 1.27 KM |
| St Thomas More Catholic High School | Academy Converter | Good | 1.37 KM |
Images
Nearby Streets
| Name | Average Price | Average Sqft | Distance |
|---|---|---|---|
| Laburnum Avenue | £ 0 | 0 | 0.00 KM |
| Laurel Drive | £ 0 | 0 | 0.00 KM |
| Mandarin Place | £ 0 | 0 | 0.00 KM |
| Black Lane | £ 395,000 | 0 | 0.00 KM |
| Carisbrooke Close | £ 0 | 0 | 0.00 KM |
Nearby Transport
| Name | NLC | TLC | Distance |
|---|---|---|---|
| Crewe | 1243 | CRE | 4.42 KM |
| Nantwich | 1247 | NAN | 5.80 KM |
Nearby Listings
| Address | Price | Type | Score | Distance |
|---|---|---|---|---|
| Elm Close | £ 200,000 | BUY | 7 / 10 | 0.00 KM |
| Elm Close, Wistaston, Crewe, Cheshire, CW2 | £ 200,000 | BUY | Unknown | 0.01 KM |
| Elm Close, Wistaston | £ 180,000 | BUY | 6 / 10 | 0.05 KM |
| Wistaston Green Road, Wistaston, Crewe, Cheshire, CW2 | £ 210,000 | BUY | 7 / 10 | 0.13 KM |
| Laburnum Avenue, Wistaston, Crewe, Cheshire, CW2 | £ 290,000 | BUY | Unknown | 0.16 KM |
Nearby Properties
| Address | Price | Distance |
|---|---|---|
| 32 Elm Close | £ 102,000 | 0.01 KM |
| 18 Elm Close | £ 111,000 | 0.01 KM |
| 54 Elm Close | £ 106,000 | 0.01 KM |
| 64 Elm Close | £ 105,000 | 0.01 KM |
| 20 Elm Close | £ 79,000 | 0.01 KM |