Julie Philpot says ..
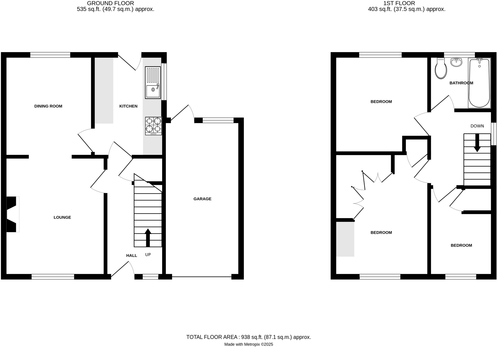
A delightful and immaculately presented semi detached home within this popular and sought after cul de sac location. The property is on a wider than average plot, has plenty of parking plus garage and a larger than average garden. There are three bedrooms with two reception rooms and a modern kit...
Property Oracle says ..
This property is a 3-bedroom semi-detached house located in Harlech Close, Kenilworth. It benefits from a good location, close to local schools and transport links. The property is in good condition and appears well-maintained, with a modern kitchen and updated bathroom. There is a garden to the rear of the property, which is a good size. The list price of £379,950 is slightly below the average price for the area, making it potentially good value for money.
Therefore, we give this property 8 / 10. *Disclaimer: This is our option and does constitute a recommendation or financial advice. Do your own research. *
- Price
- 8
- Condition
- 8
- Location
- 9
- Land
- 7
- Bedrooms
- 3
- Bathrooms
- 1
- Sqft (est)
- 900.00
- Lot (est)
- 938.00
The heatmap indicates the level of crime in the area. The color of the heatmap indicates the crime severity and recency.
Metrics Year-on-Year
- Average area value
- 450,680.00 £Increased by 2.66 %
- Est sale value
- 423,900.00 £Increased by 11.61 %
- Average area rental value
- 1,290.00 £/moIncreased by 8.77 %
- Est letting value
- 900.00 £/moUnchanged by 0.00 %
- Est rental Yield
- 3.43 %Increased by 5.86 %
- Crime Rate
- 34.00 %Unchanged by 0.00 %
Agent Activity
Julie Philpot marked this listing as sold.
Julie Philpot created the listing.
Nearby Schools
| Name | Type | Ofsted | Distance |
|---|---|---|---|
| Park Hill Junior School | Community School | Good | 0.31 KM |
| Kenilworth School And Sixth Form | Academy Converter | 0.35 KM | |
| Crackley Hall School | Other Independent School | 1.37 KM | |
| Thorns Community Infant School | Community School | Good | 1.38 KM |
| St Nicholas Cofe Primary School | Voluntary Controlled School | Good | 1.98 KM |
Images
Nearby Streets
| Name | Average Price | Average Sqft | Distance |
|---|---|---|---|
| Hidcote Road | £ 0 | 0 | 0.00 KM |
| Cannadine Road | £ 375,000 | 0 | 0.00 KM |
| Dalebrook Place | £ 0 | 0 | 0.00 KM |
| Field Close | £ 0 | 0 | 0.00 KM |
| Millbrook Lane | £ 0 | 0 | 0.00 KM |
Nearby Transport
| Name | NLC | TLC | Distance |
|---|---|---|---|
| Kenilworth | 7985 | KNW | 1.79 KM |
| Canley | 1129 | CNL | 5.79 KM |
| Tile Hill | 1035 | THL | 6.80 KM |
| Warwick | 4600 | WRW | 7.36 KM |
| Leamington Spa | 4597 | LMS | 7.46 KM |
Nearby Listings
| Address | Price | Type | Score | Distance |
|---|---|---|---|---|
| Harlech Close, Kenilworth | £ 379,950 | BUY | 8 / 10 | 0.00 KM |
| Jacox Crescent, Kenilworth | £ 410,000 | BUY | Unknown | 0.04 KM |
| Leyes Lane, Kenilworth | £ 529,950 | BUY | 7 / 10 | 0.08 KM |
| Rawnsley Drive, Kenilworth | £ 389,950 | BUY | 7 / 10 | 0.10 KM |
| Leyes Lane, Kenilworth | £ 569,950 | BUY | 7 / 10 | 0.10 KM |
Nearby Properties
| Address | Price | Distance |
|---|---|---|
| 23 Harlech Close | £ 219,950 | 0.05 KM |
| 6 Harlech Close | £ 270,000 | 0.05 KM |
| 20 Harlech Close | £ 97,000 | 0.05 KM |
| 2 Harlech Close | £ 407,000 | 0.05 KM |
| 19 Harlech Close | £ 359,950 | 0.05 KM |