Old Green Road, Broadstairs, Kent, CT10
By British Homesellers
£ 425,000
Reviews
3 out of 5 stars
British Homesellers says ..
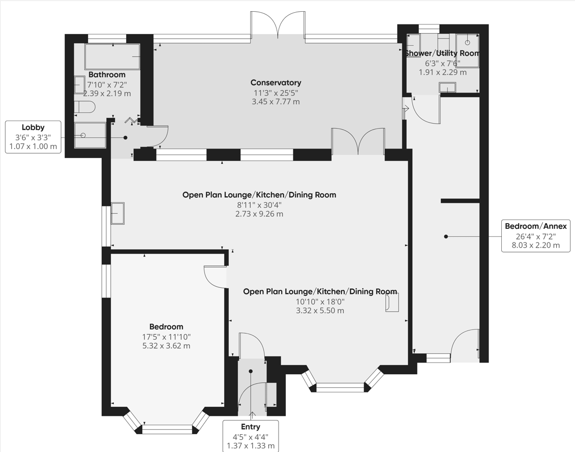
Unique Detached Bungalow with Studio Annex & Stunning Garden in Sought-After Village Setting Tucked away in the desirable village of Reading Street near Broadstairs, this individually designed detached bungalow offers much more than first meets the eye. Boasting flexible living spa...
Property Oracle says ..
This is a two-bedroom bungalow located in Broadstairs, Kent. The property is in a fair condition, but it would benefit from some modernisation. It has a decent sized garden and is located in a convenient location, close to schools and transportation links. The asking price is £425,000, which is in line with similar properties in the area. The property is likely to appeal to families, commuters, or those looking for a retirement property.
Therefore, we give this property 6 / 10. *Disclaimer: This is our option and does constitute a recommendation or financial advice. Do your own research. *
- Price
- 7
- Condition
- 5
- Location
- 7
- Land
- 7
- Bedrooms
- 2
- Bathrooms
- 2
- Sqft (est)
- 318.50
The heatmap indicates the level of crime in the area. The color of the heatmap indicates the crime severity and recency.
Metrics Year-on-Year
- Average area value
- 544,999.00 £Increased by 38.50 %
- Est sale value
- 29,302.00 £Decreased by 75.20 %
- Average area rental value
- 1,440.00 £/moIncreased by 6.67 %
- Est letting value
- 0.00 £/moDecreased by 100.00 %
- Est rental Yield
- 3.17 %Decreased by 23.06 %
- Crime Rate
- 1.00 %Unchanged by 0.00 %
Agent Activity
British Homesellers created the listing.
Nearby Schools
| Name | Type | Ofsted | Distance |
|---|---|---|---|
| Callis Grange Nursery And Infant School | Community School | Outstanding | 0.23 KM |
| St Peter-In-Thanet Cofe Junior School | Voluntary Aided School | Good | 0.26 KM |
| Callis Grange Children'S Centre | Children's Centre | 0.33 KM | |
| St Joseph'S Catholic Primary School, Broadstairs | Academy Converter | Good | 0.95 KM |
| Kms Kent Ltd | Special Post 16 Institution | 1.23 KM |
Images
Nearby Streets
| Name | Average Price | Average Sqft | Distance |
|---|---|---|---|
| Balliol Road | £ 0 | 0 | 0.00 KM |
| Churchfields | £ 765,000 | 0 | 0.00 KM |
| Cedar Close | £ 411,250 | 0 | 0.00 KM |
| The Oaks | £ 612,833 | 0 | 0.00 KM |
| Link Road | £ 507,250 | 0 | 0.00 KM |
Nearby Transport
| Name | NLC | TLC | Distance |
|---|---|---|---|
| Broadstairs | 5006 | BSR | 1.49 KM |
| Dumpton Park | 5034 | DMP | 3.06 KM |
| Ramsgate | 5023 | RAM | 4.35 KM |
| Margate | 5018 | MAR | 6.41 KM |
Nearby Listings
| Address | Price | Type | Score | Distance |
|---|---|---|---|---|
| Old Green Road, Broadstairs | £ 425,000 | BUY | 6 / 10 | 0.00 KM |
| Old Green Road, Broadstairs, Kent, CT10 | £ 425,000 | BUY | 6 / 10 | 0.00 KM |
| Old Green Road, Broadstairs, Kent | £ 425,000 | BUY | Unknown | 0.01 KM |
| Old Green Road, Broadstairs, Kent | £ 281,000 | BUY | Unknown | 0.01 KM |
| Old Green Road, Broadstairs, CT10 | £ 435,000 | BUY | Unknown | 0.01 KM |
Nearby Properties
| Address | Price | Distance |
|---|---|---|
| 30 Old Green Road | £ 250,000 | 0.01 KM |
| 25 Old Green Road | £ 250,000 | 0.01 KM |
| 18 Old Green Road | £ 435,000 | 0.01 KM |
| 34 Old Green Road | £ 445,000 | 0.01 KM |
| 23 Old Green Road | £ 185,000 | 0.01 KM |