HA
Church Lane, Clyst St Mary, Exeter
By Hall & Scott
£ 800,000
Reviews
3 out of 5 stars
Hall & Scott says ..
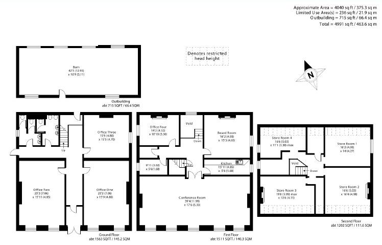
Grade II listed former rectory, currently used as offices with planning permission to convert back into a single dwelling. Spacious and versatile accommodation. Sought after village location. Large garden area with further development potential. Parking for eight cars.
Property Oracle says ..
Therefore, we give this property 7 / 10. *Disclaimer: This is our option and does constitute a recommendation or financial advice. Do your own research. *
- Price
- 9
- Condition
- 7
- Location
- 7
- Land
- 8
- Bedrooms
- 8
- Bathrooms
- 2
- Sqft (est)
- 4,239.00
The heatmap indicates the level of crime in the area. The color of the heatmap indicates the crime severity and recency.
Metrics Year-on-Year
- Average area value
- 287,500.00 £Decreased by 45.29 %
- Est sale value
- 962,253.00 £Decreased by 43.53 %
- Average area rental value
- 1,700.00 £/moDecreased by 2.30 %
- Est letting value
- 4,239.00 £/moUnchanged by 0.00 %
- Est rental Yield
- 7.10 %Increased by 78.84 %
- Crime Rate
- 8.00 %Unchanged by 0.00 %
from 525,476.00 £
from 1,704,078.00 £
from 1,740.00 £/mo
from 4,239.00 £/mo
from 3.97 %
from 8.00 %
Agent Activity
Hall & Scott created the listing.
Nearby Schools
| Name | Type | Ofsted | Distance |
|---|---|---|---|
| Clyst St Mary Primary School | Community School | Good | 0.90 KM |
| Clyst Vale Children'S Centre | Children's Centre | 0.93 KM | |
| Lady Seaward'S Church Of England Primary School | Academy Converter | Outstanding | 1.92 KM |
| Stansfield Academy | Academy Alternative Provision Sponsor Led | 3.03 KM | |
| Trinity Church Of England Voluntary Aided Primary And Nursery School | Voluntary Aided School | 3.19 KM |
Images
Nearby Streets
| Name | Average Price | Average Sqft | Distance |
|---|---|---|---|
| Tilllage Way | £ 0 | 0 | 0.00 KM |
| Oilmill Lane | £ 0 | 0 | 0.00 KM |
| Old Maltsters Arms | £ 0 | 0 | 0.00 KM |
| Long Meadow | £ 0 | 0 | 0.00 KM |
| Brook Cottages | £ 650,000 | 0 | 0.00 KM |
Nearby Transport
| Name | NLC | TLC | Distance |
|---|---|---|---|
| Newcourt | 9589 | NCO | 2.93 KM |
| Topsham | 5758 | TOP | 3.02 KM |
| Digby And Sowton | 5753 | DIG | 3.12 KM |
| Exton | 5760 | EXN | 4.26 KM |
| Pinhoe | 5757 | PIN | 4.30 KM |
Nearby Listings
| Address | Price | Type | Score | Distance |
|---|---|---|---|---|
| Church Lane, Clyst St Mary, Exeter | £ 800,000 | BUY | 7 / 10 | 0.00 KM |
| Clyst Valley Road, Clyst St. Mary | £ 600,000 | BUY | Unknown | 0.12 KM |
| Winslade Park Avenue, Clyst St. Mary | £ 600,000 | BUY | 6 / 10 | 0.33 KM |
| Clyst St. Mary, Devon | £ 450,000 | BUY | 6 / 10 | 0.34 KM |
| Clyst St. Mary, Exeter, United Kingdom, EX5 | £ 690,000 | BUY | 7 / 10 | 0.35 KM |
Nearby Properties
| Address | Price | Distance |
|---|---|---|
| 21 Grindle Way | £ 295,000 | 0.20 KM |
| 19 Grindle Way | £ 320,000 | 0.20 KM |
| 5 Grindle Way | £ 328,800 | 0.20 KM |
| 4 Grindle Way | £ 355,000 | 0.20 KM |
| 8 Grindle Way | £ 432,500 | 0.20 KM |