Oscar James says ..
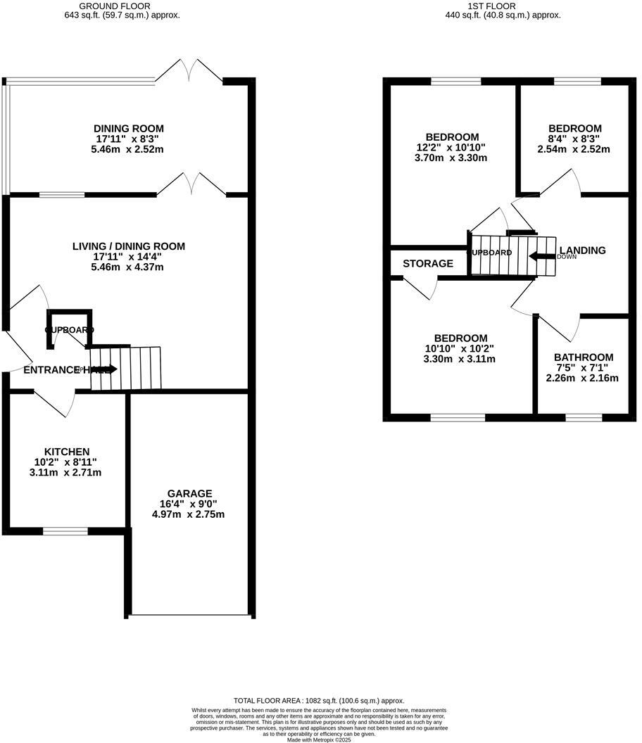
An ideal first time buy or rental investment! Occupying a good size plot with superb rear garden this three bedroom semi detached home situated on the Ise Lodge estate offers excellent space over two floors. The accommodation consist of an entrance hall, kitchen, generous lounge/diner a...
Property Oracle says ..
This property is a 3-bedroom semi-detached house located on St Anthonys Road in Kettering, Northamptonshire. The property benefits from being close to highly-rated schools such as Millbrook Infant and Junior Schools and Kingsley Special Academy, all within a short distance. Kettering train station is also relatively close by, providing convenient transport links. The house itself appears to be in good condition, with a modern kitchen and bathroom. There is also a well-maintained garden with a shed and patio area. The list price of £250,000 is slightly below the average price for the area, making it potentially good value for money, especially considering its proximity to amenities and schools. However, the lack of plot size data makes it difficult to fully assess the value.
Therefore, we give this property 8 / 10. *Disclaimer: This is our option and does constitute a recommendation or financial advice. Do your own research. *
- Price
- 8
- Condition
- 8
- Location
- 9
- Land
- 7
- Bedrooms
- 3
- Bathrooms
- 1
- Sqft (est)
- 1,082.00
The heatmap indicates the level of crime in the area. The color of the heatmap indicates the crime severity and recency.
Metrics Year-on-Year
- Average area value
- 465,000.00 £Increased by 24.21 %
- Est sale value
- 443,620.00 £Increased by 35.76 %
- Average area rental value
- 1,112.00 £/moDecreased by 15.37 %
- Est letting value
- 0.00 £/moDecreased by 100.00 %
- Est rental Yield
- 2.87 %Decreased by 31.83 %
- Crime Rate
- 8.00 %Unchanged by 0.00 %
Agent Activity
Oscar James created the listing.
Nearby Schools
| Name | Type | Ofsted | Distance |
|---|---|---|---|
| Millbrook Infant School | Foundation School | Outstanding | 0.23 KM |
| Millbrook Junior School | Foundation School | Good | 0.26 KM |
| Kingsley Special Academy | Academy Special Converter | Outstanding | 0.29 KM |
| The Latimer Arts College | Foundation School | Good | 1.26 KM |
| Barton Seagrave Primary School | Community School | Good | 1.32 KM |
Images
Nearby Streets
| Name | Average Price | Average Sqft | Distance |
|---|---|---|---|
| Whitby Close | £ 0 | 0 | 0.00 KM |
| Saint Theresa's Close | £ 0 | 0 | 0.00 KM |
| Saint Valentine's Close | £ 0 | 0 | 0.00 KM |
| Westminster Drive | £ 0 | 0 | 0.00 KM |
| Saint Luke's Close | £ 0 | 0 | 0.00 KM |
Nearby Transport
| Name | NLC | TLC | Distance |
|---|---|---|---|
| Kettering | 1857 | KET | 3.93 KM |
Nearby Listings
| Address | Price | Type | Score | Distance |
|---|---|---|---|---|
| St. Anthonys Road, Kettering | £ 250,000 | BUY | 8 / 10 | 0.00 KM |
| NN15 St Anthonys Road, Kettering | £ 260,000 | BUY | Unknown | 0.04 KM |
| St. Anthonys Road, Kettering | £ 245,000 | BUY | 6 / 10 | 0.04 KM |
| St. Anthonys Road, Kettering | £ 245,000 | BUY | 7 / 10 | 0.07 KM |
| St. Anthonys Road, Kettering | £ 245,000 | BUY | 6 / 10 | 0.07 KM |
Nearby Properties
| Address | Price | Distance |
|---|---|---|
| 64 St Anthonys Road | £ 191,500 | 0.04 KM |
| 57 St Anthonys Road | £ 135,000 | 0.04 KM |
| 94 St Anthonys Road | £ 189,950 | 0.04 KM |
| 73 St Anthonys Road | £ 130,000 | 0.04 KM |
| 34a St Anthonys Road | £ 175,000 | 0.04 KM |