Merlin Avenue, Hengoed, Caerphilly, CF82
By Cariad Property
£ 269,950
Reviews
3 out of 5 stars
Cariad Property says ..
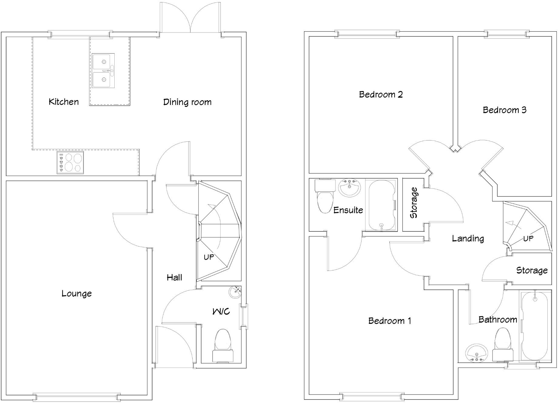
SIMPLY BEAUTIFUL family home, sought after location, garage and driveway, three bedrooms, master en suite, two further WCs, stunning kitchen/diner, large lounge, enclosed manicured garden, a wonderful home.
Property Oracle says ..
This is a well-presented three-bedroom semi-detached house in Hengoed, Caerphilly. The property benefits from modern interiors, three bathrooms, and a well-maintained garden with patio and decking areas. It is situated in a residential area with convenient access to local schools and transportation links, including Ystrad Mynach train station. The listing price of £269,950 appears reasonable when compared to the average price per square foot in the area and considering the property’s condition and features.
Therefore, we give this property 7 / 10. *Disclaimer: This is our option and does constitute a recommendation or financial advice. Do your own research. *
- Price
- 7
- Condition
- 8
- Location
- 7
- Land
- 7
- Bedrooms
- 3
- Bathrooms
- 3
- Sqft (est)
- 1,272.00
The heatmap indicates the level of crime in the area. The color of the heatmap indicates the crime severity and recency.
Metrics Year-on-Year
- Average area value
- 262,500.00 £Increased by 9.22 %
- Est sale value
- 372,696.00 £Increased by 5.78 %
- Average area rental value
- 525.00 £/moDecreased by 44.74 %
- Est letting value
- 0.00 £/moDecreased by 100.00 %
- Est rental Yield
- 2.40 %Decreased by 49.37 %
- Crime Rate
- 2.00 %Unchanged by 0.00 %
Agent Activity
Cariad Property created the listing.
Nearby Schools
| Name | Type | Ofsted | Distance |
|---|---|---|---|
| Derwendeg Primary School | Welsh Establishment | 0.72 KM | |
| Glyn-Gaer Cp School | Welsh Establishment | 1.20 KM | |
| Hengoed Primary School | Welsh Establishment | 1.24 KM | |
| Ystrad Mynach Primary | Welsh Establishment | 1.50 KM | |
| Ysgol Gymraeg Bro Allta | Welsh Establishment | 1.55 KM |
Images
Nearby Streets
| Name | Average Price | Average Sqft | Distance |
|---|---|---|---|
| Rhodfa'r Penfflamgoch | £ 319,950 | 0 | 0.00 KM |
| Estyniad yr Hwyaid Gwyllt | £ 300,000 | 0 | 0.00 KM |
| Pottery Road | £ 385,000 | 0 | 0.00 KM |
| Pen-Y-Bryn Terrace | £ 0 | 0 | 0.00 KM |
| Penallta Road | £ 250,000 | 0 | 0.00 KM |
Nearby Transport
| Name | NLC | TLC | Distance |
|---|---|---|---|
| Ystrad Mynach | 4026 | YSM | 1.57 KM |
| Hengoed | 4028 | HNG | 2.18 KM |
| Pengam | 4021 | PGM | 2.18 KM |
| Gilfach Fargoed | 4022 | GFF | 3.68 KM |
| Bargoed | 4011 | BGD | 4.37 KM |
Nearby Listings
| Address | Price | Type | Score | Distance |
|---|---|---|---|---|
| Merlin Avenue, Hengoed, Caerphilly, CF82 | £ 269,950 | BUY | 7 / 10 | 0.00 KM |
| Merlin Avenue, Penallta, Caerphilly County Borough | £ 240,000 | BUY | 7 / 10 | 0.00 KM |
| Osprey Drive, Penallta, Hengoed, CF82 6BA | £ 240,000 | BUY | Unknown | 0.08 KM |
| Merlin Avenue, Penallta, CF82 | £ 425,000 | BUY | 7 / 10 | 0.11 KM |
| Peregrine Close, Penallta, Hengoed | £ 325,000 | BUY | 6 / 10 | 0.11 KM |
Nearby Properties
| Address | Price | Distance |
|---|---|---|
| 3 Merlin Avenue | £ 124,000 | 0.00 KM |
| 1 Merlin Avenue | £ 144,000 | 0.00 KM |
| 4 Merlin Avenue | £ 170,000 | 0.00 KM |
| 35 Osprey Drive | £ 220,000 | 0.08 KM |
| 16 Osprey Drive | £ 198,000 | 0.08 KM |