Northfield Road, Sheffield, South Yorkshire
By Auction House
£ 200,000
Reviews
2 out of 5 stars
Auction House says ..
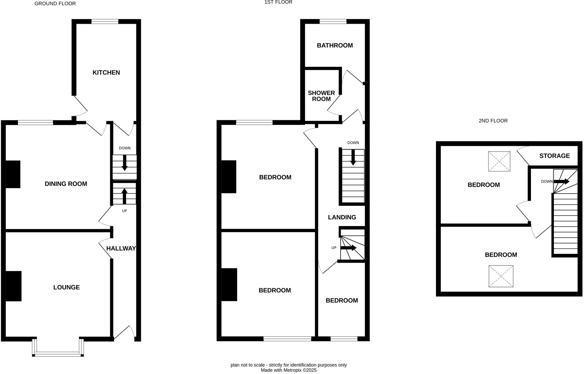
This five bedroom through terrace property with rear garden is offered for sale via traditional auction. The property does require internal renovation, however would make a great project or addition to a rental portfolio. The property is located close to Crookes shopping centre where a...
Property Oracle says ..
This is a five-bedroom terraced house located on Northfield Road in Walkley, Sheffield. The property requires extensive renovation and modernisation throughout. It features two bathrooms and a rear garden with a shed. The property is situated in a convenient location, close to local amenities, schools, and transport links. The asking price of £200,000 reflects the condition of the property and the need for significant investment to bring it up to modern standards. The property offers considerable potential for improvement and could be an attractive investment for someone looking to add value.
Therefore, we give this property 5 / 10. *Disclaimer: This is our option and does constitute a recommendation or financial advice. Do your own research. *
- Price
- 7
- Condition
- 3
- Location
- 7
- Land
- 6
- Bedrooms
- 5
- Bathrooms
- 2
- Sqft (est)
- 1,080.00
The heatmap indicates the level of crime in the area. The color of the heatmap indicates the crime severity and recency.
Metrics Year-on-Year
- Average area value
- 227,500.00 £Decreased by 1.97 %
- Est sale value
- 264,600.00 £Increased by 7.93 %
- Average area rental value
- 979.00 £/moIncreased by 16.83 %
- Est letting value
- 1,080.00 £/mo
- Est rental Yield
- 5.16 %Increased by 19.17 %
- Crime Rate
- 5.00 %Unchanged by 0.00 %
Agent Activity
Auction House created the listing.
Nearby Schools
| Name | Type | Ofsted | Distance |
|---|---|---|---|
| Westways Primary School | Community School | Good | 0.53 KM |
| Rivelin Primary School | Community School | Good | 1.05 KM |
| St Mary'S Church Of England Primary School | Academy Sponsor Led | Good | 1.19 KM |
| Walkley Primary School | Community School | Good | 1.30 KM |
| Lydgate Infant School | Community School | Good | 1.42 KM |
Images
Nearby Streets
| Name | Average Price | Average Sqft | Distance |
|---|---|---|---|
| Northfield Avenue | £ 470,000 | 0 | 0.00 KM |
| Northfield Road | £ 272,500 | 0 | 0.00 KM |
| Sandhurst Place | £ 0 | 0 | 0.00 KM |
| Rennaissance House Mews | £ 0 | 0 | 0.00 KM |
| Crookes | £ 0 | 0 | 0.00 KM |
Nearby Transport
| Name | NLC | TLC | Distance |
|---|---|---|---|
| Sheffield | 6691 | SHF | 4.99 KM |
| Dore And Totley | 6690 | DOR | 6.89 KM |
| Chapeltown (South Yorkshire) | 6664 | CLN | 9.27 KM |
Nearby Listings
| Address | Price | Type | Score | Distance |
|---|---|---|---|---|
| Northfield Road, Sheffield, South Yorkshire | £ 200,000 | BUY | 5 / 10 | 0.00 KM |
| Northfield Road, Crookes, Sheffield | £ 300,000 | BUY | 6 / 10 | 0.02 KM |
| Northfield Court, Crookes, Sheffield | £ 235,000 | BUY | 7 / 10 | 0.07 KM |
| Western Road, Crookes, Sheffield | £ 285,000 | BUY | 7 / 10 | 0.08 KM |
| Bradley Street, Crookes, Sheffield | £ 220,000 | BUY | 7 / 10 | 0.09 KM |
Nearby Properties
| Address | Price | Distance |
|---|---|---|
| 122 Northfield Road | £ 235,000 | 0.03 KM |
| 48 Northfield Road | £ 128,000 | 0.03 KM |
| 46 Northfield Road | £ 223,000 | 0.03 KM |
| 126 Northfield Road | £ 145,000 | 0.03 KM |
| 162 Northfield Road | £ 198,000 | 0.03 KM |