Salisbury Mews, Horsforth, Leeds, West Yorkshire, LS18
By Hardisty & co
£ 120,000
Reviews
3 out of 5 stars
Hardisty & co says ..
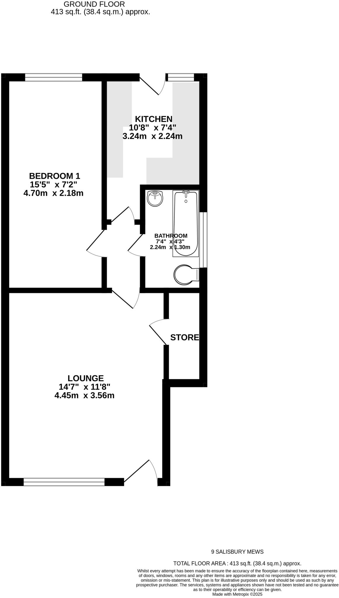
This charming ground floor apartment blends character features with modern comfort. Boasting a spacious double bedroom, a generous lounge, a well-equipped kitchen, and a private courtyard garden, it offers both style and practicality. With its own private front entrance, on-street parking, and a ...
Property Oracle says ..
This is a one-bedroom flat located in Salisbury Mews, Horsforth, Leeds. The property is listed for sale with Hardisty & Co at £120,000. The flat benefits from its location in Horsforth, which offers good transport links and proximity to schools. However, the property requires renovation, particularly in the bathroom and kitchen. The garden also needs attention. Despite the need for renovation, the price appears reasonable given the location and potential. The property would likely appeal to first-time buyers or investors willing to undertake renovation work. The flat is located close to several amenities and transport links, making it a convenient location for residents. The nearby train station provides easy access to Leeds city centre and other destinations. Overall, this property offers an opportunity to acquire an affordable flat in a desirable location, with the potential to add value through renovation.
Therefore, we give this property 6 / 10. *Disclaimer: This is our option and does constitute a recommendation or financial advice. Do your own research. *
- Price
- 8
- Condition
- 4
- Location
- 7
- Land
- 5
- Bedrooms
- 1
- Bathrooms
- 1
- Sqft (est)
- 390.30
The heatmap indicates the level of crime in the area. The color of the heatmap indicates the crime severity and recency.
Metrics Year-on-Year
- Average area value
- 389,660.00 £Decreased by 2.80 %
- Est sale value
- 158,461.80 £Increased by 42.96 %
- Average area rental value
- 1,475.00 £/moIncreased by 31.70 %
- Est letting value
- 390.30 £/mo
- Est rental Yield
- 4.54 %Increased by 35.52 %
- Crime Rate
- 4.00 %Unchanged by 0.00 %
Agent Activity
Hardisty & co created the listing.
Nearby Schools
| Name | Type | Ofsted | Distance |
|---|---|---|---|
| St Mary'S Catholic Primary School, Horsforth | Academy Converter | 0.81 KM | |
| Broadgate Primary School | Community School | Good | 0.96 KM |
| Horsforth Children'S Centre | Children's Centre | 1.01 KM | |
| St Margaret'S Church Of England Voluntary Controlled Primary School | Voluntary Controlled School | Outstanding | 1.35 KM |
| Lighthouse School Leeds | Free Schools Special | Good | 1.36 KM |
Images
Nearby Streets
| Name | Average Price | Average Sqft | Distance |
|---|---|---|---|
| St. James Terrace | £ 0 | 0 | 0.00 KM |
| Breary Walk | £ 0 | 0 | 0.00 KM |
| Springfield Gardens | £ 200,000 | 0 | 0.00 KM |
| Back Low Lane | £ 0 | 0 | 0.00 KM |
| St James Avenue | £ 256,482 | 0 | 0.00 KM |
Nearby Transport
| Name | NLC | TLC | Distance |
|---|---|---|---|
| Horsforth | 8499 | HRS | 0.94 KM |
| Kirkstall Forge | 6544 | KLF | 1.97 KM |
| Bramley (West Yorkshire) | 8496 | BLE | 4.24 KM |
| Headingley | 8498 | HDY | 4.25 KM |
| Burley Park | 8500 | BUY | 6.12 KM |
Nearby Listings
| Address | Price | Type | Score | Distance |
|---|---|---|---|---|
| Salisbury Mews, Horsforth, Leeds, West Yorkshire, LS18 | £ 120,000 | BUY | 6 / 10 | 0.00 KM |
| Salisbury Mews, Horsforth, Leeds, West Yorkshire | £ 119,950 | BUY | 6 / 10 | 0.05 KM |
| Low Lane, Horsforth, Leeds | £ 260,000 | BUY | 7 / 10 | 0.05 KM |
| Low Lane, Horsforth, LS18 | £ 300,000 | BUY | Unknown | 0.05 KM |
| Salisbury View, Horsforth, Leeds, LS18 5QP | £ 280,000 | BUY | 6 / 10 | 0.06 KM |
Nearby Properties
| Address | Price | Distance |
|---|---|---|
| 19 Salisbury Mews | £ 75,000 | 0.02 KM |
| 28 Salisbury Mews | £ 213,000 | 0.02 KM |
| 30 Salisbury Mews | £ 220,000 | 0.02 KM |
| 14 Salisbury Mews | £ 98,000 | 0.02 KM |
| 18 Salisbury Mews | £ 45,000 | 0.02 KM |