Barn at Beckstonegate Farm, Low Row, Brampton CA8 2ND
By PFK
£ 125,000
Reviews
3 out of 5 stars
PFK says ..
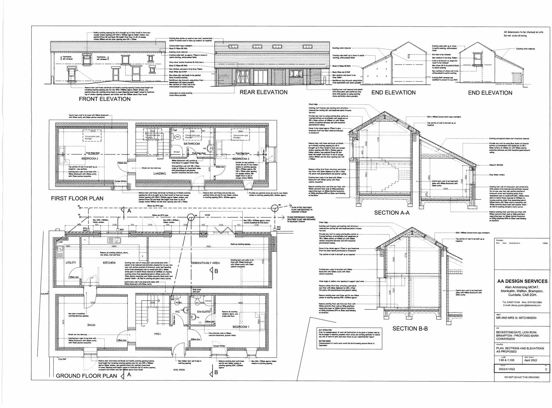
A wonderful opportunity to create your dream home in a stunning semi rural location, with excellent road links and access to amenities. This project has been granted full planning permission to convert this charming detached barn into a three bedroom two bathroom home, with private vehicle access...
Property Oracle says ..
The property is a barn conversion located in Low Row, Brampton, Cumbria. The location is rural, with nearby schools (Hallbankgate Village School, Lanercost Cofe Primary School, Walton & Lees Hill Cofe School, and Gilsland Cofe Primary School) and a train station (Brampton (Cumbria)). The area appears quiet and peaceful, based on the provided imagery. The barn itself is in seemingly good structural condition, though the images do not show the interior. The property has a significant amount of land surrounding it. However, the lack of bedrooms and bathrooms needs to be considered. The list price of £125,000 seems reasonable considering the size of the property and land, but the lack of internal finishes and the need for conversion work should be factored in. More information on the current state of the barn and the planned conversion would help refine the price assessment.
Therefore, we give this property 7 / 10. *Disclaimer: This is our option and does constitute a recommendation or financial advice. Do your own research. *
- Price
- 7
- Condition
- 7
- Location
- 6
- Land
- 9
- Bedrooms
- 0
- Bathrooms
- 0
- Sqft (est)
- 13,902.88
The heatmap indicates the level of crime in the area. The color of the heatmap indicates the crime severity and recency.
Metrics Year-on-Year
- Average area value
- 282,389.00 £Decreased by 5.89 %
- Est sale value
- 5,700,180.80 £Increased by 16.48 %
- Average area rental value
- 1,083.00 £/moDecreased by 11.16 %
- Est letting value
- 13,902.88 £/moUnchanged by 0.00 %
- Est rental Yield
- 4.60 %Decreased by 5.74 %
- Crime Rate
- 0.00 %
Agent Activity
PFK created the listing.
Nearby Schools
| Name | Type | Ofsted | Distance |
|---|---|---|---|
| Hallbankgate Village School | Foundation School | Good | 4.04 KM |
| Lanercost Cofe Primary School | Voluntary Controlled School | Outstanding | 4.90 KM |
| Walton & Lees Hill Cofe School | Voluntary Controlled School | Good | 7.30 KM |
| Gilsland Cofe Primary School | Academy Converter | Requires improvement | 8.04 KM |
Images
Nearby Streets
| Name | Average Price | Average Sqft | Distance |
|---|---|---|---|
| Railway Cottages | £ 240,000 | 0 | 0.00 KM |
| Brow Top | £ 150,000 | 0 | 0.00 KM |
Nearby Transport
| Name | NLC | TLC | Distance |
|---|---|---|---|
| Brampton (Cumbria) | 7565 | BMP | 7.20 KM |
Nearby Listings
| Address | Price | Type | Score | Distance |
|---|---|---|---|---|
| Barn at Beckstonegate Farm, Low Row, Brampton CA8 2ND | £ 125,000 | BUY | 7 / 10 | 0.00 KM |
| Low Row, Brampton, CA8 | £ 340,000 | BUY | Unknown | 0.62 KM |
| Low Row, Brampton, Cumbria, CA8 | £ 290,000 | BUY | Unknown | 0.62 KM |
| Low Row, Brampton, CA8 | £ 220,000 | BUY | 7 / 10 | 1.01 KM |
Nearby Properties
| Address | Price | Distance |
|---|---|---|
| 6 Denton Crescent | £ 187,500 | 0.57 KM |
| 3 Dairy Cottages | £ 62,500 | 0.63 KM |
| 4 - 5 Dairy Cottages | £ 140,000 | 0.63 KM |
| 4 James Terrace | £ 98,000 | 0.64 KM |
| 2 James Terrace | £ 130,000 | 0.64 KM |