Christie Miller Road, Salisbury
By Oliver Chandler
£ 450,000
Reviews
3 out of 5 stars
Oliver Chandler says ..
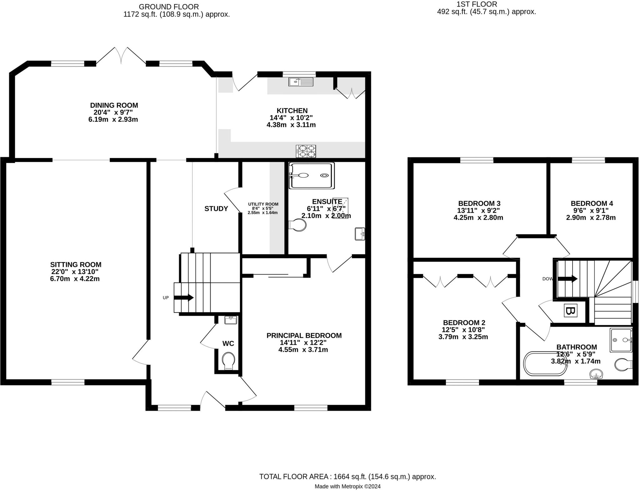
We are pleased to present this spacious four-bedroom property in a quiet, yet central residential location.This home boasts four generously sized bedrooms, providing ample space for family members to enjoy their privacy and comfort.The ground floor features a versatile bedroom complete with an ...
Property Oracle says ..
This property is a 4-bedroom, 2-bathroom house located in Salisbury, Wiltshire. It is listed at £450,000 and has 1,330 sqft of living space and a 1,664 sqft plot. The property appears to be in good condition, with a modern kitchen and bathrooms. There is a garden and patio area. The location is convenient, with nearby schools and transportation. The price seems reasonable compared to similar properties in the area.
Therefore, we give this property 7 / 10. *Disclaimer: This is our option and does constitute a recommendation or financial advice. Do your own research. *
- Price
- 7
- Condition
- 8
- Location
- 9
- Land
- 7
- Bedrooms
- 4
- Bathrooms
- 2
- Sqft (est)
- 1,330.00
- Lot (est)
- 1,664.00
The heatmap indicates the level of crime in the area. The color of the heatmap indicates the crime severity and recency.
Metrics Year-on-Year
- Average area value
- 286,500.00 £Increased by 18.03 %
- Est sale value
- 493,430.00 £Increased by 15.22 %
- Average area rental value
- 1,106.00 £/moIncreased by 14.85 %
- Est letting value
- 1,330.00 £/moUnchanged by 0.00 %
- Est rental Yield
- 4.63 %Decreased by 2.73 %
- Crime Rate
- 7.00 %Unchanged by 0.00 %
Agent Activity
Oliver Chandler created the listing.
Nearby Schools
| Name | Type | Ofsted | Distance |
|---|---|---|---|
| Salisbury, Manor Fields Primary School | Community School | Good | 0.42 KM |
| Sarum St Paul'S Cofe (Va) Primary School | Voluntary Aided School | Outstanding | 0.69 KM |
| The Wasp Centre | Other Independent School | Requires improvement | 0.83 KM |
| Pembroke Park Primary School | Academy Sponsor Led | Good | 0.92 KM |
| Elim Children'S Centre | Children's Centre | 1.30 KM |
Images
Nearby Streets
| Name | Average Price | Average Sqft | Distance |
|---|---|---|---|
| West End Road | £ 0 | 0 | 0.00 KM |
| Finchley Road | £ 0 | 0 | 0.00 KM |
| Ladysmith Road | £ 0 | 0 | 0.00 KM |
| Westminster Road | £ 0 | 0 | 0.00 KM |
| Newton Road | £ 0 | 0 | 0.00 KM |
Nearby Transport
| Name | NLC | TLC | Distance |
|---|---|---|---|
| Salisbury | 5663 | SAL | 1.02 KM |
Nearby Listings
| Address | Price | Type | Score | Distance |
|---|---|---|---|---|
| Christie Miller Road, Salisbury | £ 450,000 | BUY | 7 / 10 | 0.00 KM |
| Highbury Close, Salisbury ***VIDEO TOUR*** | £ 200,000 | BUY | Unknown | 0.09 KM |
| Christie Miller Road, Salisbury | £ 440,000 | BUY | 6 / 10 | 0.10 KM |
| Christie Miller Road, Salisbury | £ 450,000 | BUY | Unknown | 0.10 KM |
| Montgomery Gardens, Salisbury | £ 189,950 | BUY | 6 / 10 | 0.13 KM |
Nearby Properties
| Address | Price | Distance |
|---|---|---|
| 7 Highbury Close | £ 172,500 | 0.08 KM |
| 4 Highbury Close | £ 255,000 | 0.08 KM |
| 10 Highbury Close | £ 191,000 | 0.08 KM |
| 8 Highbury Close | £ 175,000 | 0.08 KM |
| 6 Highbury Close | £ 213,000 | 0.08 KM |