Eaglesfield, Cockermouth
GR

Eaglesfield, Cockermouth

By Grisdales Estates Agents

£ 238,000

Grisdales Estates Agents says ..

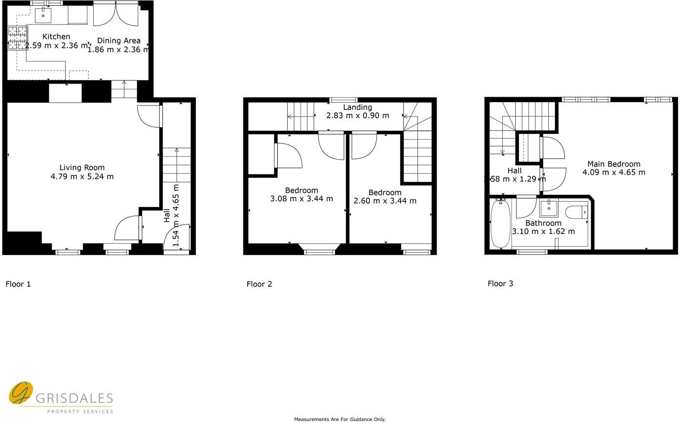
STEEPED IN HISTORY, this super three storey, three bedroomed mid terraced cottage was renovated and refurbished about 10 years ago to a high specification by local and renowned builders. Until recently it was "Annie's" living accommodation, Annie being the pub landlady who ran the adjoining ...

Bedrooms
3
Bathrooms
1

The heatmap indicates the level of crime in the area. The color of the heatmap indicates the crime severity and recency.

Metrics Year-on-Year

Average area value
263,120.00 £
Increased by 12.70 %
from 233,468.00 £
Average area rental value
700.00 £/mo
Decreased by 0.57 %
from 704.00 £/mo
Est rental Yield
3.19 %
Decreased by 11.88 %
from 3.62 %
Crime Rate
0.00 %
from 0.00 %

Agent Activity

  • Grisdales Estates Agents created the listing.

Nearby Schools

NameTypeOfstedDistance
Eaglesfield Paddle Cofe Primary AcademyAcademy Converter2.48 KM
St Bridget'S Cofe SchoolVoluntary Controlled SchoolGood3.35 KM
St Joseph'S Catholic Primary SchoolVoluntary Aided SchoolRequires improvement4.56 KM
Dean Cofe SchoolAcademy Sponsor Led4.70 KM
Fairfield Primary SchoolAcademy ConverterGood4.78 KM

Images

DSC_0599.jpg KITCHEN BEDROOM TWO DSC_0581.jpg DSC_0604.jpg DSC_0618.jpg DSC_0589.jpg LOUNGE LOUNGE KITCHEN KITCHEN FIRST FLOOR LANDING BEDROOM ONE BEDROOM ONE BEDROOM TWO BEDROOM THREE BEDROOM THREE BATHROOM BATHROOM GARDEN DSC_0592.jpg GARDEN DSC_0591.jpg DSC_0624.jpg PARKING DSC_0583.jpg

Nearby Streets

NameAverage PriceAverage SqftDistance
Brookside £ 500,00000.00 KM
The Bank £ 000.00 KM

Nearby Listings

AddressPriceTypeScoreDistance
Eaglesfield, Cockermouth £ 525,000BUY7 / 100.00 KM
Eaglesfield, Cockermouth £ 238,000BUYUnknown0.00 KM
Eaglecrest, Eaglesfield, Cockermouth, Cumbria £ 250,000BUY4 / 100.10 KM
Barkers Meadow, Eaglesfield, CA13 £ 440,000BUY7 / 100.11 KM
11 Barkers Meadow, Eaglesfield, Cockermouth, Cumbria £ 450,000BUYUnknown0.14 KM

Nearby Properties

AddressPriceDistance
1 Moores Terrace £ 105,0000.06 KM
2 Moores Terrace £ 255,0000.06 KM
15 Barkers Meadow £ 75,0000.21 KM
2 Barkers Meadow £ 249,9500.21 KM
8 Barkers Meadow £ 165,0000.21 KM