Stanley Road, London, TW11 8UE
By Pattinson Estate Agents
£ 210,000
Reviews
2 out of 5 stars
Pattinson Estate Agents says ..
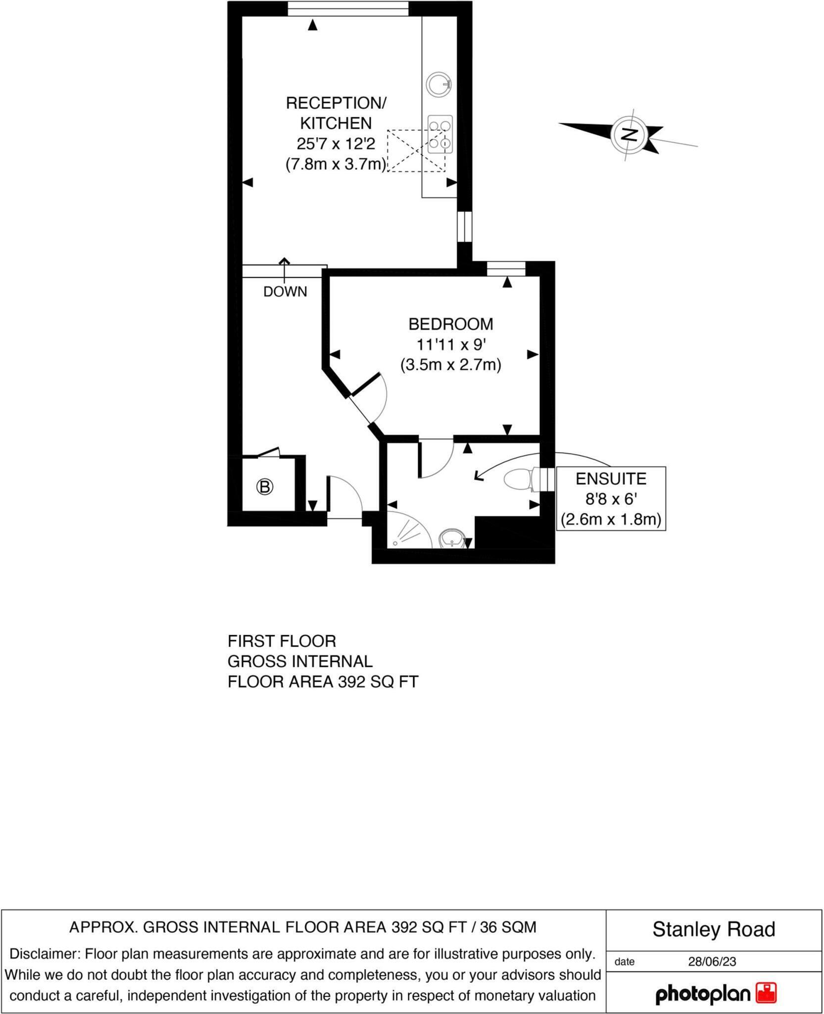
Conveniently located within easy reach of Teddington town centre , this appealing first floor flat offers bright and characterful accommodation with modern interiors throughout. Accommodation comprises a spacious entrance hallway with inbuilt storage cupboard, leading into the light and airy, ...
Property Oracle says ..
Therefore, we give this property 5 / 10. *Disclaimer: This is our option and does constitute a recommendation or financial advice. Do your own research. *
- Price
- 8
- Condition
- 6
- Location
- 7
- Land
- 1
- Bedrooms
- 1
- Bathrooms
- 1
- Sqft (est)
- 392.00
The heatmap indicates the level of crime in the area. The color of the heatmap indicates the crime severity and recency.
Metrics Year-on-Year
- Average area value
- 769,422.00 £Decreased by 2.51 %
- Est sale value
- 262,640.00 £Decreased by 13.21 %
- Average area rental value
- 2,930.00 £/moIncreased by 21.33 %
- Est letting value
- 784.00 £/moUnchanged by 0.00 %
- Est rental Yield
- 4.57 %Increased by 24.52 %
- Crime Rate
- 7.00 %Unchanged by 0.00 %
from 789,223.00 £
from 302,624.00 £
from 2,415.00 £/mo
from 784.00 £/mo
from 3.67 %
from 7.00 %
Agent Activity
Pattinson Estate Agents created the listing.
Nearby Schools
| Name | Type | Ofsted | Distance |
|---|---|---|---|
| Stanley Primary School | Community School | Good | 0.24 KM |
| Stanley Children'S Centre | Children's Centre | 0.25 KM | |
| St James'S Roman Catholic Primary School | Voluntary Aided School | Outstanding | 0.64 KM |
| The Mall School | Other Independent School | 0.73 KM | |
| St Mary'S And St Peter'S Church Of England Primary School | Voluntary Aided School | Outstanding | 0.74 KM |
Images
Nearby Streets
| Name | Average Price | Average Sqft | Distance |
|---|---|---|---|
| Capital Joinery | £ 329,975 | 0 | 0.00 KM |
| Grove Road | £ 0 | 0 | 0.00 KM |
| Traherne Lodge | £ 335,000 | 0 | 0.00 KM |
| Linden Grove | £ 0 | 0 | 0.00 KM |
| Preston Close | £ 0 | 0 | 0.00 KM |
Nearby Transport
| Name | NLC | TLC | Distance |
|---|---|---|---|
| Fulwell | 5587 | FLW | 0.49 KM |
| Strawberry Hill | 5607 | STW | 1.06 KM |
| Teddington | 5572 | TED | 1.64 KM |
| Whitton | 5611 | WTN | 2.40 KM |
| Twickenham | 5574 | TWI | 2.64 KM |
Nearby Listings
| Address | Price | Type | Score | Distance |
|---|---|---|---|---|
| Stanley Road, London, TW11 8UE | £ 210,000 | BUY | 5 / 10 | 0.00 KM |
| Stanley Road, Teddington | £ 409,950 | BUY | 5 / 10 | 0.04 KM |
| Stanley Road, Teddington, Middlesex, TW11 | £ 425,000 | BUY | 8 / 10 | 0.05 KM |
| Stanley Road, Teddington, TW11 | £ 260,000 | BUY | 6 / 10 | 0.07 KM |
| Princes Road, Teddington | £ 825,000 | BUY | Unknown | 0.10 KM |
Nearby Properties
| Address | Price | Distance |
|---|---|---|
| 224 Stanley Road | £ 1,150,000 | 0.06 KM |
| 228e Stanley Road | £ 316,000 | 0.06 KM |
| 228c Stanley Road | £ 183,000 | 0.06 KM |
| 228b Stanley Road | £ 340,000 | 0.06 KM |
| 87c Stanley Road | £ 379,950 | 0.08 KM |