NI
Broadgrove Nursery Farm Shop, Eckington Road, Birlingham
By Nigel Poole & Partners
£ 600,000
Reviews
2 out of 5 stars
Nigel Poole & Partners says ..
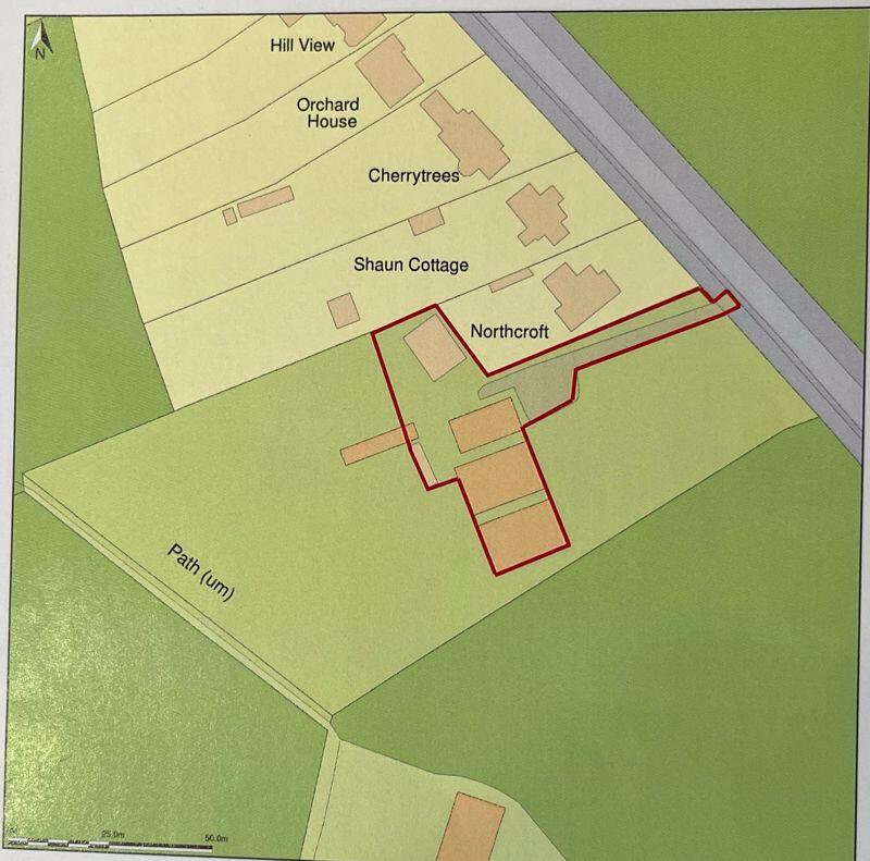
**A REDEVELOPMENT SITE WITH BOTH RESIDENTIAL AND COMMERCIAL OPPORTUNITIES** Commercial consent granted for 7-units on part of the site - balance is available for further development. Residential approval in principle for 4 units on part of the site - rest also being available.
Property Oracle says ..
Therefore, we give this property 5 / 10. *Disclaimer: This is our option and does constitute a recommendation or financial advice. Do your own research. *
- Price
- 4
- Condition
- 0
- Location
- 7
- Land
- 5
- Bedrooms
- 0
- Bathrooms
- 0
The heatmap indicates the level of crime in the area. The color of the heatmap indicates the crime severity and recency.
Metrics Year-on-Year
- Average area value
- 228,000.00 £Increased by 7.96 %
- Average area rental value
- 776.00 £/moDecreased by 23.55 %
- Est rental Yield
- 4.08 %Decreased by 29.29 %
- Crime Rate
- 0.00 %
from 211,190.00 £
from 1,015.00 £/mo
from 5.77 %
from 0.00 %
Agent Activity
Nigel Poole & Partners created the listing.
Nearby Schools
| Name | Type | Ofsted | Distance |
|---|---|---|---|
| Defford-Cum-Besford Cofe School | Voluntary Controlled School | Good | 1.31 KM |
| Eckington Cofe First School | Voluntary Controlled School | Good | 2.27 KM |
| Blossom Vale Children'S Centre | Children's Centre | 3.73 KM | |
| Abbey Park First And Nursery School | Community School | Good | 3.73 KM |
| Abbey Park Middle School | Community School | Requires improvement | 3.73 KM |
Images
Nearby Streets
| Name | Average Price | Average Sqft | Distance |
|---|---|---|---|
| Spring Bank | £ 0 | 0 | 0.00 KM |
| Salters lane | £ 0 | 0 | 0.00 KM |
| Lower End | £ 1,400,000 | 0 | 0.00 KM |
Nearby Transport
| Name | NLC | TLC | Distance |
|---|---|---|---|
| Pershore | 4887 | PSH | 6.03 KM |
| Worcestershire Parkway | 6580 | WOP | 9.24 KM |
Nearby Listings
| Address | Price | Type | Score | Distance |
|---|---|---|---|---|
| Broadgrove Nursery Farm Shop, Eckington Road, Birlingham | £ 600,000 | BUY | 5 / 10 | 0.00 KM |
| Upper End, Birlingham, WR10 | £ 475,000 | BUY | 7 / 10 | 0.77 KM |
| Main Street, Defford, Worcester | £ 120,000 | BUY | 6 / 10 | 0.83 KM |
| Main Street, Defford, Pershore, Worcester | £ 185,000 | BUY | 6 / 10 | 0.86 KM |
| Defford, Worcestershire, WR8 | £ 120,000 | BUY | 7 / 10 | 0.89 KM |
Nearby Properties
| Address | Price | Distance |
|---|---|---|
| Bredon View | £ 247,500 | 0.01 KM |
| Dairy Cottage | £ 500,000 | 0.01 KM |
| Old Police Station | £ 470,000 | 0.01 KM |
| Bakers Hill Cottage | £ 247,000 | 0.34 KM |
| The Old Dairy | £ 370,000 | 0.59 KM |