MOVE online says ..
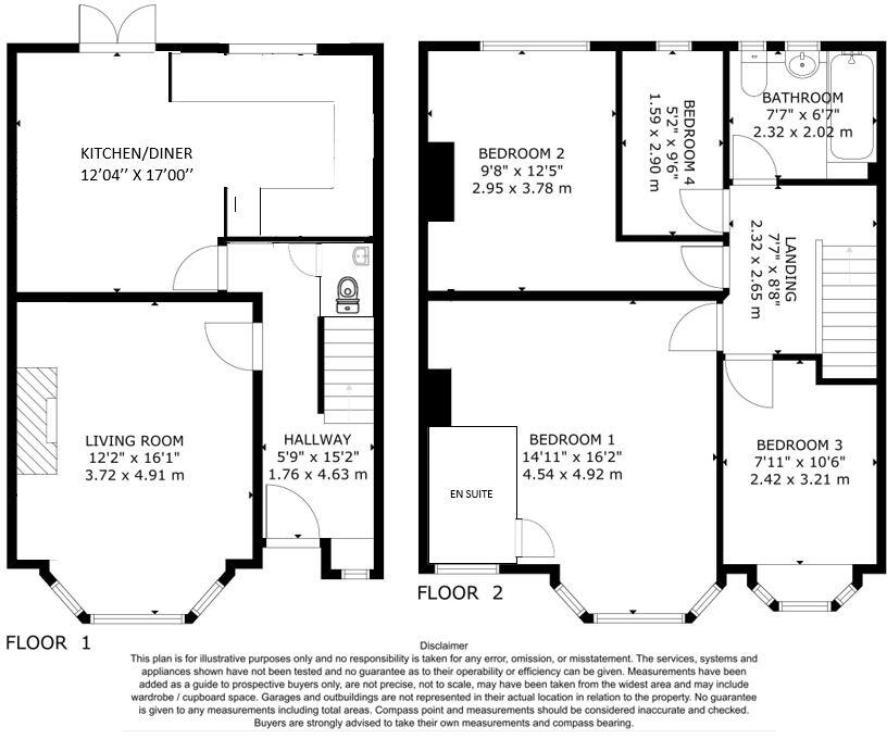
MOVE online are pleased to offer for sale with no onward chain, this stunning fully refurbished and re-modernised FOUR bedroom terraced house located within the heart of Leigh-on-Sea. This ideal property provides spacious and modern accommodation which includes a welcoming entrance hallway, (cont.)
Property Oracle says ..
This four-bedroom terraced house in Leigh-on-Sea, Essex, presents itself as a well-maintained and modernised property. The images showcase a recently renovated interior with a contemporary aesthetic, featuring a new kitchen and bathrooms. The property’s location in Glendale Gardens offers convenience with its closeness to Leigh-on-Sea’s amenities, including the train station and local schools, adding to its appeal. While information regarding the exact plot size is lacking, the property does appear to have a small garden with a deck area. The asking price of £600,000 requires further analysis to definitively ascertain if it represents excellent value, as comparable sales data is missing. Nevertheless, the quality of renovation, and the generally desirable location of Leigh-on-Sea makes this a very attractive property to those looking for a move-in ready home in this coastal Essex town. Further research into recent sales within Glendale Gardens would refine the assessment of its value in comparison to similar properties. The current asking price is comparable to similar properties listed in the area but the lack of comparative data needs to be noted.
Therefore, we give this property 7 / 10. *Disclaimer: This is our option and does constitute a recommendation or financial advice. Do your own research. *
- Price
- 7
- Condition
- 9
- Location
- 8
- Land
- 4
- Bedrooms
- 4
- Bathrooms
- 2
- Sqft (est)
- 1,264.11
The heatmap indicates the level of crime in the area. The color of the heatmap indicates the crime severity and recency.
Metrics Year-on-Year
- Average area value
- 457,857.00 £Increased by 6.96 %
- Est sale value
- 672,506.52 £Increased by 9.24 %
- Average area rental value
- 1,636.00 £/moIncreased by 2.83 %
- Est letting value
- 1,264.11 £/moUnchanged by 0.00 %
- Est rental Yield
- 4.29 %Decreased by 3.81 %
- Crime Rate
- 11.00 %Unchanged by 0.00 %
Agent Activity
MOVE online created the listing.
Nearby Schools
| Name | Type | Ofsted | Distance |
|---|---|---|---|
| West Leigh Infant School | Community School | Good | 0.33 KM |
| West Leigh Junior School | Academy Converter | 0.33 KM | |
| St. Michael'S School | Other Independent School | 0.74 KM | |
| Leigh North Street Primary School | Community School | Requires improvement | 0.96 KM |
| Belfairs Academy | Academy Converter | Good | 1.03 KM |
Images
Nearby Streets
| Name | Average Price | Average Sqft | Distance |
|---|---|---|---|
| Grange Road | £ 0 | 0 | 0.00 KM |
| Alley Dock | £ 0 | 0 | 0.00 KM |
| St. Clement's Avenue | £ 700,000 | 0 | 0.00 KM |
| Hazel Close | £ 575,000 | 0 | 0.00 KM |
| Station Road | £ 408,000 | 0 | 0.00 KM |
Nearby Transport
| Name | NLC | TLC | Distance |
|---|---|---|---|
| Leigh-On-Sea | 7446 | LES | 0.89 KM |
| Chalkwell | 7469 | CHW | 2.62 KM |
| Westcliff | 7476 | WCF | 4.91 KM |
| Hockley | 6880 | HOC | 6.66 KM |
| Southend Airport | 4787 | SIA | 6.88 KM |
Nearby Listings
| Address | Price | Type | Score | Distance |
|---|---|---|---|---|
| Leigh on Sea, SS9 | £ 600,000 | BUY | 7 / 10 | 0.00 KM |
| Glendale Gardens, Leigh-on-sea, SS9 | £ 575,000 | BUY | 8 / 10 | 0.00 KM |
| Glendale Gardens, Leigh-On-Sea | £ 600,000 | BUY | 6 / 10 | 0.01 KM |
| Glendale Gardens, Leigh-On-Sea | £ 600,000 | BUY | 7 / 10 | 0.01 KM |
| Glendale Gardens, Leigh-on-sea, SS9 | £ 535,000 | BUY | 7 / 10 | 0.02 KM |
Nearby Properties
| Address | Price | Distance |
|---|---|---|
| 148 Glendale Gardens | £ 425,000 | 0.03 KM |
| 118 Glendale Gardens | £ 79,995 | 0.03 KM |
| 150 Glendale Gardens | £ 385,000 | 0.03 KM |
| 158 Glendale Gardens | £ 90,000 | 0.03 KM |
| 160a Glendale Gardens | £ 250,000 | 0.03 KM |