Hunters says ..
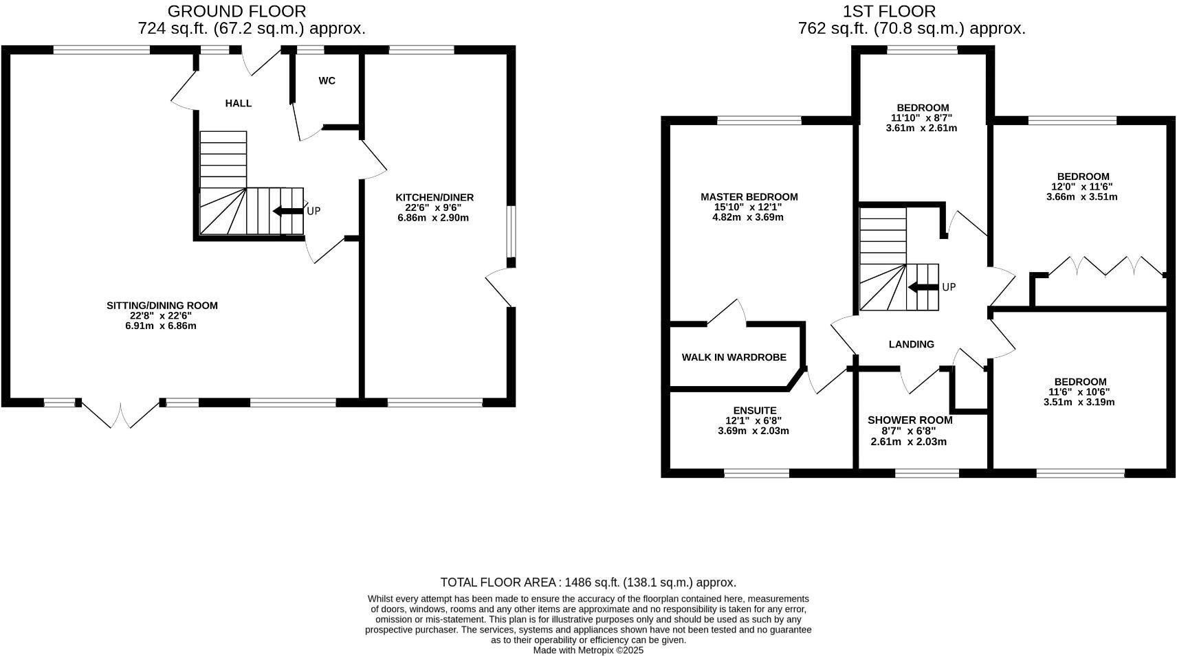
GUIDE PRICE £600,000 - £625,000. Well-presented detached family home with driveway and garage, offering a bright modern kitchen/breakfast room, spacious sitting/dining room and four bedrooms including the master with en-suite shower-room, located within Cranbrook School Catchment Area and within ...
Property Oracle says ..
Therefore, we give this property 7 / 10. *Disclaimer: This is our option and does constitute a recommendation or financial advice. Do your own research. *
- Price
- 7
- Condition
- 8
- Location
- 7
- Land
- 8
- Bedrooms
- 4
- Bathrooms
- 2
- Sqft (est)
- 1,414.28
The heatmap indicates the level of crime in the area. The color of the heatmap indicates the crime severity and recency.
Metrics Year-on-Year
- Average area value
- 257,097.00 £Decreased by 8.25 %
- Est sale value
- 466,712.40 £Increased by 14.98 %
- Average area rental value
- 956.00 £/moIncreased by 1.92 %
- Est letting value
- 1,414.28 £/mo
- Est rental Yield
- 4.46 %Increased by 10.95 %
- Crime Rate
- 21.00 %Unchanged by 0.00 %
from 280,201.00 £
from 405,898.36 £
from 938.00 £/mo
from 0.00 £/mo
from 4.02 %
from 21.00 %
Agent Activity
Hunters created the listing.
Nearby Schools
| Name | Type | Ofsted | Distance |
|---|---|---|---|
| John Mayne Church Of England Primary School, Biddenden | Voluntary Controlled School | Good | 0.31 KM |
| Greenfields School | Other Independent Special School | Good | 3.00 KM |
| Little Acorns School | Other Independent Special School | Good | 5.42 KM |
| St Michael'S Church Of England Primary School | Academy Converter | Good | 6.07 KM |
| Headcorn Children'S Centre | Children's Centre | 6.24 KM |
Images
Nearby Transport
| Name | NLC | TLC | Distance |
|---|---|---|---|
| Headcorn | 5220 | HCN | 5.71 KM |
Nearby Listings
| Address | Price | Type | Score | Distance |
|---|---|---|---|---|
| BIDDENDEN | £ 600,000 | BUY | 7 / 10 | 0.00 KM |
| Shuttle Close, Biddenden, TN27 | £ 600,000 | BUY | 7 / 10 | 0.00 KM |
| Shuttle Close, Biddenden, Ashford, Kent, TN27 | £ 799,950 | BUY | 7 / 10 | 0.07 KM |
| North Street, Biddenden | £ 745,000 | BUY | 7 / 10 | 0.09 KM |
| North Street, Biddenden, Ashford | £ 750,000 | BUY | 6 / 10 | 0.10 KM |
Nearby Properties
| Address | Price | Distance |
|---|---|---|
| 5 Shuttle Close | £ 412,500 | 0.03 KM |
| 10 Shuttle Close | £ 212,000 | 0.03 KM |
| 4 Shuttle Close | £ 190,000 | 0.03 KM |
| 8 Shuttle Close | £ 387,500 | 0.03 KM |
| 25a North Street | £ 310,000 | 0.04 KM |