The Address says ..
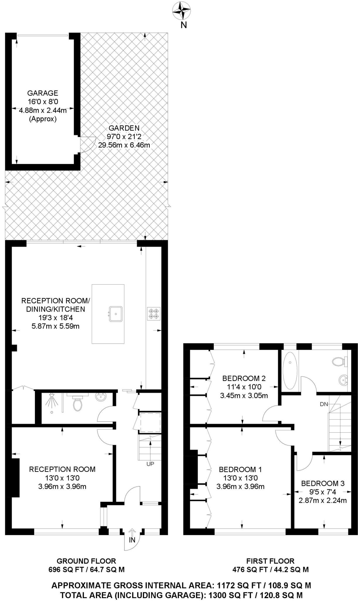
Guide price £675,000 to £700,000The Address is pleased to offer this beautifully presented three bedroom, two bathroom terraced house in Beckenham.
Property Oracle says ..
Therefore, we give this property 7 / 10. *Disclaimer: This is our option and does constitute a recommendation or financial advice. Do your own research. *
- Price
- 7
- Condition
- 8
- Location
- 7
- Land
- 7
- Bedrooms
- 3
- Bathrooms
- 2
- Sqft (est)
- 1,001.74
The heatmap indicates the level of crime in the area. The color of the heatmap indicates the crime severity and recency.
Metrics Year-on-Year
- Average area value
- 750,000.00 £Increased by 5.57 %
- Est sale value
- 555,965.70 £Increased by 5.71 %
- Average area rental value
- 1,775.00 £/moDecreased by 23.52 %
- Est letting value
- 1,001.74 £/moUnchanged by 0.00 %
- Est rental Yield
- 2.84 %Decreased by 27.55 %
- Crime Rate
- 13.00 %Unchanged by 0.00 %
from 710,454.00 £
from 525,913.50 £
from 2,321.00 £/mo
from 1,001.74 £/mo
from 3.92 %
from 13.00 %
Agent Activity
The Address created the listing.
Nearby Schools
| Name | Type | Ofsted | Distance |
|---|---|---|---|
| Eden Park High School | Free Schools | 0.19 KM | |
| Marian Vian Primary School | Academy Converter | Good | 0.79 KM |
| Orchard Park High (Croydon) | Academy Sponsor Led | Good | 1.01 KM |
| Monks Orchard Primary School | Academy Converter | 1.12 KM | |
| Balgowan Primary School | Academy Converter | Good | 1.33 KM |
Images
Nearby Streets
| Name | Average Price | Average Sqft | Distance |
|---|---|---|---|
| Ash Tree Close | £ 725,000 | 0 | 0.00 KM |
| Priory Close | £ 625,000 | 0 | 0.00 KM |
| Coverack Close | £ 444,500 | 0 | 0.00 KM |
| Lavender Way | £ 0 | 0 | 0.00 KM |
| Uplands | £ 950,000 | 0 | 0.00 KM |
Nearby Transport
| Name | NLC | TLC | Distance |
|---|---|---|---|
| Elmers End | 5049 | ELE | 1.38 KM |
| Eden Park | 5056 | EDN | 1.39 KM |
| Clock House | 5048 | CLK | 1.79 KM |
| Birkbeck | 5401 | BIK | 2.27 KM |
| Kent House | 5080 | KTH | 2.30 KM |
Nearby Listings
| Address | Price | Type | Score | Distance |
|---|---|---|---|---|
| Lloyds Way, Beckenham, BR3 | £ 675,000 | BUY | 7 / 10 | 0.00 KM |
| 299a Upper Elmers End Road, Beckenham | £ 450,000 | BUY | Unknown | 0.07 KM |
| Upper Elmers End Road, Beckenham, BR3 | £ 625,000 | BUY | 6 / 10 | 0.09 KM |
| Upper Elmers End Road, Beckenham, BR3 | £ 325,000 | BUY | 6 / 10 | 0.12 KM |
| Standcumbe Court, 166 Upper Elmers End Road, Beckenham | £ 350,000 | BUY | 6 / 10 | 0.12 KM |
Nearby Properties
| Address | Price | Distance |
|---|---|---|
| 59 Lloyds Way | £ 412,500 | 0.02 KM |
| 41 Lloyds Way | £ 250,000 | 0.02 KM |
| 17 Lloyds Way | £ 435,000 | 0.02 KM |
| 19 Lloyds Way | £ 555,000 | 0.02 KM |
| 83 Lloyds Way | £ 300,000 | 0.02 KM |