Milburn Road, Ashington, Northumberland, NE63 0NA
By Pattinson Estate Agents
£ 130,000
Reviews
3 out of 5 stars
Pattinson Estate Agents says ..
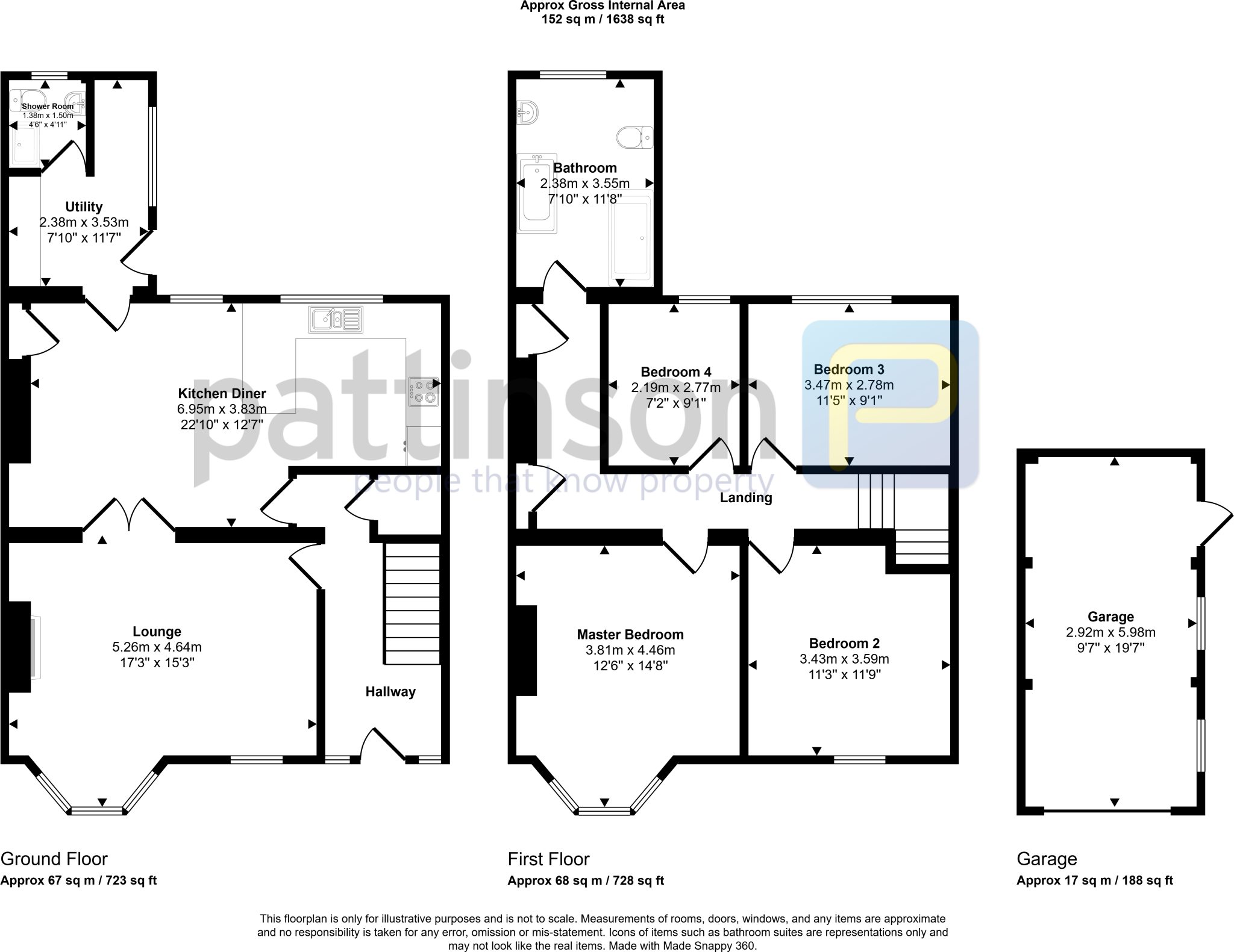
***LARGE TERRACED HOUSE - FOUR BEDROOMS - INTEGRATED KITCHEN/DINER - GROUND FLOOR SHOWER ROOM/W.C - FOUR PIECE FAMILY BATHROOM - UTILITY ROOM - VERY WELL PRESENTED - GARAGE - FRONT GARDEN - REAR YARD - NO UPPER CHAIN - VIEW NOW*** Pattinson Estate Agents welcome to the sales market this large ...
Property Oracle says ..
The property is a 4-bedroom terraced house located in Ashington, Northumberland. The asking price is £130,000. The property appears to be in good condition, having undergone some modernisation, including a new kitchen and bathroom. The images show a clean and well-maintained interior. The exterior also presents well. There is a small yard/patio area to the rear of the property, and a detached garage. The location is in a residential area of Ashington. Several primary schools are within a reasonable distance, and train stations are accessible, although they require a short journey. The area’s average house price is significantly higher (£549,545) than the listed price of this property, suggesting it could be good value. However, the average sqft price in the area is £426, and this property is 1636.11 sqft, which would suggest a price of around £696,000. Therefore, the property is significantly underpriced, relative to the average price per sqft in the area. However, the nearby comparable properties suggest a much lower price range, and the lack of plot size data makes it difficult to accurately assess the value.
Therefore, we give this property 6 / 10. *Disclaimer: This is our option and does constitute a recommendation or financial advice. Do your own research. *
- Price
- 8
- Condition
- 9
- Location
- 6
- Land
- 3
- Bedrooms
- 4
- Bathrooms
- 1
- Sqft (est)
- 1,636.11
The heatmap indicates the level of crime in the area. The color of the heatmap indicates the crime severity and recency.
Metrics Year-on-Year
- Average area value
- 625,000.00 £Increased by 9.15 %
- Est sale value
- 1,083,104.82 £Increased by 24.67 %
- Average area rental value
- 1,525.00 £/moIncreased by 1.26 %
- Est letting value
- 1,636.11 £/moUnchanged by 0.00 %
- Est rental Yield
- 2.93 %Decreased by 7.28 %
- Crime Rate
- 14.00 %Unchanged by 0.00 %
Agent Activity
Pattinson Estate Agents created the listing.
Nearby Schools
| Name | Type | Ofsted | Distance |
|---|---|---|---|
| Ncea James Knott Cofe Primary School | Academy Converter | 0.40 KM | |
| Central Primary School | Foundation School | Requires improvement | 0.72 KM |
| Ashington/Morpeth Children'S Centre | Children's Centre | 1.11 KM | |
| Ncea Thomas Bewick C Of E Primary School | Academy Converter | 1.42 KM | |
| Rosewood Independent School | Other Independent School | 1.43 KM |
Images
Nearby Streets
| Name | Average Price | Average Sqft | Distance |
|---|---|---|---|
| Fifth Avenue | £ 75,000 | 0 | 0.00 KM |
| Wellback Terrace | £ 134,950 | 0 | 0.00 KM |
| College Road | £ 67,908 | 0 | 0.00 KM |
| Heron Close | £ 254,000 | 0 | 0.00 KM |
| Cheltenham Court | £ 170,000 | 0 | 0.00 KM |
Nearby Transport
| Name | NLC | TLC | Distance |
|---|---|---|---|
| Pegswood | 7685 | PEG | 8.93 KM |
| Widdrington | 7695 | WDD | 9.45 KM |
Nearby Listings
| Address | Price | Type | Score | Distance |
|---|---|---|---|---|
| Milburn Road, Ashington, Northumberland, NE63 0NA | £ 130,000 | BUY | 6 / 10 | 0.00 KM |
| Rowlington Terrace, Ashington | £ 129,995 | BUY | 7 / 10 | 0.08 KM |
| Rowlington Terrace, Ashington | £ 80,000 | BUY | 5 / 10 | 0.09 KM |
| Milburn Road, Ashington | £ 210,000 | BUY | Unknown | 0.14 KM |
| Rowlington Terrace, Ashington | £ 100,000 | BUY | 6 / 10 | 0.14 KM |
Nearby Properties
| Address | Price | Distance |
|---|---|---|
| 26 Rowlington Terrace | £ 60,000 | 0.08 KM |
| 21 Rowlington Terrace | £ 52,000 | 0.08 KM |
| 30 Rowlington Terrace | £ 116,000 | 0.08 KM |
| 24 Rowlington Terrace | £ 79,950 | 0.08 KM |
| 27 Rowlington Terrace | £ 89,070 | 0.08 KM |