Arnolds Lane, Maxstoke, B46
HO

Arnolds Lane, Maxstoke, B46

By Howkins & Harrison LLP

£ 625,000

Reviews

3 out of 5 stars

Howkins & Harrison LLP says ..

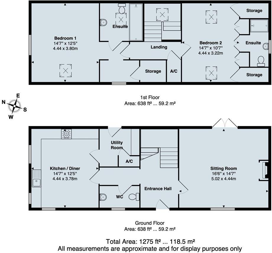
A character detached two storey barn conversion occupying this idyllic position, situated within a premier residential location backing onto open fields. Having well proportioned accommodation totalling 1275sqft in brief comprising:- hallway, cloakroom WC, spacious dual aspect spacious sitting r...

Property Oracle says ..

This is a detached property located on Arnolds Lane, Maxstoke. It features 2 bedrooms and 2 bathrooms, with a square footage of 766.44. The property is listed for £625,000 by Howkins & Harrison LLP. The property is located in a rural area, which may be appealing to some buyers. The property appears to be in generally good condition, with a well-maintained exterior and interior. The property has a large plot size and a well-maintained garden. The surrounding area is also very green and rural, providing a sense of privacy and tranquility. The property is listed at £625,000, which is below the average price for the area. However, the property is also smaller than the average property in the area.

Therefore, we give this property 7 / 10. *Disclaimer: This is our option and does constitute a recommendation or financial advice. Do your own research. *

Price
7
Condition
7
Location
6
Land
8
Bedrooms
2
Bathrooms
2
Sqft (est)
766.44

The heatmap indicates the level of crime in the area. The color of the heatmap indicates the crime severity and recency.

Metrics Year-on-Year

Average area value
683,165.00 £
Decreased by 33.92 %
from 1,033,888.00 £
Est sale value
288,947.88 £
Increased by 12.20 %
from 257,523.84 £
Average area rental value
1,373.00 £/mo
Decreased by 34.56 %
from 2,098.00 £/mo
Est letting value
0.00 £/mo
from 0.00 £/mo
Est rental Yield
2.41 %
Decreased by 1.23 %
from 2.44 %
Crime Rate
8.00 %
Unchanged by 0.00 %
from 8.00 %

Agent Activity

  • Howkins & Harrison LLP created the listing.

Nearby Schools

NameTypeOfstedDistance
The Secret GardenOther Independent School2.98 KM
Shustoke Cofe Primary SchoolVoluntary Controlled SchoolGood3.43 KM
WoodlandsAcademy Special Converter3.75 KM
St Edward'S Catholic Primary SchoolAcademy Converter3.99 KM
The Coleshill SchoolAcademy ConverterGood4.05 KM

Images

2 Maxstoke Barns, Maxstoke 2 Maxstoke Barns, Maxstoke 2 Maxstoke Barns, Maxstoke 2 Maxstoke Barns, Maxstoke 2 Maxstoke Barns, Maxstoke 2 Maxstoke Barns, Maxstoke 2 Maxstoke Barns, Maxstoke 2 Maxstoke Barns, Maxstoke 2 Maxstoke Barns, Maxstoke 2 Maxstoke Barns, Maxstoke 2 Maxstoke Barns, Maxstoke 2 Maxstoke Barns, Maxstoke 2 Maxstoke Barns, Maxstoke 2 Maxstoke Barns, Maxstoke 2 Maxstoke Barns, Maxstoke 2 Maxstoke Barns, Maxstoke 2 Maxstoke Barns, Maxstoke 2 Maxstoke Barns, Maxstoke 2 Maxstoke Barns, Maxstoke 2 Maxstoke Barns, Maxstoke 2 Maxstoke Barns, Maxstoke 2 Maxstoke Barns, Maxstoke

Nearby Streets

NameAverage PriceAverage SqftDistance
New End Road £ 000.00 KM

Nearby Transport

NameNLCTLCDistance
Coleshill Parkway9882CEH5.63 KM
Hampton-In-Arden1033HIA6.97 KM
Birmingham International1215BHI7.25 KM
Water Orton1121WTO9.02 KM
Marston Green1034MGN9.72 KM

Nearby Listings

AddressPriceTypeScoreDistance
Arnolds Lane, Maxstoke, B46 £ 625,000BUY7 / 100.00 KM
Duke End Farm, Arnolds Lane, Coleshill, Birmingham £ 1,250,000BUY7 / 100.81 KM
School Farm Barn, Maxstoke, Warwickshire £ 2,150,000BUY7 / 101.40 KM
New End Road, Maxstoke, North Warwickshire B46 2BP £ 2,200,000BUY7 / 101.43 KM
Fillongley Road, Maxstoke, Coleshill, Birmingham, B46 £ 350,000BUY7 / 101.68 KM

Nearby Properties

AddressPriceDistance
The Haven £ 595,0000.73 KM
Woodbine Cottage £ 499,9900.73 KM
Duke End Farm £ 284,0000.96 KM
Cut Tree £ 280,0000.96 KM
10 Fillongley Road £ 430,0001.68 KM