eXp UK says ..
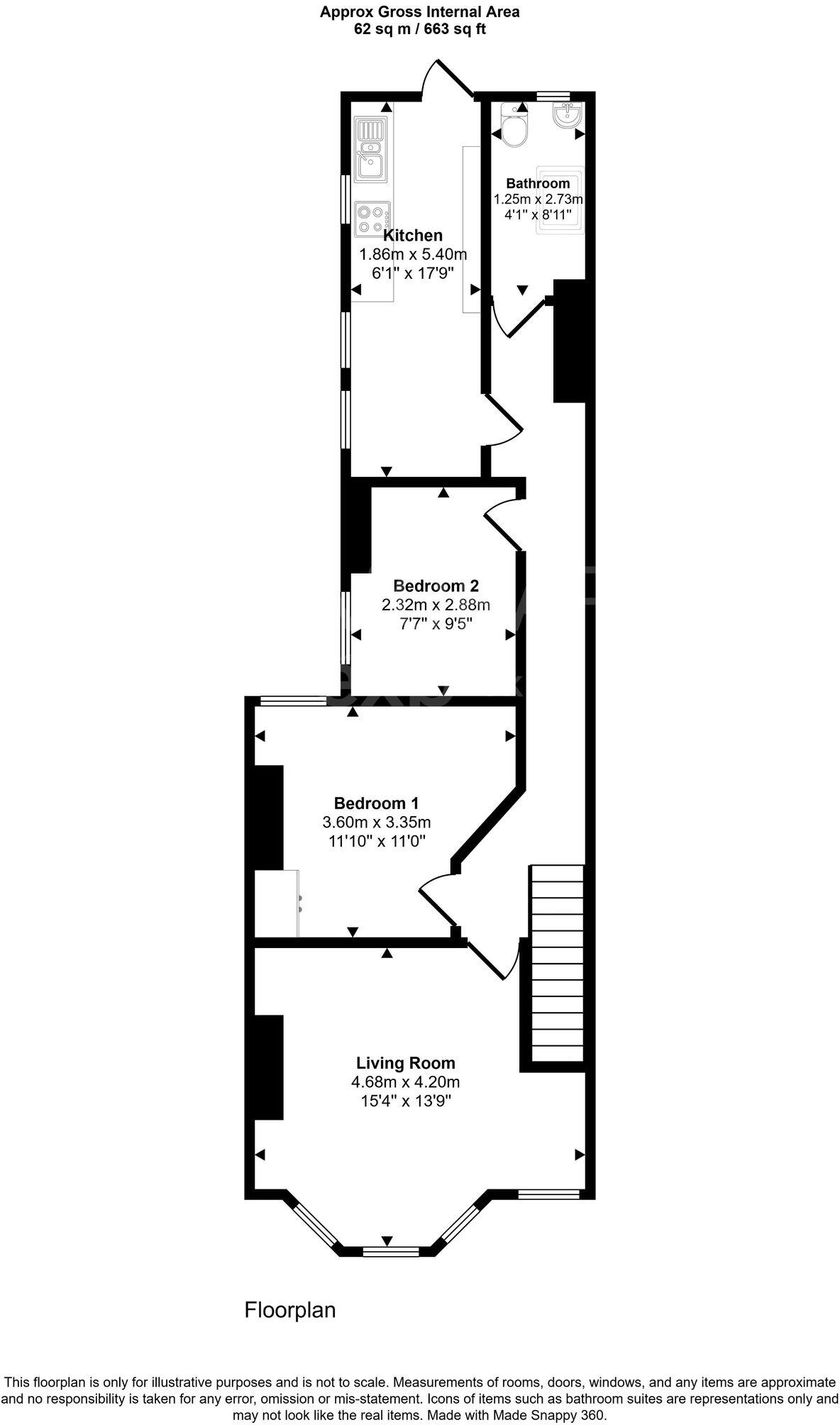
IM1236 Two bedroom first floor maisonette with garden in Harrow. Freehold
Property Oracle says ..
This is a two-bedroom maisonette located on Pinner Road in Harrow. The property benefits from a garden and is located within a reasonable distance of good schools and transportation links. While the property is in reasonable condition, some aspects could benefit from modernisation. The asking price of £350,000 seems fair given the location and features.
Therefore, we give this property 7 / 10. *Disclaimer: This is our option and does constitute a recommendation or financial advice. Do your own research. *
- Price
- 8
- Condition
- 6
- Location
- 7
- Land
- 7
- Bedrooms
- 2
- Bathrooms
- 1
The heatmap indicates the level of crime in the area. The color of the heatmap indicates the crime severity and recency.
Metrics Year-on-Year
- Average area value
- 439,857.00 £Decreased by 2.67 %
- Average area rental value
- 2,319.00 £/moIncreased by 18.98 %
- Est rental Yield
- 6.33 %Increased by 22.20 %
- Crime Rate
- 5.00 %Unchanged by 0.00 %
from 451,914.00 £
from 1,949.00 £/mo
from 5.18 %
from 5.00 %
Agent Activity
eXp UK created the listing.
Nearby Schools
| Name | Type | Ofsted | Distance |
|---|---|---|---|
| Vaughan Primary School | Community School | Outstanding | 0.60 KM |
| Whitmore High School | Community School | Outstanding | 0.98 KM |
| Norbury School | Community School | Good | 1.07 KM |
| St Anselm'S Catholic Primary School | Voluntary Aided School | Outstanding | 1.12 KM |
| Grange | Children's Centre Linked Site | 1.21 KM |
Images
Nearby Streets
| Name | Average Price | Average Sqft | Distance |
|---|---|---|---|
| Grafton Road | £ 360,000 | 0 | 0.00 KM |
| Marshall Close | £ 495,000 | 0 | 0.00 KM |
| Pool Road | £ 320,000 | 0 | 0.00 KM |
| Bessborough Road | £ 0 | 0 | 0.00 KM |
| Copperfields | £ 0 | 0 | 0.00 KM |
Nearby Transport
| Name | NLC | TLC | Distance |
|---|---|---|---|
| Harrow-On-The-Hill | 598 | HOH | 1.38 KM |
| Harrow And Wealdstone | 1397 | HRW | 2.06 KM |
| Headstone Lane | 1434 | HDL | 2.53 KM |
| Northolt Park | 1478 | NLT | 2.85 KM |
| Sudbury Hill Harrow | 1484 | SDH | 2.95 KM |
Nearby Listings
| Address | Price | Type | Score | Distance |
|---|---|---|---|---|
| Pinner Road, Harrow | £ 350,000 | BUY | 6 / 10 | 0.00 KM |
| Pinner Road, Harrow, HA1 4EU | £ 350,000 | BUY | 7 / 10 | 0.00 KM |
| Dorset Road, Harrow | £ 725,000 | BUY | 5 / 10 | 0.13 KM |
| Eastman Road, Harrow, HA1 | £ 474,000 | BUY | 6 / 10 | 0.14 KM |
| Oxford Road, Harrow, Middlesex | £ 625,000 | BUY | 5 / 10 | 0.18 KM |
Nearby Properties
| Address | Price | Distance |
|---|---|---|
| 129a Pinner Road | £ 123,950 | 0.01 KM |
| 133a Pinner Road | £ 308,000 | 0.01 KM |
| 151 Pinner Road | £ 205,000 | 0.01 KM |
| 125 Pinner Road | £ 190,000 | 0.01 KM |
| 121b Pinner Road | £ 97,000 | 0.01 KM |