McCartneys LLP says ..
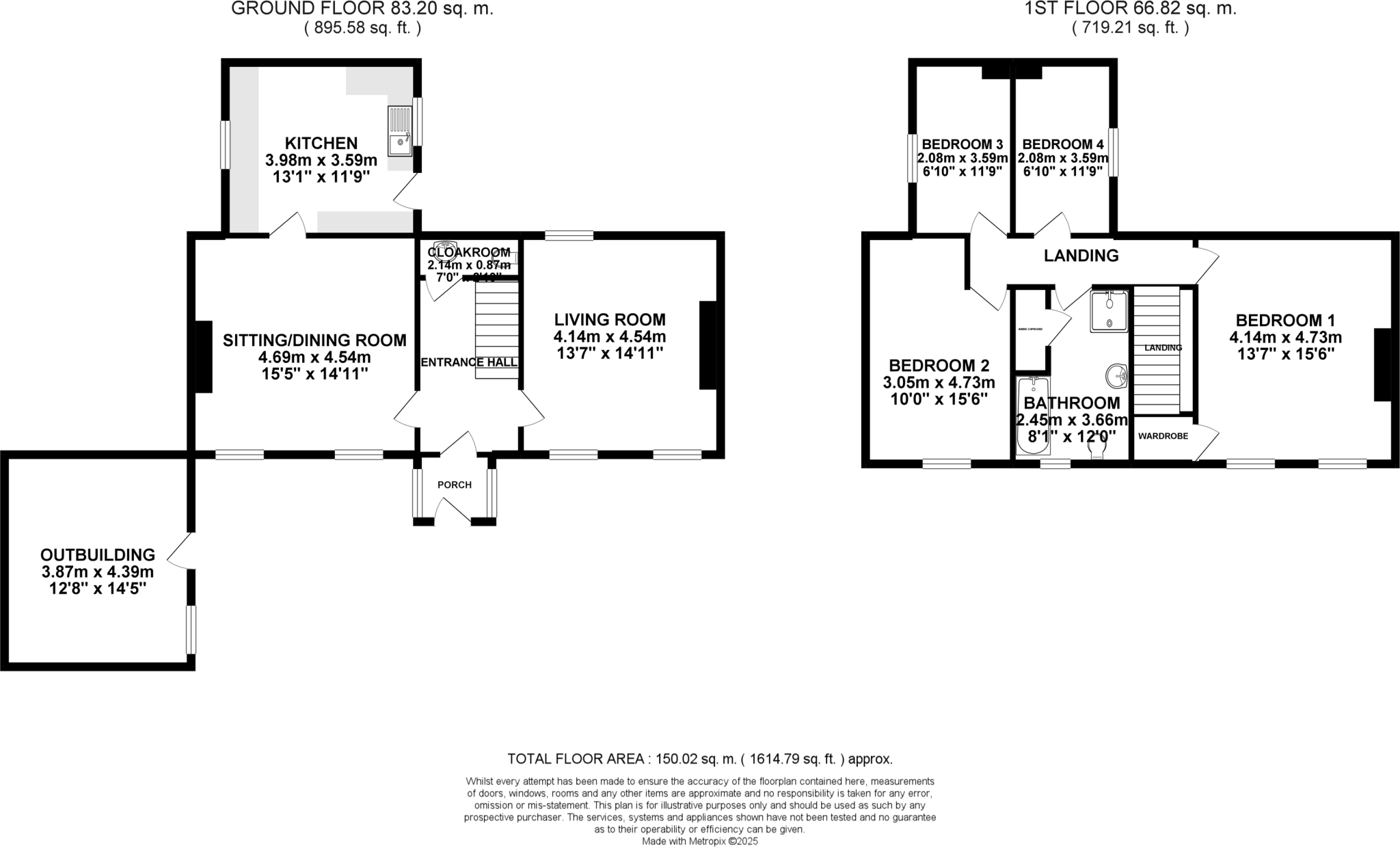
Located in the hamlet of Hodley, just outside the popular village of Kerry is Oaklea, a semi detached home ready for someone to put their own stamp on. The property has accommodation comprising living room, sitting room, kitchen, cloakroom, four bedrooms and a family bathroom. Externally there is...
Property Oracle says ..
Therefore, we give this property 7 / 10. *Disclaimer: This is our option and does constitute a recommendation or financial advice. Do your own research. *
- Price
- 8
- Condition
- 6
- Location
- 7
- Land
- 7
- Bedrooms
- 4
- Bathrooms
- 1
- Sqft (est)
- 1,413.30
The heatmap indicates the level of crime in the area. The color of the heatmap indicates the crime severity and recency.
Metrics Year-on-Year
- Average area value
- 311,704.00 £Increased by 34.17 %
- Est sale value
- 517,267.80 £Increased by 10.57 %
- Average area rental value
- 1,067.00 £/moDecreased by 19.35 %
- Est letting value
- 1,413.30 £/moUnchanged by 0.00 %
- Est rental Yield
- 4.11 %Decreased by 39.82 %
- Crime Rate
- 0.00 %
from 232,321.00 £
from 467,802.30 £
from 1,323.00 £/mo
from 1,413.30 £/mo
from 6.83 %
from 0.00 %
Agent Activity
McCartneys LLP created the listing.
Nearby Schools
| Name | Type | Ofsted | Distance |
|---|---|---|---|
| Abermule Primary School | Welsh Establishment | 3.26 KM | |
| Brynllywarch Hall School | Welsh Establishment | 3.80 KM | |
| St. Michael'S C.I.W. School | Welsh Establishment | 4.11 KM | |
| Oneschool Global Uk Newtown Campus | Welsh Establishment | 6.75 KM | |
| Treowen C.P. School | Welsh Establishment | 9.12 KM |
Images
Nearby Streets
| Name | Average Price | Average Sqft | Distance |
|---|---|---|---|
| B4368 | £ 665,000 | 0 | 0.00 KM |
| Shopfach | £ 0 | 0 | 0.00 KM |
| Penygelly Common | £ 0 | 0 | 0.00 KM |
Nearby Transport
| Name | NLC | TLC | Distance |
|---|---|---|---|
| Newtown (Powys) | 4426 | NWT | 9.44 KM |
Nearby Listings
| Address | Price | Type | Score | Distance |
|---|---|---|---|---|
| Kerry, Newtown, Powys | £ 290,000 | BUY | 7 / 10 | 0.00 KM |
| Kerry, Newtown, Powys, SY16 | £ 230,000 | BUY | Unknown | 1.57 KM |
| Siop Fach, Kerry, Newtown | £ 350,000 | BUY | 7 / 10 | 1.57 KM |
| Llanmerewig, Abermule, Montgomery, Powys, SY15 | £ 225,000 | BUY | 6 / 10 | 1.70 KM |
| Llanmerwig, Abermule, Montgomery | £ 450,000 | BUY | 7 / 10 | 1.76 KM |
Nearby Properties
| Address | Price | Distance |
|---|---|---|
| 2 Belvedere Cottages | £ 167,000 | 1.76 KM |
| 2 Brook Cottage | £ 180,000 | 1.97 KM |