eXp UK says ..
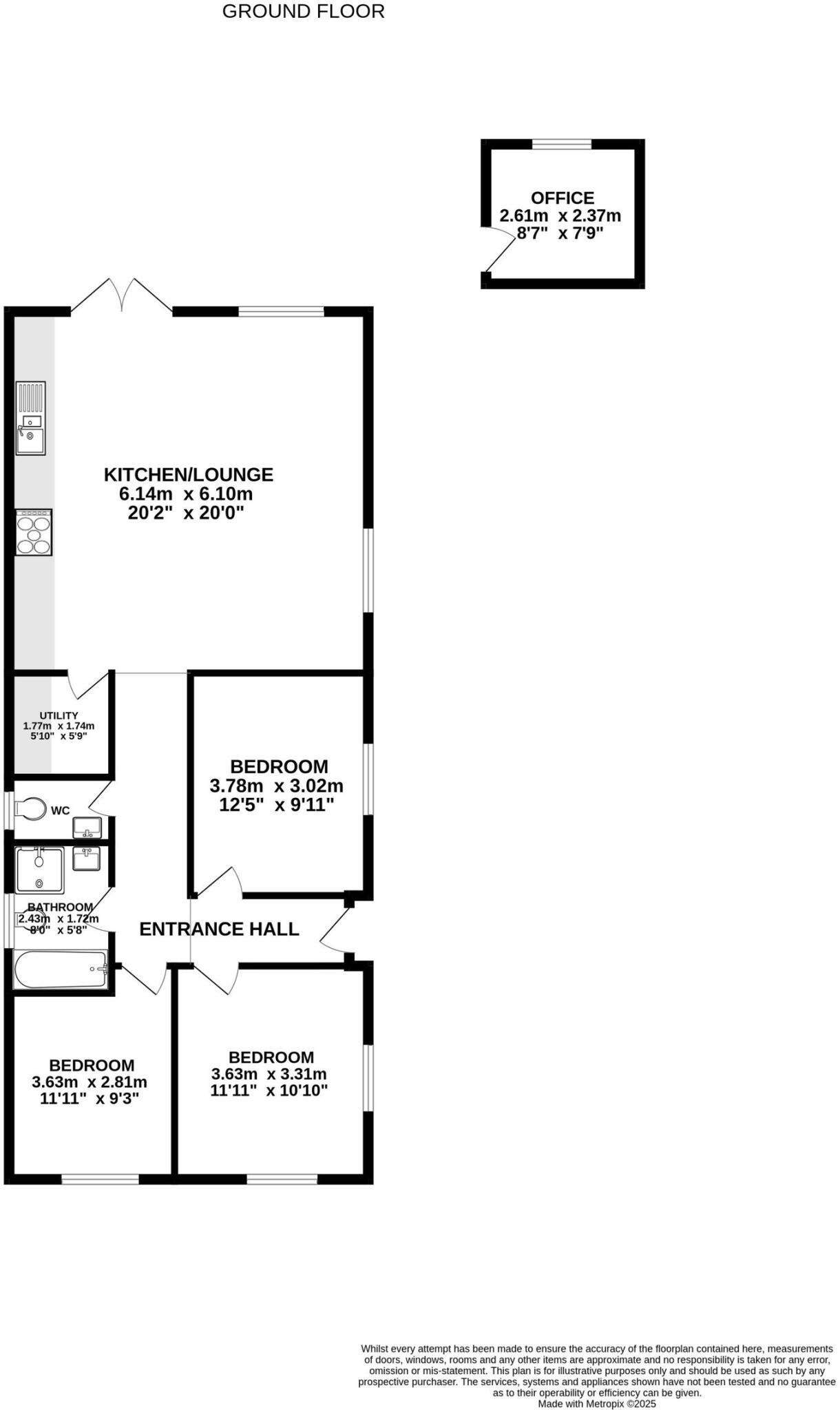
REF LL0468 is delighted to present this beautifully renovated and extended three-bedroom bungalow, located in the highly desirable area of Old Hale Way, Hitchin. This stunning property has been thoughtfully designed to offer a perfect blend of modern living and comfort, making it an ideal home...
Property Oracle says ..
The property is a 3-bedroom, 2-bathroom house located in Hitchin, Hertfordshire, listed at £725,000. The area has an average house price of £425,581 and an average price per square foot of £490. This property is significantly larger than the average at 802.56 sqft. The property appears to have undergone a recent renovation or extension, as evidenced by the modern kitchen and finishes shown in the photographs. The condition is excellent, with modern fixtures and fittings throughout. The property benefits from a garden, adding to its desirability. The proximity to Hitchin town centre and its railway station, along with nearby schools, are positive factors influencing location. However, the plot size is not specified, which may be a factor in the overall assessment. The list price is above the average for the area; however, given the apparent high-quality renovation and the larger than average size of the property, the price may be justified. More information about the plot size would allow for a more precise evaluation of the price-to-value ratio.
Therefore, we give this property 7 / 10. *Disclaimer: This is our option and does constitute a recommendation or financial advice. Do your own research. *
- Price
- 7
- Condition
- 9
- Location
- 8
- Land
- 7
- Bedrooms
- 3
- Bathrooms
- 2
- Sqft (est)
- 802.56
The heatmap indicates the level of crime in the area. The color of the heatmap indicates the crime severity and recency.
Metrics Year-on-Year
- Average area value
- 593,750.00 £Increased by 27.70 %
- Est sale value
- 514,440.96 £Increased by 37.85 %
- Average area rental value
- 1,334.00 £/moDecreased by 3.82 %
- Est letting value
- 802.56 £/moUnchanged by 0.00 %
- Est rental Yield
- 2.70 %Decreased by 24.58 %
- Crime Rate
- 3.00 %Unchanged by 0.00 %
Agent Activity
eXp UK created the listing.
Nearby Schools
| Name | Type | Ofsted | Distance |
|---|---|---|---|
| Our Lady Catholic Primary School | Academy Converter | Requires improvement | 0.00 KM |
| Strathmore Infant And Nursery School | Community School | Good | 0.34 KM |
| The Priory School | Foundation School | Good | 0.60 KM |
| Ickleford Primary School | Voluntary Controlled School | Good | 0.87 KM |
| Nh7 York Road Family Centre | Children's Centre | 0.93 KM |
Images
Nearby Streets
| Name | Average Price | Average Sqft | Distance |
|---|---|---|---|
| The Mead | £ 372,500 | 0 | 0.00 KM |
| Laurel Way | £ 0 | 0 | 0.00 KM |
| Manor Close | £ 700,000 | 0 | 0.00 KM |
| Turnpike Lane | £ 595,000 | 0 | 0.00 KM |
| Icknield Way | £ 0 | 0 | 0.00 KM |
Nearby Transport
| Name | NLC | TLC | Distance |
|---|---|---|---|
| Hitchin | 6086 | HIT | 2.00 KM |
| Letchworth Garden City | 6089 | LET | 5.65 KM |
| Arlesey | 6171 | ARL | 7.01 KM |
Nearby Listings
| Address | Price | Type | Score | Distance |
|---|---|---|---|---|
| Old Hale Way,Hitchin,SG5 1XT | £ 725,000 | BUY | 7 / 10 | 0.00 KM |
| Old Hale Way, Hitchin, SG5 | £ 250,000 | BUY | 7 / 10 | 0.00 KM |
| Old Hale Way, Hitchin, Hertfordshire, SG5 | £ 240,000 | BUY | 7 / 10 | 0.01 KM |
| Old Hale Way, Hitchin, SG5 | £ 260,000 | BUY | 6 / 10 | 0.10 KM |
| Old Hale Way, Hitchin, Hertfordshire, SG5 | £ 255,000 | BUY | 6 / 10 | 0.10 KM |
Nearby Properties
| Address | Price | Distance |
|---|---|---|
| 129d Old Hale Way | £ 245,000 | 0.01 KM |
| 152 Old Hale Way | £ 860,000 | 0.01 KM |
| 146 Old Hale Way | £ 368,500 | 0.01 KM |
| 129c Old Hale Way | £ 88,000 | 0.01 KM |
| 136 Old Hale Way | £ 450,000 | 0.01 KM |