Ben Rose says ..
**Mixed-use commercial unit being sold with tenants in situ** Ben Rose Estate Agents are pleased to present to market this fantastic investment opportunity in the heart of Leyland. This mixed-use commercial property comprises a ground-floor retail unit, currently operating as a hair salo...
Property Oracle says ..
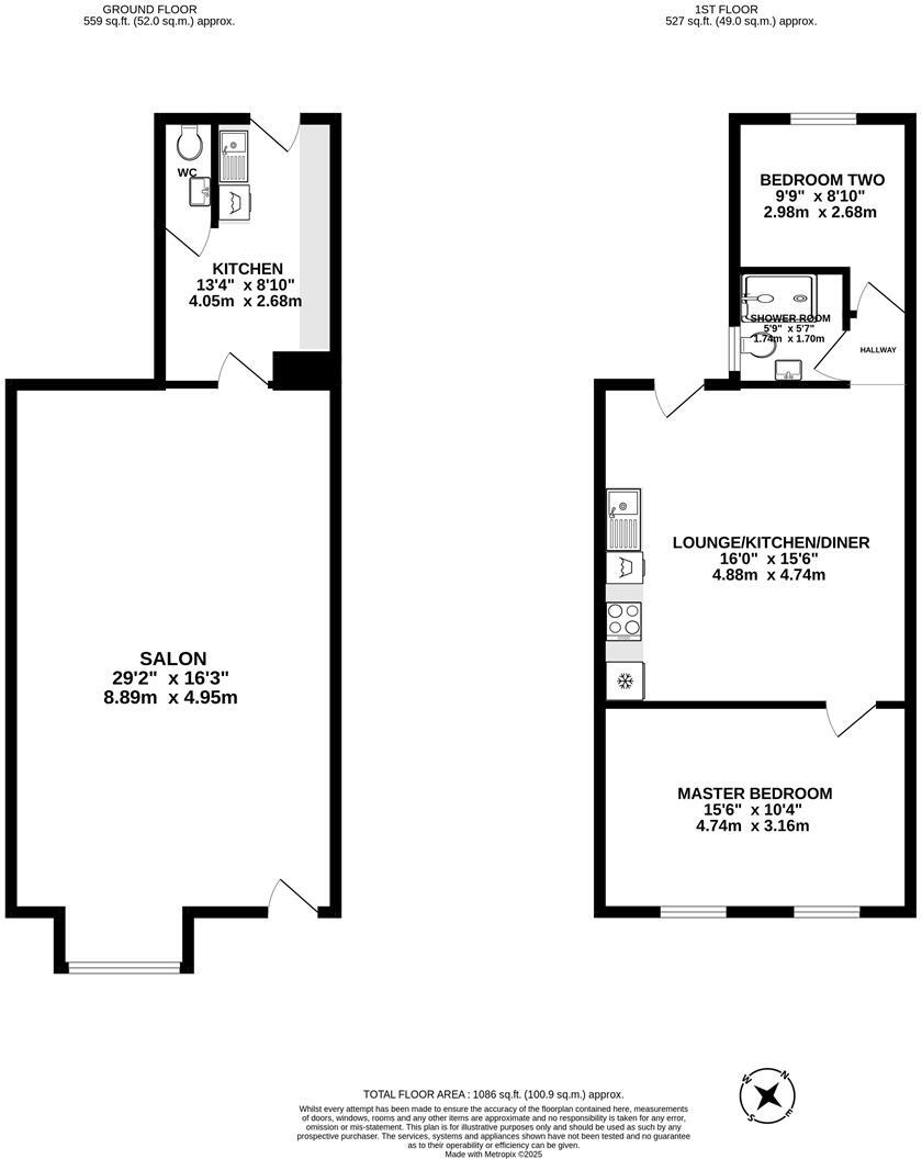
This property is a 2 bedroom end of terrace house located in Leyland, Lancashire. The property is currently being used as a hair salon and appears to have recently undergone some modernisation, although the images suggest some areas may need further attention. The location is convenient with nearby schools and transportation links. However, the lack of plot size is a significant drawback. The list price of £195,000 is significantly lower than the area average, but comparable properties are lacking in the data provided. More information is needed to fully assess the value for money.
Therefore, we give this property 5 / 10. *Disclaimer: This is our option and does constitute a recommendation or financial advice. Do your own research. *
- Price
- 6
- Condition
- 7
- Location
- 7
- Land
- 1
- Bedrooms
- 2
- Bathrooms
- 1
- Sqft (est)
- 1,086.00
The heatmap indicates the level of crime in the area. The color of the heatmap indicates the crime severity and recency.
Metrics Year-on-Year
- Average area value
- 472,750.00 £Decreased by 21.88 %
- Est sale value
- 835,134.00 £Increased by 27.74 %
- Average area rental value
- 1,418.00 £/moDecreased by 35.04 %
- Est letting value
- 2,172.00 £/moUnchanged by 0.00 %
- Est rental Yield
- 3.60 %Decreased by 16.86 %
- Crime Rate
- 25.00 %Unchanged by 0.00 %
Agent Activity
Ben Rose marked this listing as sold.
Ben Rose created the listing.
Nearby Schools
| Name | Type | Ofsted | Distance |
|---|---|---|---|
| Wellfield Academy | Community School | Requires improvement | 0.44 KM |
| Wellfield Children'S Centre | Children's Centre | 0.44 KM | |
| Leyland St Mary'S Roman Catholic Primary School | Voluntary Aided School | Good | 0.56 KM |
| Woodlea Junior School | Community School | Good | 0.76 KM |
| Leyland St Andrew'S Church Of England Infant School | Voluntary Controlled School | Good | 0.78 KM |
Images
Nearby Streets
| Name | Average Price | Average Sqft | Distance |
|---|---|---|---|
| Mosley Street | £ 0 | 0 | 0.00 KM |
| Regent Road | £ 0 | 0 | 0.00 KM |
| Carlton Road | £ 150,000 | 0 | 0.00 KM |
| Kings Crescent | £ 220,000 | 0 | 0.00 KM |
| Morris Close | £ 0 | 0 | 0.00 KM |
Nearby Transport
| Name | NLC | TLC | Distance |
|---|---|---|---|
| Leyland | 2710 | LEY | 1.22 KM |
| Lostock Hall | 2689 | LOH | 3.62 KM |
| Buckshaw Parkway | 7501 | BSV | 4.50 KM |
| Euxton Balshaw Lane | 2080 | EBA | 4.51 KM |
| Bamber Bridge | 2561 | BMB | 5.46 KM |
Nearby Listings
| Address | Price | Type | Score | Distance |
|---|---|---|---|---|
| Towngate, Leyland | £ 195,000 | BUY | 5 / 10 | 0.00 KM |
| Towngate, Leyland, Lancashire, PR25 | £ 125,000 | BUY | Unknown | 0.03 KM |
| Vevey Street, Leyland, Lancashire, PR25 | £ 145,000 | BUY | Unknown | 0.08 KM |
| Broad Street, Leyland, Lancashire, PR25 | £ 135,000 | BUY | 5 / 10 | 0.09 KM |
| Mosley Street, Leyland, PR25 2TH | £ 120,000 | BUY | 7 / 10 | 0.12 KM |
Nearby Properties
| Address | Price | Distance |
|---|---|---|
| 139 Towngate | £ 78,000 | 0.04 KM |
| 2 Forge Street | £ 128,000 | 0.07 KM |
| 21 Vevey Street | £ 124,000 | 0.08 KM |
| 17 Vevey Street | £ 70,000 | 0.08 KM |
| 7 Vevey Street | £ 100,000 | 0.08 KM |