Venditum says ..
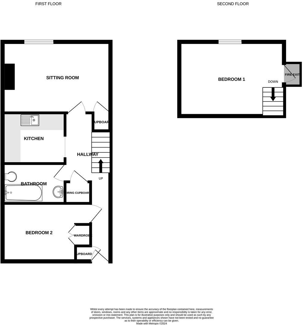
An attractive and characterful maisonette situated in a charming town centre mews setting. 7 Roman Quay is a generous two bedroom property which has recently been tastefully refurbished. The property is offered for sale in excellent condition throughout as well as vacant possession and can only b...
Property Oracle says ..
This two-bedroom maisonette in Fordingbridge, Hampshire, presents a compelling proposition for first-time buyers or investors. Located in the town centre, it benefits from convenient access to local amenities, with nearby schools rated ‘Good’ by Ofsted. The property itself appears recently renovated, boasting a modern kitchen and bathroom, and is presented in good condition. The interior showcases a tasteful and contemporary style. However, a significant drawback is the absence of a garden or any substantial outdoor space, a common limitation in town-centre properties. The absence of specific square footage information for both the property and plot size makes a full analysis of the price per square foot challenging. A comparison with other properties in Roman Quay reveals a price range that includes the list price of this property. This indicates a reasonable pricing strategy, considering location and recent renovations. Overall, it’s a well-presented, centrally located apartment, ideal for those who value convenience and modern amenities over a large outdoor space.
Therefore, we give this property 5 / 10. *Disclaimer: This is our option and does constitute a recommendation or financial advice. Do your own research. *
- Price
- 7
- Condition
- 8
- Location
- 7
- Land
- 1
- Bedrooms
- 2
- Bathrooms
- 1
- Sqft (est)
- 670.00
The heatmap indicates the level of crime in the area. The color of the heatmap indicates the crime severity and recency.
Metrics Year-on-Year
- Average area value
- 471,111.00 £Increased by 12.11 %
- Est sale value
- 361,130.00 £Increased by 34.75 %
- Average area rental value
- 1,283.00 £/moDecreased by 19.91 %
- Est letting value
- 670.00 £/moUnchanged by 0.00 %
- Est rental Yield
- 3.27 %Decreased by 28.45 %
- Crime Rate
- 81.00 %Unchanged by 0.00 %
Agent Activity
Venditum created the listing.
Nearby Schools
| Name | Type | Ofsted | Distance |
|---|---|---|---|
| The Bridges And Pathways Children'S Centre | Children's Centre | 1.03 KM | |
| Fordingbridge Junior School | Community School | Good | 1.08 KM |
| Fordingbridge Infant School | Community School | Good | 1.08 KM |
| The Burgate School And Sixth Form | Academy Converter | Good | 1.13 KM |
| Forres Sandle Manor School | Other Independent School | 2.06 KM |
Images
Nearby Streets
| Name | Average Price | Average Sqft | Distance |
|---|---|---|---|
| Kings Yard | £ 0 | 0 | 0.00 KM |
| Parsonage Close | £ 0 | 0 | 0.00 KM |
| Brook Terrace | £ 0 | 0 | 0.00 KM |
| Mill Court | £ 0 | 0 | 0.00 KM |
| Burnham Road | £ 345,000 | 0 | 0.00 KM |
Nearby Listings
| Address | Price | Type | Score | Distance |
|---|---|---|---|---|
| Roman Quay, Fordingbridge | £ 169,995 | BUY | 5 / 10 | 0.00 KM |
| The Hundred, Fordingbridge, SP6 | £ 100,000 | BUY | 6 / 10 | 0.03 KM |
| Roundhill, Fordingbridge, SP6 | £ 235,000 | BUY | 7 / 10 | 0.07 KM |
| Riverside Place, Fordingbridge | £ 160,000 | BUY | 5 / 10 | 0.08 KM |
| Riverside Place, Fordingbridge | £ 160,000 | BUY | Unknown | 0.09 KM |
Nearby Properties
| Address | Price | Distance |
|---|---|---|
| 7 Roman Quay | £ 105,000 | 0.01 KM |
| 11 Roman Quay | £ 139,000 | 0.01 KM |
| 8 Roman Quay | £ 100,000 | 0.01 KM |
| 5 Roman Quay | £ 125,000 | 0.01 KM |
| 2 The Hundred | £ 111,800 | 0.03 KM |