The Retreat, Maldon Road, Witham, Essex, CM8
By Fenn Wright
£ 360,000
Reviews
3 out of 5 stars
Fenn Wright says ..
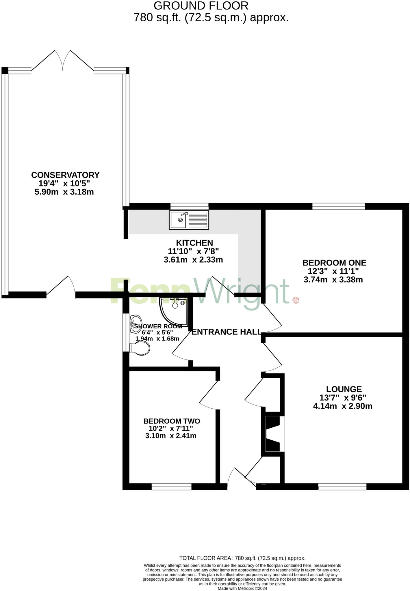
This two bedroom semi-detached bungalow is situated within a short walk of Witham's town centre, the property benefits from conservatory, ample off road parking and the added benefit offered with no onward chain.
Property Oracle says ..
This two-bedroom semi-detached bungalow is located in Witham, Essex, and is within walking distance of the town centre. The property includes a conservatory and ample off-road parking. While the listing mentions no onward chain, a key factor for buyers, the provided images show a property that appears well-maintained, though somewhat dated in style. The garden is visible in the photos and seems adequately sized for a bungalow of this type. The list price of £360,000 is slightly higher than the average price of £316,343 for the area, but considering the apparent good condition and convenient location, it may be considered reasonable for the right buyer. More information on the square footage would allow for a more precise price per square foot comparison and a definitive conclusion on value.
Therefore, we give this property 7 / 10. *Disclaimer: This is our option and does constitute a recommendation or financial advice. Do your own research. *
- Price
- 7
- Condition
- 7
- Location
- 8
- Land
- 6
- Bedrooms
- 2
- Bathrooms
- 1
- Sqft (est)
- 780.38
The heatmap indicates the level of crime in the area. The color of the heatmap indicates the crime severity and recency.
Metrics Year-on-Year
- Average area value
- 395,855.00 £Increased by 20.96 %
- Est sale value
- 442,475.46 £Increased by 44.64 %
- Average area rental value
- 1,224.00 £/moIncreased by 2.60 %
- Est letting value
- 780.38 £/moUnchanged by 0.00 %
- Est rental Yield
- 3.71 %Decreased by 15.10 %
- Crime Rate
- 19.00 %Unchanged by 0.00 %
Agent Activity
Fenn Wright created the listing.
Nearby Schools
| Name | Type | Ofsted | Distance |
|---|---|---|---|
| Maltings Academy | Academy Sponsor Led | Outstanding | 1.02 KM |
| Howbridge Infant School | Foundation School | Good | 1.07 KM |
| Howbridge Church Of England Junior School | Academy Sponsor Led | Requires improvement | 1.07 KM |
| Holy Family Catholic Primary School | Academy Converter | 1.29 KM | |
| Templars Academy | Academy Sponsor Led | Good | 1.80 KM |
Images
Nearby Streets
| Name | Average Price | Average Sqft | Distance |
|---|---|---|---|
| Leveret Lea | £ 0 | 0 | 0.00 KM |
| Cricketers Gardens | £ 416,498 | 0 | 0.00 KM |
| Field View | £ 0 | 0 | 0.00 KM |
| Otter Close | £ 475,000 | 0 | 0.00 KM |
| Paddocks Cut Through | £ 532,500 | 0 | 0.00 KM |
Nearby Transport
| Name | NLC | TLC | Distance |
|---|---|---|---|
| Witham | 6844 | WTM | 0.86 KM |
| Hatfield Peverel | 6845 | HAP | 5.90 KM |
| White Notley | 6846 | WNY | 6.78 KM |
| Kelvedon | 6838 | KEL | 8.14 KM |
| Cressing (Essex) | 6837 | CES | 9.25 KM |
Nearby Listings
| Address | Price | Type | Score | Distance |
|---|---|---|---|---|
| The Retreat, Maldon Road, Witham, Essex, CM8 | £ 360,000 | BUY | 7 / 10 | 0.00 KM |
| The Retreat, Maldon Road, Witham, Essex, CM8 | £ 425,000 | BUY | 6 / 10 | 0.04 KM |
| Maldon Rd, Witham CM8 | £ 340,000 | BUY | 6 / 10 | 0.06 KM |
| Maldon Rd, Witham CM8 | £ 340,000 | BUY | 7 / 10 | 0.06 KM |
| Maldon Road, Witham, Essex, CM8 | £ 750,000 | BUY | 6 / 10 | 0.07 KM |
Nearby Properties
| Address | Price | Distance |
|---|---|---|
| 27a Maldon Road | £ 85,000 | 0.06 KM |
| 33 Maldon Road | £ 325,000 | 0.09 KM |
| 50 Maldon Road | £ 315,000 | 0.09 KM |
| 36 Maldon Road | £ 204,000 | 0.09 KM |
| Oomingmak | £ 176,000 | 0.09 KM |