Huxley Street, Northwich
By Edward Mellor Ltd
£ 142,500
Reviews
2 out of 5 stars
Edward Mellor Ltd says ..
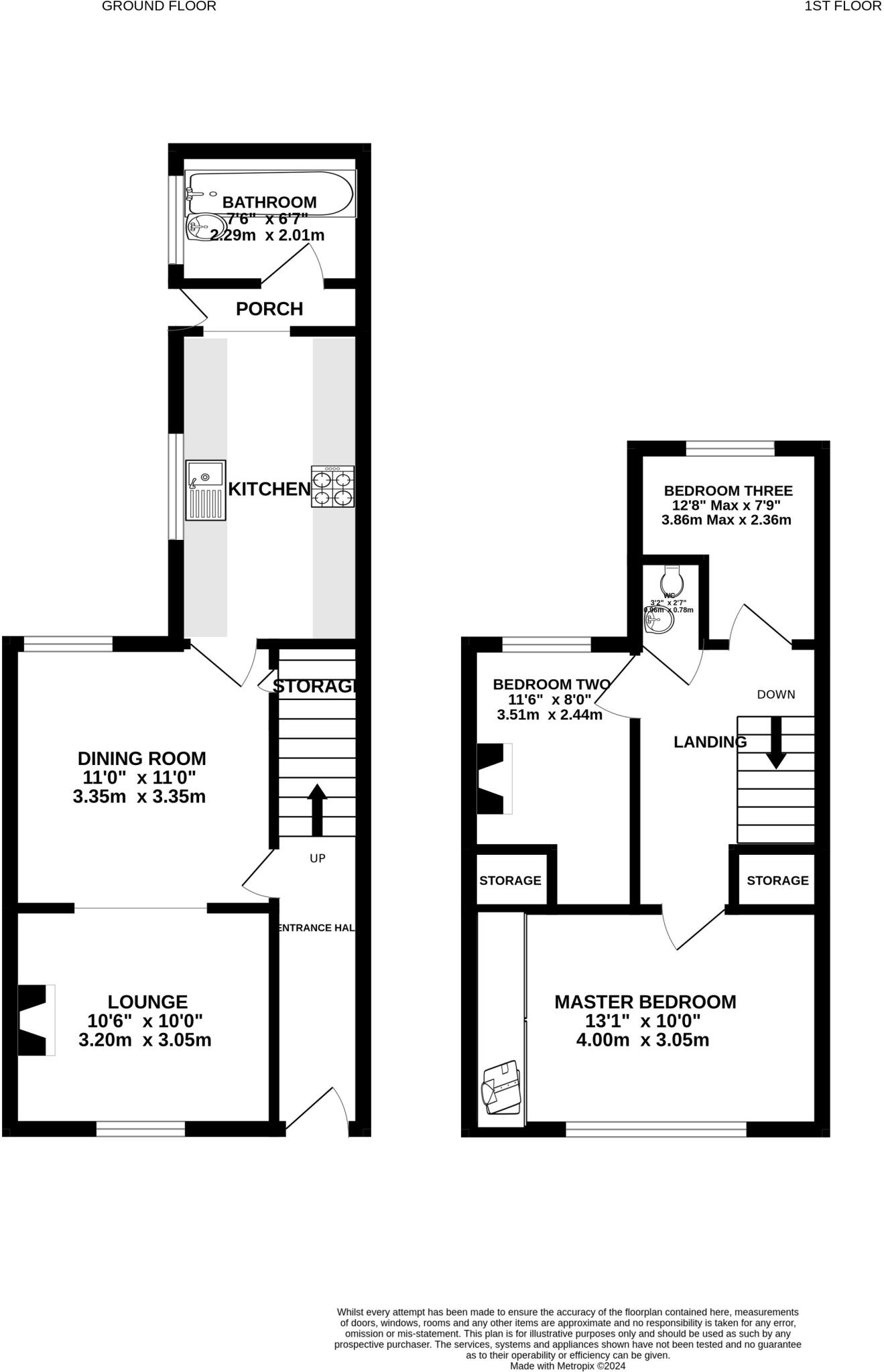
A CHAIN FREE PURCHASE - With NEW CARPETS to be fitted in early December, this is a spacious and modernised terraced property with gas central heating having a combi boiler together with PVCu double glazed windows. The accommodation which has been RECENTLY RE...
Property Oracle says ..
This three-bedroom terraced house on Huxley Street in Northwich, Cheshire, presents a mixed bag for potential buyers. Its location is a key strength, being close to well-regarded schools and train stations offering good transport links. The proximity to Northwich town centre provides easy access to shops and other amenities, making it attractive to families and commuters.
However, the property’s condition appears dated, with the kitchen and bathroom needing significant modernisation. While the house is habitable, potential buyers should factor in the cost of renovation to update the property to modern standards. The absence of a garden is a notable drawback, common for terraced housing in this style of development, particularly in a town centre, potentially restricting the appeal to families with young children or those who prioritise outdoor space.
In terms of pricing, the £142,500 asking price sits within the range of similar properties in the area, although those with gardens or more modern features may command higher prices. The lack of square footage information for comparable properties prevents a detailed square foot cost analysis. Potential buyers should carefully weigh the property’s advantages, such as its location and number of bedrooms, against its drawbacks, including the need for renovations and lack of outdoor space, before making an offer.
Therefore, we give this property 5 / 10. *Disclaimer: This is our option and does constitute a recommendation or financial advice. Do your own research. *
- Price
- 7
- Condition
- 5
- Location
- 7
- Land
- 1
- Bedrooms
- 3
- Bathrooms
- 1
- Sqft (est)
- 965.20
The heatmap indicates the level of crime in the area. The color of the heatmap indicates the crime severity and recency.
Metrics Year-on-Year
- Average area value
- 235,833.00 £Increased by 3.21 %
- Est sale value
- 256,743.20 £Increased by 16.67 %
- Average area rental value
- 1,225.00 £/moIncreased by 14.17 %
- Est letting value
- 965.20 £/moUnchanged by 0.00 %
- Est rental Yield
- 6.23 %Increased by 10.66 %
- Crime Rate
- 19.00 %Unchanged by 0.00 %
Agent Activity
Edward Mellor Ltd marked this listing as sold.
Edward Mellor Ltd created the listing.
Nearby Schools
| Name | Type | Ofsted | Distance |
|---|---|---|---|
| Charles Darwin Community Primary School | Community School | Good | 0.14 KM |
| Greenbank School | Community Special School | Outstanding | 0.71 KM |
| Winnington Park Community Primary And Nursery School | Community School | Good | 0.74 KM |
| St Wilfrid'S Catholic Primary School | Voluntary Aided School | Good | 0.82 KM |
| St Nicholas Catholic High School | Voluntary Aided School | Good | 0.82 KM |
Images
Nearby Streets
| Name | Average Price | Average Sqft | Distance |
|---|---|---|---|
| Dane Close | £ 235,000 | 0 | 0.00 KM |
| Burgess Court | £ 292,500 | 0 | 0.00 KM |
| Atholbrae Close | £ 0 | 0 | 0.00 KM |
| Trinity Place | £ 0 | 0 | 0.00 KM |
| Riversdale Bridge | £ 260,000 | 0 | 0.00 KM |
Nearby Transport
| Name | NLC | TLC | Distance |
|---|---|---|---|
| Greenbank | 2325 | GBK | 1.15 KM |
| Northwich | 2326 | NWI | 3.12 KM |
| Hartford (Cheshire) | 2230 | HTF | 3.53 KM |
| Lostock Gralam | 2307 | LTG | 6.69 KM |
| Winsford | 2269 | WSF | 7.78 KM |
Nearby Listings
| Address | Price | Type | Score | Distance |
|---|---|---|---|---|
| Huxley Street, Northwich | £ 150,000 | BUY | 7 / 10 | 0.01 KM |
| Flower Street, Castle , CW8 1BZ | £ 140,000 | BUY | 6 / 10 | 0.06 KM |
| Romanes Street, Northwich | £ 165,000 | BUY | 6 / 10 | 0.07 KM |
| Romanes Street, Northwich, Cheshire, CW8 | £ 180,000 | BUY | 6 / 10 | 0.07 KM |
| Huxley Street, Northwich, Cheshire | £ 150,000 | BUY | 6 / 10 | 0.07 KM |
Nearby Properties
| Address | Price | Distance |
|---|---|---|
| 44 Darwin Street | £ 54,950 | 0.07 KM |
| 36 Darwin Street | £ 56,000 | 0.07 KM |
| 20 Huxley Street | £ 109,950 | 0.10 KM |
| 32 Huxley Street | £ 100,000 | 0.10 KM |
| 40 Huxley Street | £ 29,500 | 0.10 KM |