Langar Road, Bingham
By HAMMOND Property Services
£ 840,000
Reviews
4 out of 5 stars
HAMMOND Property Services says ..
From a mere kerbside inspection it is impossible to fully appreciate the overall size of the property and the magnificent privacy and size of the plot on which it sits. For those who are looking for a southerly facing and also very private garden... then this is the one for you! A brand ...
Property Oracle says ..
Therefore, we give this property 8 / 10. *Disclaimer: This is our option and does constitute a recommendation or financial advice. Do your own research. *
- Price
- 7
- Condition
- 10
- Location
- 9
- Land
- 8
- Bedrooms
- 4
- Bathrooms
- 2
- Sqft (est)
- 2,108.00
The heatmap indicates the level of crime in the area. The color of the heatmap indicates the crime severity and recency.
Metrics Year-on-Year
- Average area value
- 320,000.00 £Decreased by 18.40 %
- Est sale value
- 815,796.00 £Increased by 41.24 %
- Average area rental value
- 1,400.00 £/moIncreased by 55.56 %
- Est letting value
- 2,108.00 £/mo
- Est rental Yield
- 5.25 %Increased by 90.91 %
- Crime Rate
- 4.00 %Unchanged by 0.00 %
from 392,175.00 £
from 577,592.00 £
from 900.00 £/mo
from 0.00 £/mo
from 2.75 %
from 4.00 %
Agent Activity
HAMMOND Property Services marked this listing as sold.
HAMMOND Property Services created the listing.
Nearby Schools
| Name | Type | Ofsted | Distance |
|---|---|---|---|
| Toot Hill School | Academy Converter | Outstanding | 0.53 KM |
| Robert Miles Infant School | Academy Converter | 0.60 KM | |
| Cotgrave Children'S Centre | Children's Centre | 0.68 KM | |
| Bingham Children'S Centre | Children's Centre | 0.72 KM | |
| Robert Miles Junior School | Academy Converter | Good | 0.97 KM |
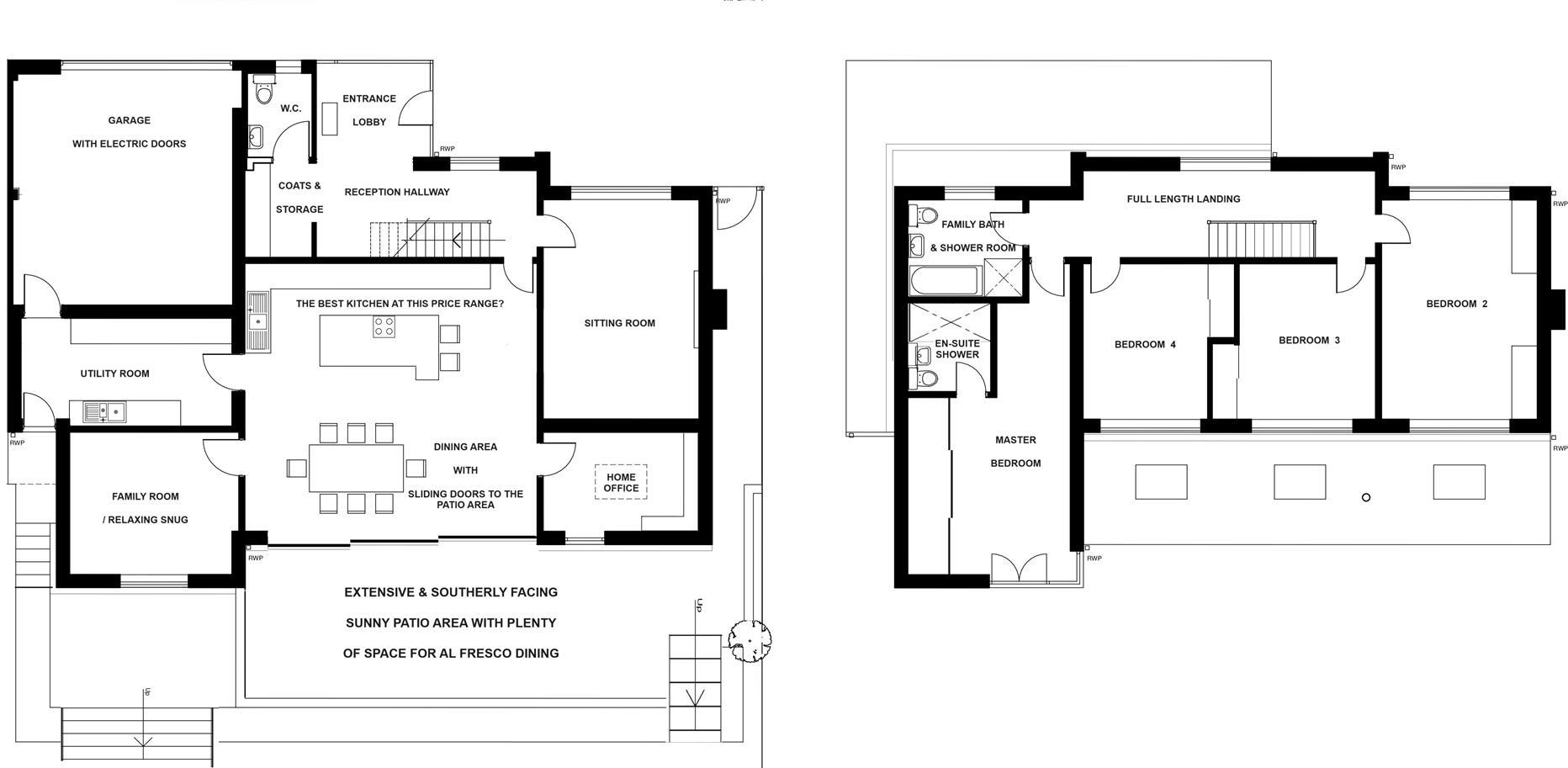
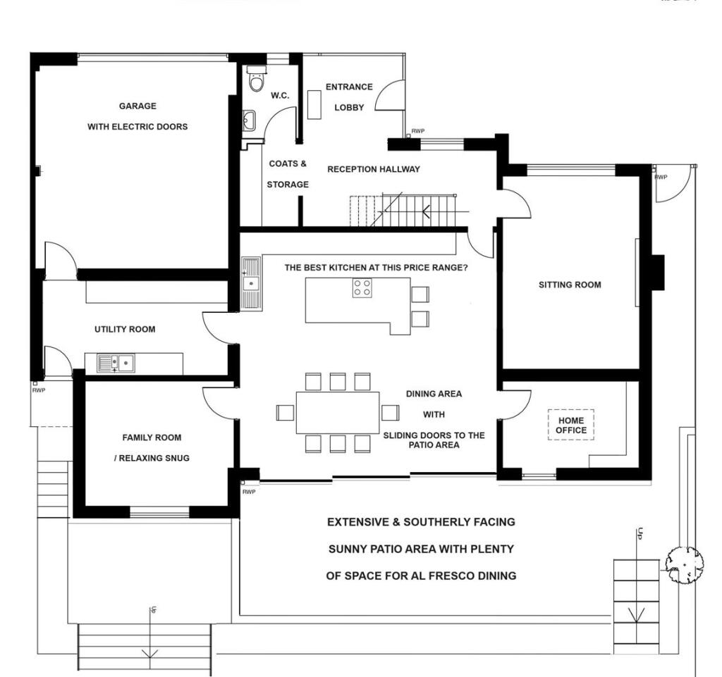
Images
Nearby Streets
| Name | Average Price | Average Sqft | Distance |
|---|---|---|---|
| Bingham Linear Park | £ 0 | 0 | 0.00 KM |
| Orchard Avenue | £ 0 | 0 | 0.00 KM |
| Eaton Place | £ 600,000 | 0 | 0.00 KM |
| Edinburgh Drive | £ 0 | 0 | 0.00 KM |
| Lamb Close | £ 0 | 0 | 0.00 KM |
Nearby Transport
| Name | NLC | TLC | Distance |
|---|---|---|---|
| Bingham | 6235 | BIN | 1.07 KM |
| Aslockton | 6233 | ALK | 6.72 KM |
| Lowdham | 6202 | LOW | 7.84 KM |
| Radcliffe (Nottinghamshire) | 6242 | RDF | 8.68 KM |
| Thurgarton | 6203 | THU | 9.04 KM |
Nearby Listings
| Address | Price | Type | Score | Distance |
|---|---|---|---|---|
| Langar Road, Bingham | £ 840,000 | BUY | 8 / 10 | 0.00 KM |
| Charlock Gardens, Bingham | £ 230,000 | BUY | 7 / 10 | 0.14 KM |
| Charlock Gardens, Bingham | £ 215,000 | BUY | 7 / 10 | 0.15 KM |
| Charlock Gardens, Bingham | £ 275,000 | BUY | 7 / 10 | 0.20 KM |
| Swale Grove, Bingham | £ 145,000 | BUY | 6 / 10 | 0.22 KM |
Nearby Properties
| Address | Price | Distance |
|---|---|---|
| 6 Langar Road | £ 335,500 | 0.06 KM |
| 9 Langar Road | £ 695,000 | 0.06 KM |
| 4 Langar Road | £ 360,000 | 0.06 KM |
| 11 Langar Road | £ 225,000 | 0.06 KM |
| 3 Langar Road | £ 327,000 | 0.06 KM |