Slang Lane, Cannock Wood
By Lovett&Co. Estate Agents
£ 375,000
Reviews
3 out of 5 stars
Lovett&Co. Estate Agents says ..
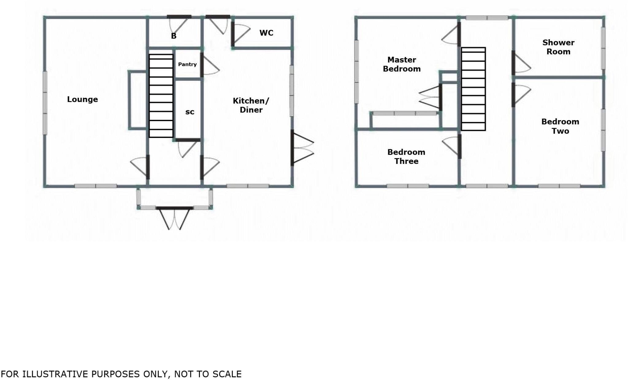
Lovett&Co. Estate Agents are pleased to offer for sale this three bedroom detached family home with stunning views stretching over the surrounding countryside. Situated in the sought after semi-rural village of Cannock Wood, the property briefly comprises: porch and entrance hallway, spacious...
Property Oracle says ..
Therefore, we give this property 7 / 10. *Disclaimer: This is our option and does constitute a recommendation or financial advice. Do your own research. *
- Price
- 7
- Condition
- 7
- Location
- 7
- Land
- 8
- Bedrooms
- 3
- Bathrooms
- 1
- Sqft (est)
- 1,197.00
The heatmap indicates the level of crime in the area. The color of the heatmap indicates the crime severity and recency.
Metrics Year-on-Year
- Average area value
- 180,000.00 £Decreased by 41.37 %
- Est sale value
- 623,637.00 £Increased by 99.62 %
- Average area rental value
- 850.00 £/moDecreased by 9.77 %
- Est letting value
- 2,394.00 £/mo
- Est rental Yield
- 5.67 %Increased by 54.08 %
- Crime Rate
- 2.00 %Unchanged by 0.00 %
from 306,998.00 £
from 312,417.00 £
from 942.00 £/mo
from 0.00 £/mo
from 3.68 %
from 2.00 %
Agent Activity
Lovett&Co. Estate Agents created the listing.
Nearby Schools
| Name | Type | Ofsted | Distance |
|---|---|---|---|
| Gentleshaw Primary Academy | Academy Sponsor Led | Good | 0.93 KM |
| Boney Hay Primary Academy | Academy Converter | Good | 1.84 KM |
| Holly Grove Primary School | Foundation School | Good | 2.08 KM |
| Chase Terrace Academy | Academy Converter | Good | 2.57 KM |
| Chase Terrace Primary School | Foundation School | Good | 2.60 KM |
Images
Nearby Streets
| Name | Average Price | Average Sqft | Distance |
|---|---|---|---|
| Ivy Lane | £ 0 | 0 | 0.00 KM |
| Sycamore Hill | £ 0 | 0 | 0.00 KM |
| Holly Hill Road | £ 455,000 | 0 | 0.00 KM |
| The Firs | £ 0 | 0 | 0.00 KM |
| Sandringham Close | £ 230,000 | 0 | 0.00 KM |
Nearby Transport
| Name | NLC | TLC | Distance |
|---|---|---|---|
| Rugeley Town | 1135 | RGT | 5.34 KM |
| Rugeley Trent Valley | 1084 | RGL | 7.05 KM |
| Hednesford | 1148 | HNF | 7.44 KM |
| Cannock | 1016 | CAO | 9.94 KM |
Nearby Listings
| Address | Price | Type | Score | Distance |
|---|---|---|---|---|
| Slang Lane, Cannock Wood | £ 375,000 | BUY | 7 / 10 | 0.00 KM |
| Slang Lane, Cannock Wood, WS15 | £ 425,000 | BUY | 7 / 10 | 0.00 KM |
| Cumberledge Hill, Cannock Wood , Rugeley, WS15 | £ 375,000 | BUY | 8 / 10 | 0.05 KM |
| Ivy Lane, Cannock Wood , Rugeley, WS15 | £ 850,000 | BUY | 8 / 10 | 0.07 KM |
| Cumberledge Hill, Cannock Wood, Rugeley | £ 340,000 | BUY | 6 / 10 | 0.10 KM |
Nearby Properties
| Address | Price | Distance |
|---|---|---|
| 3 Ivy Lane | £ 315,000 | 0.06 KM |
| Pine View | £ 325,000 | 0.06 KM |
| 15 Cumberledge Hill | £ 152,000 | 0.07 KM |
| 14 Cumberledge Hill | £ 305,000 | 0.07 KM |
| 25 Cumberledge Hill | £ 250,000 | 0.09 KM |