Conery Lane, Whatton
By Richard Watkinson & Partners
£ 350,000
Reviews
3 out of 5 stars
Richard Watkinson & Partners says ..
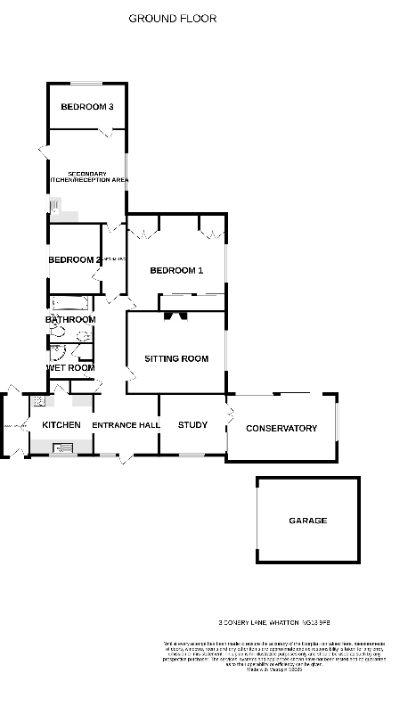
** DETACHED BUNGALOW ** GENEROUS 0.28 ACRE PLOT ** SOUTH TO WESTERLY ASPECT ** GENEROUS FRONTAGE ** GOOD LEVEL OF OFF ROAD PARKING ** ACCOMMODATION IN THE REGION OF 1,600 SQ.FT. ** CONSIDERABLE POTENTIAL ** REQUIRING COMPLETE MODERNISATION ** IDEAL PROJECT ** VIEWING HIGHLY RECOMMENDED **
Property Oracle says ..
This three-bedroom, two-bathroom property in Whatton, Nottinghamshire, presents a mixed bag. The location is a definite plus, offering access to several schools and a train station, albeit at varying distances. The substantial garden is a considerable asset, providing ample space for improvement and landscaping. However, the property’s condition requires attention. The exterior shows signs of wear and tear, and the garden appears overgrown and unkempt. The photographs reveal a need for both interior and exterior maintenance and potential renovation. The listed price of £350,000 seems reasonable in the context of the local market, given the property’s size and the land, but potential renovation costs should be factored into any purchasing decision. A thorough survey is highly recommended before committing to a purchase.
Therefore, we give this property 6 / 10. *Disclaimer: This is our option and does constitute a recommendation or financial advice. Do your own research. *
- Price
- 7
- Condition
- 4
- Location
- 7
- Land
- 6
- Bedrooms
- 3
- Bathrooms
- 2
- Sqft (est)
- 1,500.00
The heatmap indicates the level of crime in the area. The color of the heatmap indicates the crime severity and recency.
Metrics Year-on-Year
- Average area value
- 416,000.00 £Decreased by 16.21 %
- Est sale value
- 1,074,000.00 £Increased by 244.23 %
- Average area rental value
- 1,900.00 £/moIncreased by 52.00 %
- Est letting value
- 4,500.00 £/mo
- Est rental Yield
- 5.48 %Increased by 81.46 %
- Crime Rate
- 16.00 %Unchanged by 0.00 %
Agent Activity
Richard Watkinson & Partners created the listing.
Nearby Schools
| Name | Type | Ofsted | Distance |
|---|---|---|---|
| Archbishop Cranmer Church Of England Academy | Academy Converter | 1.10 KM | |
| Carnarvon Primary School | Community School | Outstanding | 4.77 KM |
| Orston Primary School | Community School | Outstanding | 4.85 KM |
| Langar Cofe Primary School | Voluntary Controlled School | Outstanding | 5.61 KM |
| Robert Miles Junior School | Academy Converter | Good | 6.38 KM |
Images
Nearby Streets
| Name | Average Price | Average Sqft | Distance |
|---|---|---|---|
| Riverside | £ 0 | 0 | 0.00 KM |
| School Lane | £ 0 | 0 | 0.00 KM |
| Chapel Row | £ 224,950 | 0 | 0.00 KM |
Nearby Transport
| Name | NLC | TLC | Distance |
|---|---|---|---|
| Aslockton | 6233 | ALK | 0.85 KM |
| Elton And Orston | 6238 | ELO | 4.36 KM |
| Bingham | 6235 | BIN | 6.42 KM |
Nearby Listings
| Address | Price | Type | Score | Distance |
|---|---|---|---|---|
| Conery Lane, Whatton | £ 350,000 | BUY | 6 / 10 | 0.00 KM |
| 22 Conery Gardens, Whatton, Nottingham NG13 9FD | £ 225,000 | BUY | 6 / 10 | 0.05 KM |
| The Lawns, Whatton in the Vale, NG13 | £ 395,000 | BUY | Unknown | 0.17 KM |
| The Lawns, Whatton in the Vale, NG13 | £ 375,000 | BUY | 7 / 10 | 0.17 KM |
| Conery Gardens, Whatton, Nottingham, Nottinghamshire, NG13 | £ 500,000 | BUY | 8 / 10 | 0.17 KM |
Nearby Properties
| Address | Price | Distance |
|---|---|---|
| 7 Conery Lane | £ 310,000 | 0.00 KM |
| Conery Lea | £ 250,000 | 0.00 KM |
| Millsyde | £ 526,956 | 0.00 KM |
| The Forge | £ 450,000 | 0.00 KM |
| The Birches | £ 320,000 | 0.04 KM |