Lacy Court, Risbygate Street, Bury St. Edmunds
By Tennens Properties Ltd
£ 130,000
Reviews
3 out of 5 stars
Tennens Properties Ltd says ..
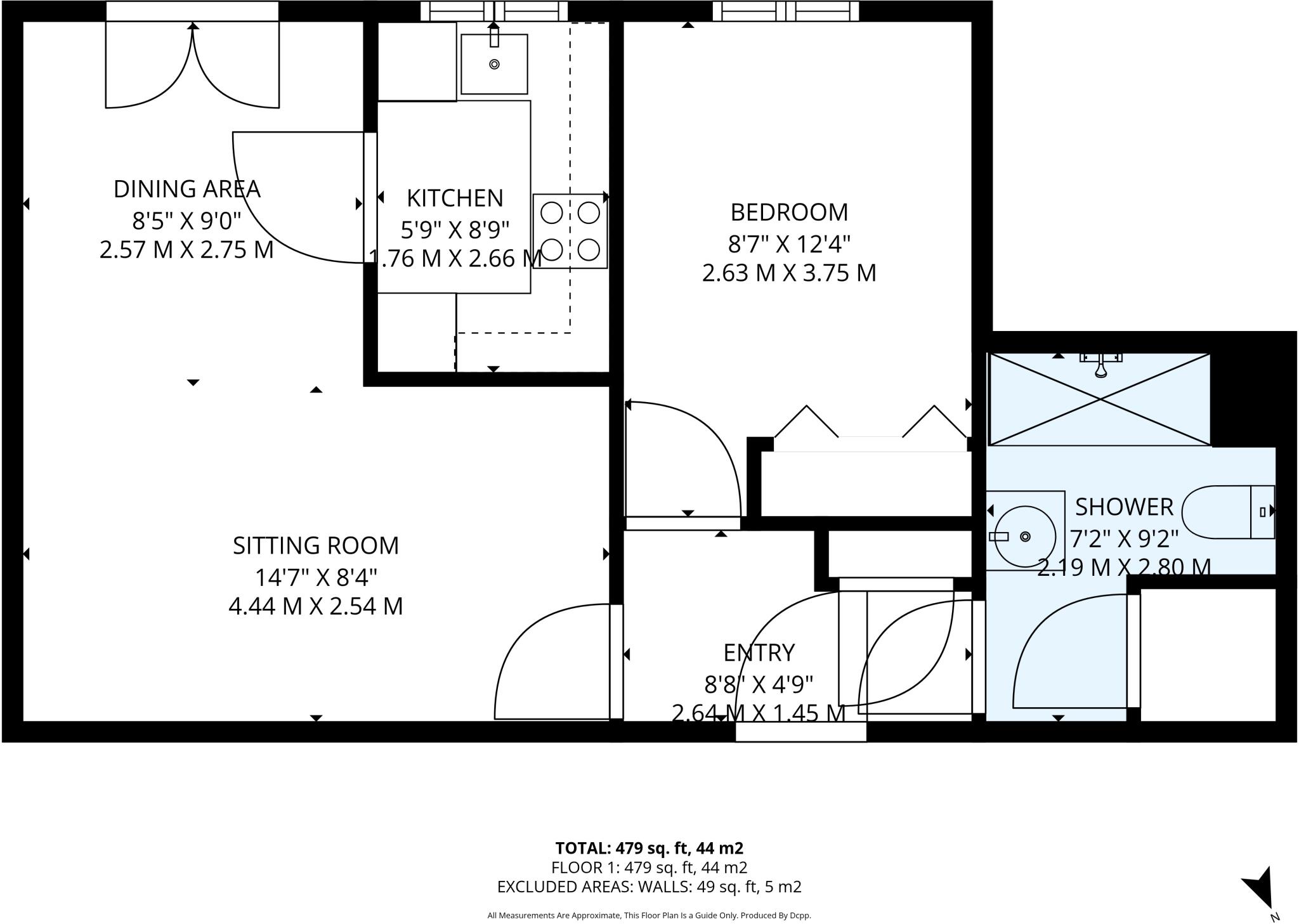
This very well presented first floor apartment is situated in the popular Lacy Court Retirement Development close to the town centre of Bury St Edmunds. Designed exclusively for over 60's the development offers independent living with the peace of mind that help is on hand if needed. The apartmen...
Property Oracle says ..
This is a one-bedroom flat in Lacy Court, located on Risbygate Street in Bury St. Edmunds. The property is listed for £130,000. It is in a good location, close to local amenities and transport links. The flat appears to be in reasonable condition, with a modern kitchen and bathroom. The property benefits from communal gardens. Overall, this property seems to be a good value for money.
Therefore, we give this property 7 / 10. *Disclaimer: This is our option and does constitute a recommendation or financial advice. Do your own research. *
- Price
- 8
- Condition
- 7
- Location
- 7
- Land
- 6
- Bedrooms
- 1
- Bathrooms
- 1
- Sqft (est)
- 461.33
The heatmap indicates the level of crime in the area. The color of the heatmap indicates the crime severity and recency.
Metrics Year-on-Year
- Average area value
- 372,500.00 £Increased by 10.08 %
- Est sale value
- 170,230.77 £Increased by 19.42 %
- Average area rental value
- 1,271.00 £/moIncreased by 6.81 %
- Est letting value
- 461.33 £/moUnchanged by 0.00 %
- Est rental Yield
- 4.09 %Decreased by 3.08 %
- Crime Rate
- 9.00 %Unchanged by 0.00 %
Agent Activity
Tennens Properties Ltd created the listing.
Nearby Schools
| Name | Type | Ofsted | Distance |
|---|---|---|---|
| St Edmundsbury Church Of England Voluntary Aided Primary School | Voluntary Aided School | Good | 0.40 KM |
| King Edward Vi Church Of England Voluntary Controlled Upper School | Voluntary Controlled School | Good | 0.40 KM |
| Bury Library Children'S Centre | Children's Centre | 0.53 KM | |
| West Suffolk College | Further Education | Good | 0.68 KM |
| Abbeygate Sixth Form College | Free Schools 16 To 19 | 0.76 KM |
Images
Nearby Streets
| Name | Average Price | Average Sqft | Distance |
|---|---|---|---|
| Camberley Court | £ 0 | 0 | 0.00 KM |
| Elsey's Yard | £ 0 | 0 | 0.00 KM |
| Wick Lane | £ 0 | 0 | 0.00 KM |
| All Saints Court | £ 375,000 | 0 | 0.00 KM |
| Market Square | £ 0 | 0 | 0.00 KM |
Nearby Transport
| Name | NLC | TLC | Distance |
|---|---|---|---|
| Bury St Edmunds | 7008 | BSE | 1.01 KM |
Nearby Listings
| Address | Price | Type | Score | Distance |
|---|---|---|---|---|
| Risbygate Street, Bury St. Edmunds | £ 90,000 | BUY | 7 / 10 | 0.00 KM |
| Risbygate Street, Bury St. Edmunds | £ 100,000 | BUY | Unknown | 0.00 KM |
| Risbygate Street, Bury St. Edmunds | £ 130,000 | BUY | 8 / 10 | 0.00 KM |
| Risbygate Street, Bury St. Edmunds | £ 210,000 | BUY | Unknown | 0.00 KM |
| Lacy Court, Risbygate Street, Bury St. Edmunds | £ 130,000 | BUY | 7 / 10 | 0.00 KM |
Nearby Properties
| Address | Price | Distance |
|---|---|---|
| 19 Chancellery Mews | £ 185,000 | 0.05 KM |
| 7 Chancellery Mews | £ 165,000 | 0.05 KM |
| 8 Chancellery Mews | £ 278,000 | 0.05 KM |
| 16 Chancellery Mews | £ 225,000 | 0.05 KM |
| 5 Chancellery Mews | £ 502,500 | 0.05 KM |