LE
Prestbury Drive, Thelwall, Warrington
By Leaders Sales
£ 280,000
Reviews
3 out of 5 stars
Leaders Sales says ..
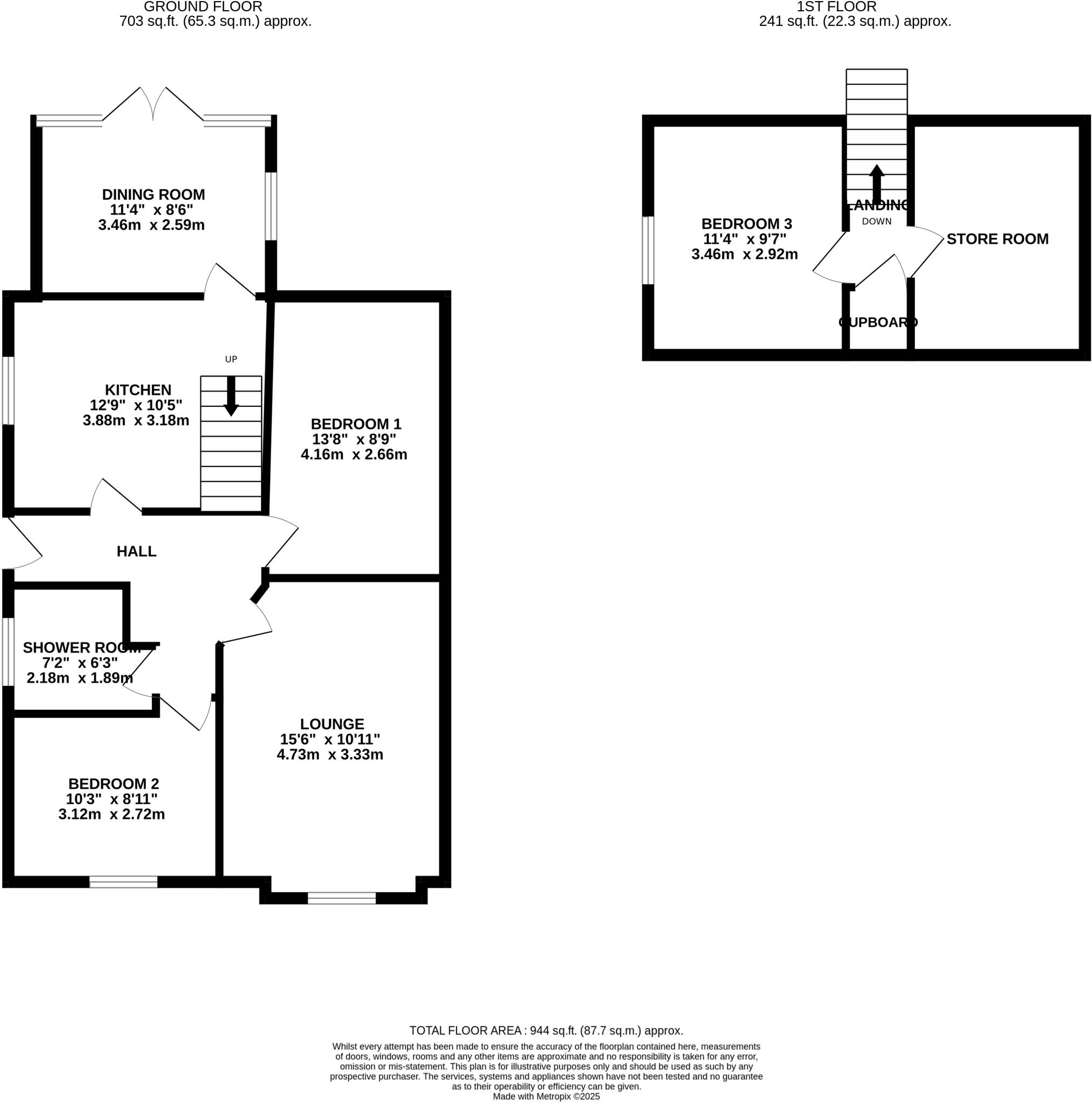
Introducing this semi-detached bungalow offered for sale with no onward chain, boasting an array of unique features, and ready for the next owners to bring it into the 21st century. This property, which requires modernising, is ideally suited to families or someone looking to downsize, presenting...
Property Oracle says ..
Therefore, we give this property 6 / 10. *Disclaimer: This is our option and does constitute a recommendation or financial advice. Do your own research. *
- Price
- 7
- Condition
- 4
- Location
- 7
- Land
- 7
- Bedrooms
- 3
- Bathrooms
- 1
- Sqft (est)
- 767.39
The heatmap indicates the level of crime in the area. The color of the heatmap indicates the crime severity and recency.
Metrics Year-on-Year
- Average area value
- 415,495.00 £Increased by 10.96 %
- Est sale value
- 392,903.68 £Increased by 57.06 %
- Average area rental value
- 1,617.00 £/moIncreased by 34.75 %
- Est letting value
- 767.39 £/moUnchanged by 0.00 %
- Est rental Yield
- 4.67 %Increased by 21.30 %
- Crime Rate
- 3.00 %Unchanged by 0.00 %
from 374,440.00 £
from 250,169.14 £
from 1,200.00 £/mo
from 767.39 £/mo
from 3.85 %
from 3.00 %
Agent Activity
Leaders Sales marked this listing as sold.
Leaders Sales created the listing.
Nearby Schools
| Name | Type | Ofsted | Distance |
|---|---|---|---|
| Thelwall Community Junior School | Community School | Good | 0.42 KM |
| Thelwall Infant School | Academy Converter | 0.84 KM | |
| Chaigeley School | Non-maintained Special School | Good | 1.34 KM |
| Bradshaw Community Primary School | Community School | Good | 1.40 KM |
| Butterflies Children'S Centre | Children's Centre Linked Site | 1.86 KM |
Images
Nearby Streets
| Name | Average Price | Average Sqft | Distance |
|---|---|---|---|
| Woodford Close | £ 0 | 0 | 0.00 KM |
| All Saint's Drive | £ 0 | 0 | 0.00 KM |
| Trans-Pennine Trail | £ 475,000 | 0 | 0.00 KM |
| Parry Drive | £ 0 | 0 | 0.00 KM |
| Ferry Lane | £ 0 | 0 | 0.00 KM |
Nearby Transport
| Name | NLC | TLC | Distance |
|---|---|---|---|
| Birchwood | 2304 | BWD | 3.33 KM |
| Padgate | 2387 | PDG | 3.63 KM |
| Warrington Central | 2390 | WAC | 6.75 KM |
| Warrington Bank Quay | 2384 | WBQ | 7.71 KM |
| Glazebrook | 2301 | GLZ | 9.48 KM |
Nearby Listings
| Address | Price | Type | Score | Distance |
|---|---|---|---|---|
| Prestbury Drive, Thelwall, Warrington | £ 280,000 | BUY | 6 / 10 | 0.00 KM |
| Prestbury Drive, Thelwall, Warrington | £ 250,000 | BUY | 6 / 10 | 0.00 KM |
| Prestbury Drive, Thelwall, Warrington | £ 250,000 | BUY | Unknown | 0.00 KM |
| Prestbury Drive, Thelwall, WA4 | £ 205,000 | BUY | 5 / 10 | 0.00 KM |
| Thelwall New Road, Thelwall, WA4 | £ 340,000 | BUY | 7 / 10 | 0.15 KM |
Nearby Properties
| Address | Price | Distance |
|---|---|---|
| 2 Prestbury Drive | £ 150,000 | 0.01 KM |
| 50 Prestbury Drive | £ 188,000 | 0.01 KM |
| 48 Prestbury Drive | £ 171,500 | 0.01 KM |
| 40 Prestbury Drive | £ 307,500 | 0.01 KM |
| 46 Prestbury Drive | £ 120,000 | 0.01 KM |