Knowstone, South Molton, Devon, EX36
Greenslade Taylor Hunt logo

Knowstone, South Molton, Devon, EX36

By Greenslade Taylor Hunt

£ 895,000

Reviews

3 out of 5 stars

Greenslade Taylor Hunt says ..

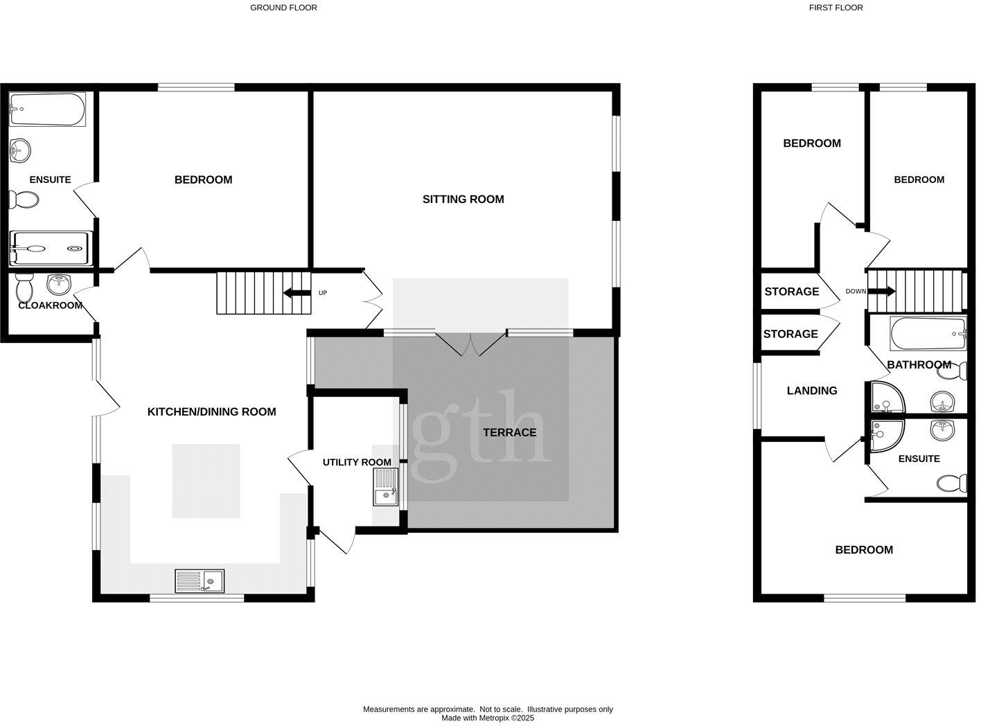
A newly developed barn conversion, enjoying spacious accommodation with superb views set within a rural yet accessible position, due for completion in June 2025

Property Oracle says ..

This property is a new build detached house located in Knowstone, South Molton, Devon. The location is rural, with the nearest schools being a drive away. While the images show a modern and well-built property with a good-sized plot, the lack of specific details on square footage and plot size makes a complete assessment difficult. The list price is significantly higher than the average price for the area, however, there are no comparable properties with sufficient data to confirm an accurate price per sqft. The property includes features such as a double garage and a patio. Overall, it appears to be a high-quality property in a peaceful location, but the pricing should be carefully considered in relation to the lack of precise information on size and comparable sales.

Therefore, we give this property 6 / 10. *Disclaimer: This is our option and does constitute a recommendation or financial advice. Do your own research. *

Price
5
Condition
9
Location
6
Land
7
Bedrooms
4
Bathrooms
3

The heatmap indicates the level of crime in the area. The color of the heatmap indicates the crime severity and recency.

Metrics Year-on-Year

Average area value
661,000.00 £
Increased by 29.29 %
from 511,241.00 £
Average area rental value
2,410.00 £/mo
Increased by 120.90 %
from 1,091.00 £/mo
Est rental Yield
4.38 %
Increased by 71.09 %
from 2.56 %
Crime Rate
6,654.00 %
Unchanged by 0.00 %
from 6,654.00 %

Agent Activity

  • Greenslade Taylor Hunt created the listing.

Nearby Schools

NameTypeOfstedDistance
Rackenford Church Of England Primary SchoolVoluntary Aided SchoolGood6.23 KM
East Anstey Primary SchoolCommunity SchoolGood7.35 KM
Witheridge Church Of England Primary AcademyAcademy ConverterGood9.15 KM

Images

Picture No. 01 Picture No. 10 Kitchen Cgi Picture No. 02 Picture No. 03 Kitchen Cgi Picture No. 07 Picture No. 08 Picture No. 09 Picture No. 04 Main House Kitchen / Diner Views Over View Living Room Kitchen Views Outside Space Main House Garden Kitchen / Diner Kitchen Kitchen Bedroom Shower Room Hall Entrance

Nearby Streets

NameAverage PriceAverage SqftDistance
Traceys Cottages £ 525,00000.00 KM

Nearby Listings

AddressPriceTypeScoreDistance
Knowstone, South Molton, Devon, EX36 £ 895,000BUY6 / 100.00 KM
Knowstone, South Molton £ 595,000BUY6 / 100.10 KM
Knowstone, Knowstone, South Molton £ 180,000BUY7 / 100.20 KM