Pelham Street, Ashton-under-Lyne, Greater Manchester, OL7
By Reeds Rains
£ 200,000
Reviews
3 out of 5 stars
Reeds Rains says ..
For sale with NO VENDOR CHAIN. Quiet residential location. Desirable area. Spacious accommodation throughout. Conservatory, gardens and garage. Some cosmetic updating required. Complemented to the front by a substantial garden. To the rear is a low maintenance garden with a detached garage. Close...
Property Oracle says ..
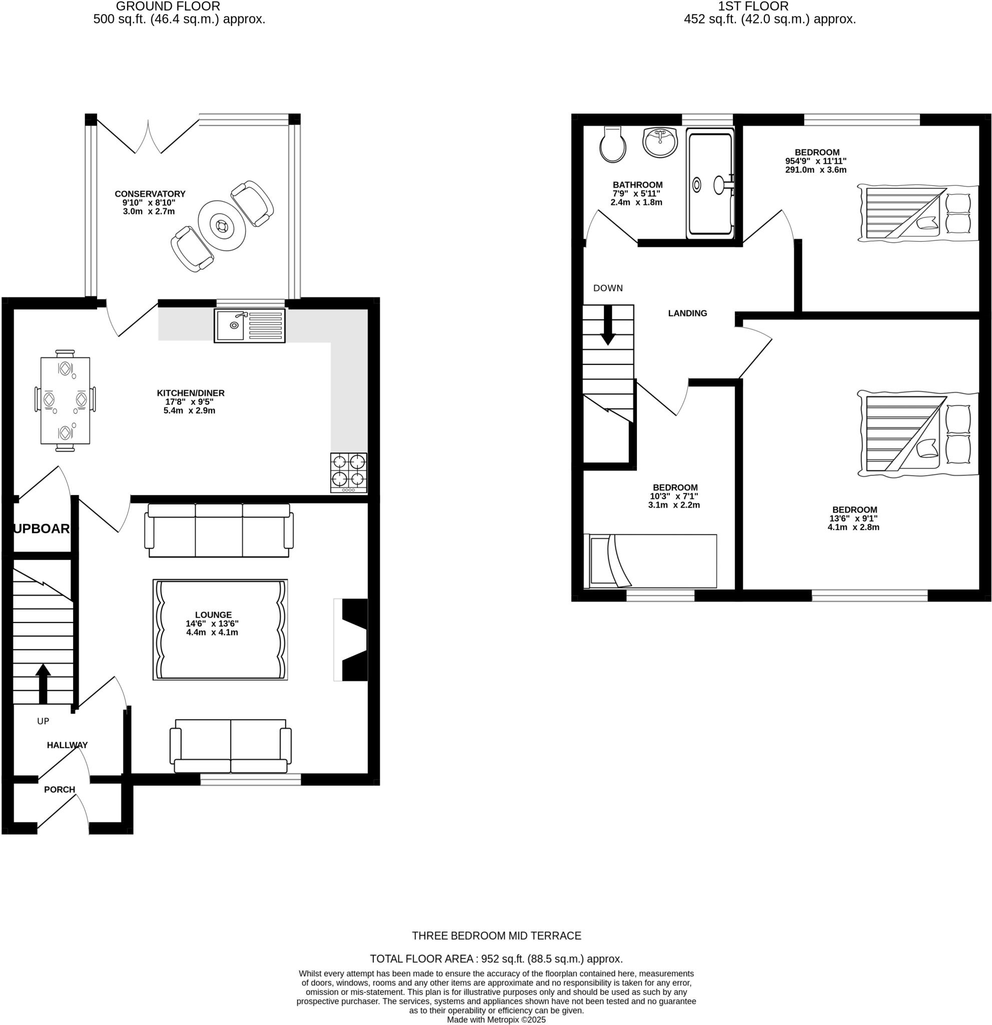
This is a three-bedroom terraced house located in St Peter’s, Ashton-under-Lyne. The property benefits from its proximity to local schools and transportation links, including Guide Bridge train station. While the house requires modernisation, it offers a substantial amount of living space at 4,395 sq ft. The property includes a garden with a paved area, shed, and greenhouse. The house is competitively priced for the area, considering its size and potential.
Therefore, we give this property 6 / 10. *Disclaimer: This is our option and does constitute a recommendation or financial advice. Do your own research. *
- Price
- 7
- Condition
- 5
- Location
- 6
- Land
- 6
- Bedrooms
- 3
- Bathrooms
- 1
- Sqft (est)
- 4,395.00
The heatmap indicates the level of crime in the area. The color of the heatmap indicates the crime severity and recency.
Metrics Year-on-Year
- Average area value
- 489,766.00 £Increased by 6.36 %
- Est sale value
- 3,045,735.00 £Increased by 54.34 %
- Average area rental value
- 2,264.00 £/moIncreased by 11.14 %
- Est letting value
- 13,185.00 £/moIncreased by 200.00 %
- Est rental Yield
- 5.55 %Increased by 4.52 %
- Crime Rate
- 0.00 %
Agent Activity
Reeds Rains created the listing.
Nearby Schools
| Name | Type | Ofsted | Distance |
|---|---|---|---|
| St Stephen'S Cofe Primary School | Voluntary Aided School | Good | 0.34 KM |
| St Peter'S Cofe Primary School | Voluntary Aided School | Good | 0.68 KM |
| Ashton West End Primary Academy | Academy Converter | Good | 0.78 KM |
| St Peters Children'S Centre | Children's Centre | 0.80 KM | |
| Poplar Street Primary School | Academy Converter | 1.07 KM |
Images
Nearby Streets
| Name | Average Price | Average Sqft | Distance |
|---|---|---|---|
| South Street | £ 160,000 | 0 | 0.00 KM |
| Smith Street | £ 190,000 | 0 | 0.00 KM |
| Ryecroft Lane | £ 0 | 0 | 0.00 KM |
| Bye Street | £ 175,000 | 0 | 0.00 KM |
| Park Street | £ 0 | 0 | 0.00 KM |
Nearby Transport
| Name | NLC | TLC | Distance |
|---|---|---|---|
| Guide Bridge | 2955 | GUI | 0.52 KM |
| Ashton-Under-Lyne | 2790 | AHN | 2.73 KM |
| Denton | 2855 | DTN | 3.02 KM |
| Fairfield | 2780 | FRF | 3.44 KM |
| Hyde North | 2959 | HYT | 3.69 KM |
Nearby Listings
| Address | Price | Type | Score | Distance |
|---|---|---|---|---|
| Pelham Street, Ashton-under-Lyne, Greater Manchester, OL7 | £ 200,000 | BUY | 6 / 10 | 0.00 KM |
| Pelham Street, Ashton-under-Lyne, OL7 | £ 225,000 | BUY | 7 / 10 | 0.03 KM |
| Marlborough Street, Ashton-under-Lyne, Greater Manchester, OL7 | £ 140,000 | BUY | 5 / 10 | 0.17 KM |
| Marlborough Street, Ashton-Under-Lyne | £ 200,000 | BUY | 7 / 10 | 0.21 KM |
| Marlborough Street, Ashton-Under-Lyne | £ 150,000 | BUY | 7 / 10 | 0.22 KM |
Nearby Properties
| Address | Price | Distance |
|---|---|---|
| 51 Pelham Street | £ 69,950 | 0.01 KM |
| 50 Pelham Street | £ 94,096 | 0.01 KM |
| 47 Pelham Street | £ 74,500 | 0.01 KM |
| 35 Pelham Street | £ 17,000 | 0.01 KM |
| 33 Pelham Street | £ 92,500 | 0.01 KM |