Milverton, Taunton
ST

Milverton, Taunton

By Stags

£ 835,000

Reviews

3 out of 5 stars

Stags says ..

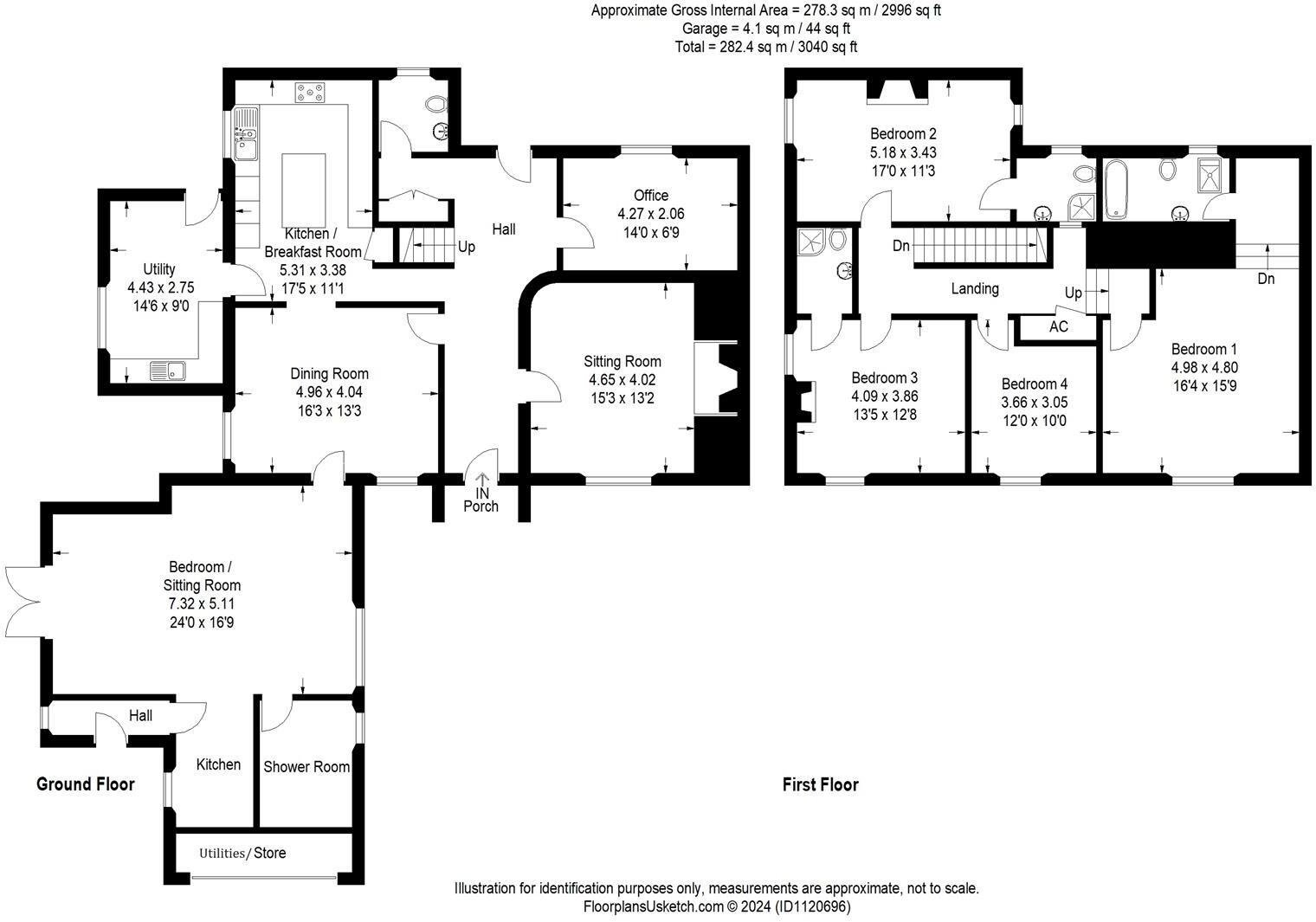
An attractive detached four bedroom character property with one bedroom annexe on edge of popular village with countryside views. Freehold. Council Tax Band F. EPC Band E

Property Oracle says ..

This five-bedroom, four-bathroom property in Milverton, Somerset, presents itself as a charming and well-maintained family home. The property benefits from the picturesque countryside setting of Milverton, with several good primary schools in relatively close proximity. The interior appears to have undergone recent updates, with modern kitchens and bathrooms presented across several images. The extensive outdoor space is a key asset, providing ample room for relaxation and entertainment, although the lack of a precise plot size prevents a truly accurate appraisal of its value in square footage. The images suggest a substantial area of both patio and lawn. The overall aesthetic of the property is appealing, balancing modern conveniences with the character of a potentially older property. Buyers interested in homes in desirable Somerset villages, with excellent schools and ample outdoor space should find this property strongly appealing. Further information on comparable sold properties in the area is required for complete market analysis and definitive price valuation.

Therefore, we give this property 7 / 10. *Disclaimer: This is our option and does constitute a recommendation or financial advice. Do your own research. *

Price
7
Condition
8
Location
7
Land
6
Bedrooms
5
Bathrooms
4
Sqft (est)
3,039.73

The heatmap indicates the level of crime in the area. The color of the heatmap indicates the crime severity and recency.

Metrics Year-on-Year

Average area value
775,000.00 £
Increased by 94.50 %
from 398,460.00 £
Est sale value
1,145,978.21 £
Increased by 14.59 %
from 1,000,071.17 £
Average area rental value
875.00 £/mo
Decreased by 43.84 %
from 1,558.00 £/mo
Est letting value
0.00 £/mo
Decreased by 100.00 %
from 3,039.73 £/mo
Est rental Yield
1.35 %
Decreased by 71.22 %
from 4.69 %
Crime Rate
0.00 %
from 0.00 %

Agent Activity

  • Stags created the listing.

Nearby Schools

NameTypeOfstedDistance
Milverton Community Primary School And Pre-SchoolCommunity SchoolGood2.00 KM
Langford Budville Church Of England Primary SchoolVoluntary Controlled SchoolGood3.29 KM
Kingsmead AcademyAcademy ConverterGood4.04 KM
Wiveliscombe BuildingChildren's Centre Linked Site4.48 KM
Wiveliscombe Primary SchoolCommunity SchoolGood4.75 KM

Images

421995251_912372660899670_2363905955264856768_n (1 IMG_0361.jpg Lounge.jpg IMG_0355.jpg IMG_0352.jpg IMG_0358.jpg IMG_0319.jpg IMG_0325.jpg IMG_0334.JPG IMG_0337.JPG IMG_0328.jpg IMG_0340.jpg IMG_0331.jpg IMG_1441.JPG IMG_1445.JPG DSC_0353.JPG IMG_1437.JPG IMG_1444.JPG IMG_2713.jpg IMG_2716.jpg IMG_0394-HDR.jpg IMG_0388-HDR.jpg garden.jpg IMG_2725.jpg 436282732_912372924232977_5165354023414009640_n.jp 442411189_912372887566314_750828103910408408_n.jpg 436234191_912372957566307_1659133542205885925_n.jp 436446543_912372867566316_4673727739333422765_n.jp Main.jpg 436197259_912372857566317_6470630170308684031_n.jp

Nearby Listings

AddressPriceTypeScoreDistance
Milverton, Nr Wiveliscombe, Taunton, Somerset, TA4 £ 775,000BUY7 / 100.00 KM
Butts Way, Milverton, Taunton, Somerset, TA4 £ 75,000BUY6 / 101.18 KM
Butts Way, Milverton, Taunton £ 135,000BUY6 / 101.55 KM
Croford, Wiveliscombe, Taunton, Somerset, TA4 £ 699,950BUY7 / 101.58 KM
Courtfield, Milverton, Taunton, Somerset, TA4 £ 300,000BUY7 / 101.64 KM

Nearby Properties

AddressPriceDistance
Westbrook Cottage £ 633,5001.20 KM
2 Newfield £ 276,0001.58 KM
Woodvale House £ 695,0001.59 KM
36 Courtfield £ 161,0001.59 KM
39 Courtfield £ 260,0001.59 KM