Hill Street, Jarrow, Tyne and Wear, NE32
By Chase Holmes
£ 140,000
Reviews
3 out of 5 stars
Chase Holmes says ..
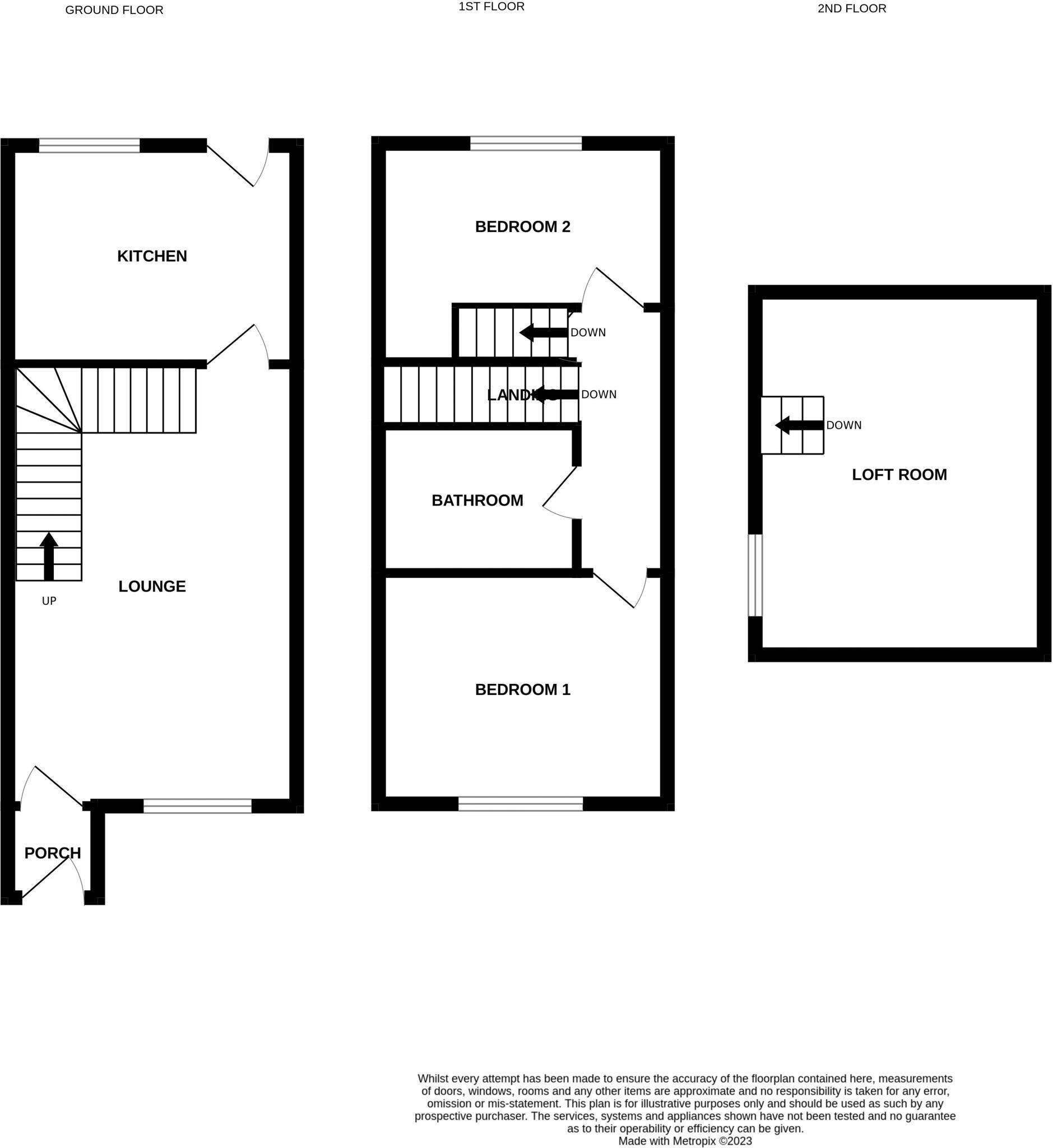
This beautifully maintained two-bedroom terraced property is perfect for first-time buyers or anyone seeking a ready-to-move-into home. Offered with no upper chain, this charming home offers comfort and convenience in a great location.
Property Oracle says ..
This is a terraced property located in Jarrow, Tyne and Wear. The property benefits from a modern kitchen and bathroom, and updated flooring. The property also has a garden. There are several schools located within a reasonable distance. The property is listed for £140,000 which seems like a reasonable price.
Therefore, we give this property 7 / 10. *Disclaimer: This is our option and does constitute a recommendation or financial advice. Do your own research. *
- Price
- 7
- Condition
- 8
- Location
- 7
- Land
- 7
- Bedrooms
- 2
- Bathrooms
- 1
- Sqft (est)
- 1,010.00
The heatmap indicates the level of crime in the area. The color of the heatmap indicates the crime severity and recency.
Metrics Year-on-Year
- Average area value
- 410,714.00 £Increased by 0.52 %
- Est sale value
- 424,200.00 £Increased by 4.48 %
- Average area rental value
- 1,363.00 £/moDecreased by 8.52 %
- Est letting value
- 1,010.00 £/moUnchanged by 0.00 %
- Est rental Yield
- 3.98 %Decreased by 9.13 %
- Crime Rate
- 10.00 %Unchanged by 0.00 %
Agent Activity
Chase Holmes created the listing.
Nearby Schools
| Name | Type | Ofsted | Distance |
|---|---|---|---|
| St Oswald'S Cofe Aided Primary School | Voluntary Aided School | Good | 0.77 KM |
| Jarrow School | Foundation School | Good | 1.07 KM |
| Jarrow Cross Cofe Primary School | Voluntary Controlled School | Good | 1.10 KM |
| Groundwork South Tyneside And Newcastle | Special Post 16 Institution | Good | 1.27 KM |
| Clervaux Nursery School | Local Authority Nursery School | Outstanding | 1.30 KM |
Images
Nearby Streets
| Name | Average Price | Average Sqft | Distance |
|---|---|---|---|
| Park Road | £ 35,750 | 0 | 0.00 KM |
| Mayfield Gardens | £ 0 | 0 | 0.00 KM |
| York Street | £ 158,625 | 0 | 0.00 KM |
| South View | £ 270,000 | 0 | 0.00 KM |
| Monkton Cycleway | £ 115,000 | 0 | 0.00 KM |
Nearby Transport
| Name | NLC | TLC | Distance |
|---|---|---|---|
| Heworth | 7766 | HEW | 7.29 KM |
Nearby Listings
| Address | Price | Type | Score | Distance |
|---|---|---|---|---|
| Hill Street, Jarrow, Tyne and Wear, NE32 | £ 140,000 | BUY | 7 / 10 | 0.00 KM |
| Hill Street, Jarrow, Tyne and Wear, NE32 5HU | £ 165,000 | BUY | 6 / 10 | 0.12 KM |
| Jarrow, Tyne and Wear, NE32 | £ 75,000 | BUY | 4 / 10 | 0.13 KM |
| Jarrow, Tyne And Wear, NE32 | £ 129,950 | BUY | 8 / 10 | 0.15 KM |
| Holly Street, Jarrow, Tyne and Wear, NE32 | £ 139,950 | BUY | 6 / 10 | 0.15 KM |
Nearby Properties
| Address | Price | Distance |
|---|---|---|
| 16 Hill Street | £ 98,500 | 0.07 KM |
| 19 Hill Street | £ 135,000 | 0.07 KM |
| 39 Hill Street | £ 97,000 | 0.07 KM |
| 29 Hill Street | £ 135,000 | 0.07 KM |
| 18 Hill Street | £ 102,000 | 0.07 KM |