Lyndale Park, School Croft, Brotherton
By Sherringtons Estate Agents
£ 140,000
Reviews
3 out of 5 stars
Sherringtons Estate Agents says ..
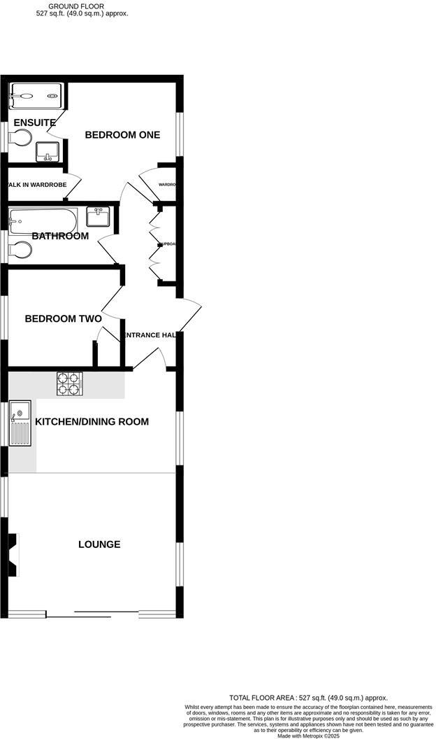
A Brand New Fully Residential Beverley Leisure Home 14ft x 42ft park home on the private and secluded Lyndale park site nr Garforth and Selby. We are pleased to offer for sale this superb two bedroom detached park home. The property benefits from being modern throughout, gas central heating, doub...
Property Oracle says ..
The property is a modern park home located in Byram & Brotherton, Selby, North Yorkshire. It features 2 bedrooms and 2 bathrooms and is listed at £140,000. The interior appears to be in good condition with modern fixtures. Although the plot size is minimal, it includes a deck area. The price per square foot is lower than the area average, suggesting good value. The property is located near schools and transport links.
Therefore, we give this property 6 / 10. *Disclaimer: This is our option and does constitute a recommendation or financial advice. Do your own research. *
- Price
- 8
- Condition
- 9
- Location
- 7
- Land
- 3
- Bedrooms
- 2
- Bathrooms
- 2
- Sqft (est)
- 527.00
The heatmap indicates the level of crime in the area. The color of the heatmap indicates the crime severity and recency.
Metrics Year-on-Year
- Average area value
- 227,143.00 £Decreased by 21.02 %
- Est sale value
- 131,223.00 £Decreased by 24.55 %
- Average area rental value
- 1,237.00 £/moIncreased by 11.34 %
- Est letting value
- 527.00 £/moUnchanged by 0.00 %
- Est rental Yield
- 6.54 %Increased by 40.95 %
- Crime Rate
- 13.00 %Unchanged by 0.00 %
Agent Activity
Sherringtons Estate Agents created the listing.
Nearby Schools
| Name | Type | Ofsted | Distance |
|---|---|---|---|
| Brotherton Children'S Centre | Children's Centre | 0.33 KM | |
| Brotherton And Byram Community Primary Academy | Academy Sponsor Led | Good | 0.46 KM |
| Willow Green Academy | Academy Sponsor Led | Good | 1.92 KM |
| Burton Salmon Community Primary School | Community School | Good | 2.13 KM |
| The Vale Primary Academy | Academy Converter | Outstanding | 2.13 KM |
Images
Nearby Streets
| Name | Average Price | Average Sqft | Distance |
|---|---|---|---|
| Orchard View | £ 200,000 | 0 | 0.00 KM |
| Punch Bowl Yd | £ 210,000 | 0 | 0.00 KM |
| Hillside | £ 422,500 | 0 | 0.00 KM |
| The Square | £ 225,000 | 0 | 0.00 KM |
| Station Road | £ 0 | 0 | 0.00 KM |
Nearby Transport
| Name | NLC | TLC | Distance |
|---|---|---|---|
| Knottingley | 8546 | KNO | 2.52 KM |
| Pontefract Monkhill | 8548 | PFM | 4.85 KM |
| Pontefract Baghill | 8540 | PFR | 5.36 KM |
| Pontefract Tanshelf | 8541 | POT | 6.53 KM |
| South Milford | 8142 | SOM | 6.56 KM |
Nearby Listings
| Address | Price | Type | Score | Distance |
|---|---|---|---|---|
| Lyndale Park, School Croft, Brotherton | £ 140,000 | BUY | 6 / 10 | 0.00 KM |
| School Croft, Brotherton, Knottingley | £ 220,000 | BUY | 7 / 10 | 0.07 KM |
| Gauk Street, Brotherton | £ 230,000 | BUY | 7 / 10 | 0.09 KM |
| Gauk Street, Brotherton, North Yorkshire | £ 340,000 | BUY | 7 / 10 | 0.09 KM |
| Ramsden Close, Brotherton | £ 150,000 | BUY | 6 / 10 | 0.10 KM |
Nearby Properties
| Address | Price | Distance |
|---|---|---|
| 4 Vicars Mews | £ 125,000 | 0.04 KM |
| 5 Vicars Mews | £ 126,100 | 0.04 KM |
| 8 School Croft | £ 205,000 | 0.07 KM |
| 1 Ramsden Close | £ 125,000 | 0.11 KM |
| Greystones | £ 365,000 | 0.17 KM |