Talbot Road, London, W2
By The London Broker
£ 2,495,000
Reviews
3 out of 5 stars
The London Broker says ..
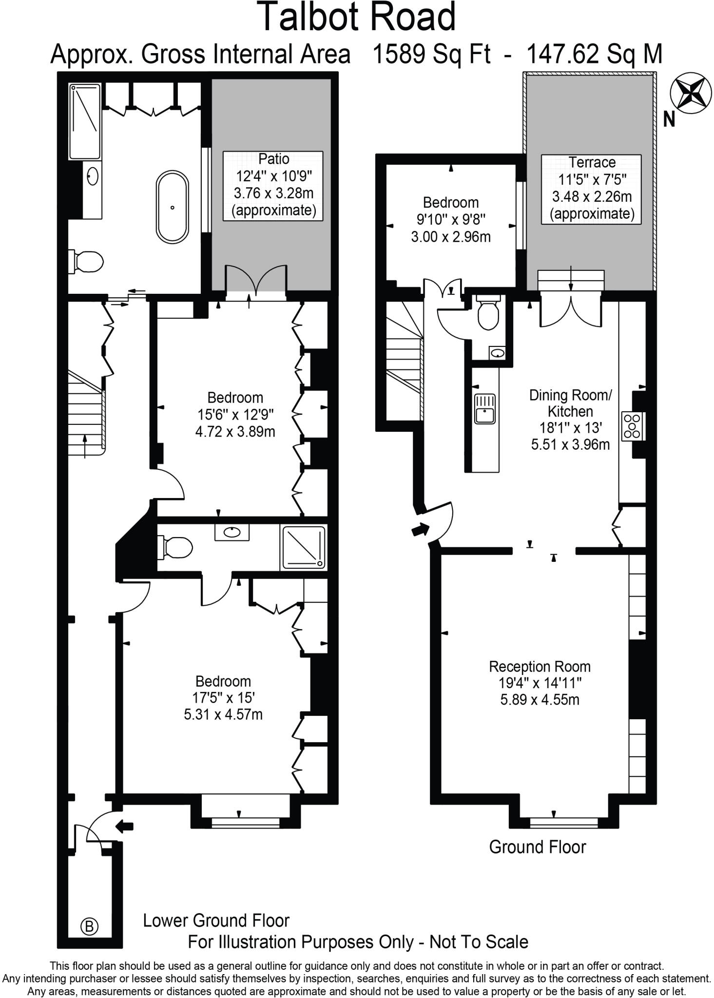
This impressive three-bedroom duplex apartment occupies the ground and lower-ground floors of a smart period building and has been sensitively updated providing contemporary interior design and a functional layout.
Property Oracle says ..
This three-bedroom, two-bathroom property located on Talbot Road in Bayswater, London (W2 5LJ) is presented by The London Broker. The property boasts a desirable location within the W2 postcode, known for its affluent residential character and proximity to Hyde Park. Images reveal a recently renovated or refurbished interior with high-quality finishes. The kitchen is contemporary and stylish, and the living spaces are spacious and well-lit. The bedrooms are well-proportioned, and the bathrooms are modern. Although specific square footage for comparable properties is not provided, the listed price seems reasonable for the area, considering similar property sales. A noticeable drawback is the limited outdoor space, with only a small patio/courtyard area visible in photos. This may reduce the overall appeal to certain buyers, particularly families. The excellent condition and desirable location are key strengths, offering a potentially luxurious lifestyle for its occupants. Overall, the property presents itself as a premium offering within the Bayswater market, albeit with the limitation of outdoor space. Access to highly-rated primary schools is a significant advantage. Transport links are within a reasonable distance, but not immediate. A prospective buyer should carefully weigh the advantages of the location and property’s condition against the smaller than average garden/outdoor area.
Therefore, we give this property 6 / 10. *Disclaimer: This is our option and does constitute a recommendation or financial advice. Do your own research. *
- Price
- 7
- Condition
- 9
- Location
- 8
- Land
- 3
- Bedrooms
- 3
- Bathrooms
- 2
- Sqft (est)
- 1,588.97
The heatmap indicates the level of crime in the area. The color of the heatmap indicates the crime severity and recency.
Metrics Year-on-Year
- Average area value
- 1,797,217.00 £Increased by 26.51 %
- Est sale value
- 2,782,286.47 £Increased by 40.64 %
- Average area rental value
- 3,101.00 £/moIncreased by 21.61 %
- Est letting value
- 4,766.91 £/moIncreased by 50.00 %
- Est rental Yield
- 2.07 %Decreased by 3.72 %
- Crime Rate
- 6.00 %Unchanged by 0.00 %
Agent Activity
The London Broker created the listing.
Nearby Schools
| Name | Type | Ofsted | Distance |
|---|---|---|---|
| St. Mary Of The Angels Catholic Primary School | Voluntary Aided School | Good | 0.15 KM |
| Bayswater Children'S Centre | Children's Centre Linked Site | 0.16 KM | |
| St Stephen'S Cofe Primary School | Voluntary Aided School | Good | 0.24 KM |
| Wetherby Preparatory School | Other Independent School | 0.41 KM | |
| Queensway Children'S Centre | Children's Centre Linked Site | 0.58 KM |
Images
Nearby Streets
| Name | Average Price | Average Sqft | Distance |
|---|---|---|---|
| Caradoc Close | £ 850,000 | 0 | 0.00 KM |
| Needham Road | £ 0 | 0 | 0.00 KM |
| Ledbury Mews West | £ 0 | 0 | 0.00 KM |
| Dawson Place | £ 2,650,000 | 0 | 0.00 KM |
| St Luke's Road | £ 0 | 0 | 0.00 KM |
Nearby Transport
| Name | NLC | TLC | Distance |
|---|---|---|---|
| Queens Park (London) | 1419 | QPW | 2.08 KM |
| Paddington | 3087 | PAD | 2.29 KM |
| Kilburn High Road | 1415 | KBN | 2.30 KM |
| Kensington (Olympia) | 3092 | KPA | 2.61 KM |
| Shepherd'S Bush | 9587 | SPB | 2.65 KM |
Nearby Listings
| Address | Price | Type | Score | Distance |
|---|---|---|---|---|
| Talbot Road, London, W2 | £ 2,495,000 | BUY | 6 / 10 | 0.00 KM |
| Talbot Road, London, W2 | £ 2,495,000 | BUY | 6 / 10 | 0.01 KM |
| Talbot Road, London, W2 | £ 1,800,000 | BUY | 6 / 10 | 0.04 KM |
| Talbot Road, Notting HIll, London, W2 | £ 800,000 | BUY | 6 / 10 | 0.04 KM |
| Talbot Road, Notting Hill | £ 625,000 | BUY | 6 / 10 | 0.05 KM |
Nearby Properties
| Address | Price | Distance |
|---|---|---|
| 55 Talbot Road | £ 4,730,000 | 0.03 KM |
| 57a Talbot Road | £ 1,000,000 | 0.03 KM |
| 57 Talbot Road | £ 790,000 | 0.03 KM |
| 51 Talbot Road | £ 2,140,000 | 0.03 KM |
| 36e Talbot Road | £ 550,000 | 0.03 KM |