Pearsons says ..
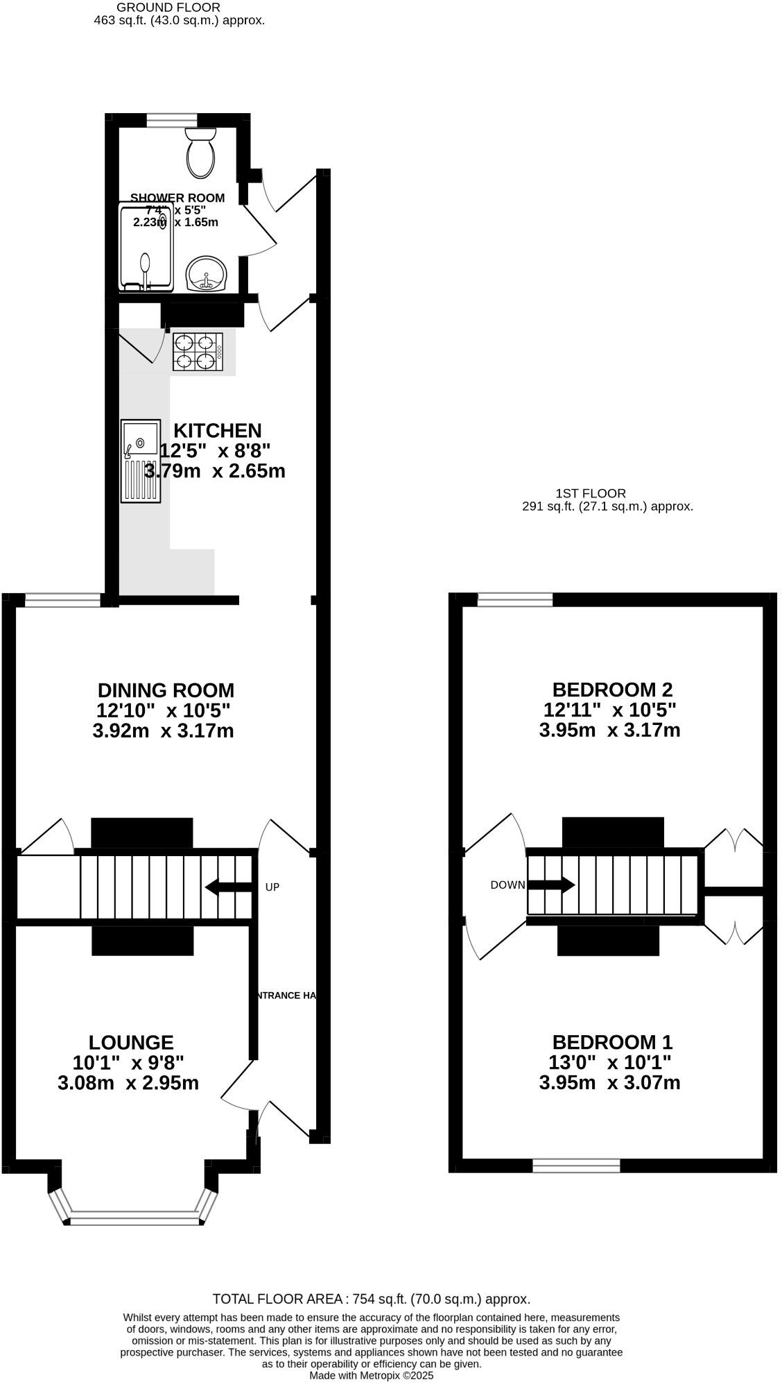
Sold with no forward chain, this two-bedroom single bay and forecourt terraced home offers well-proportioned accommodation with neutral decor throughout. On the ground floor, the property features two spacious reception rooms leading through to a modern fitted kitchen and a contemporary shower ro...
Property Oracle says ..
This is a two-bedroom terraced house in the Milton area of Southsea. The property offers a garden, which is a plus, and is located conveniently near schools and transportation. While the house is in a habitable condition, some modernisation would likely increase its appeal. The asking price appears to be in line with the local market. Overall, it presents a solid opportunity for first-time buyers or investors looking for a property with potential.
Therefore, we give this property 6 / 10. *Disclaimer: This is our option and does constitute a recommendation or financial advice. Do your own research. *
- Price
- 7
- Condition
- 6
- Location
- 7
- Land
- 7
- Bedrooms
- 2
- Bathrooms
- 1
- Sqft (est)
- 754.00
The heatmap indicates the level of crime in the area. The color of the heatmap indicates the crime severity and recency.
Metrics Year-on-Year
- Average area value
- 328,606.00 £Increased by 5.04 %
- Est sale value
- 259,376.00 £Decreased by 14.85 %
- Average area rental value
- 1,137.00 £/moDecreased by 6.34 %
- Est letting value
- 754.00 £/moUnchanged by 0.00 %
- Est rental Yield
- 4.15 %Decreased by 10.94 %
- Crime Rate
- 6.00 %Unchanged by 0.00 %
Agent Activity
Pearsons created the listing.
Nearby Schools
| Name | Type | Ofsted | Distance |
|---|---|---|---|
| Wimborne Primary School | Community School | 0.45 KM | |
| Cumberland Children'S Centre | Children's Centre Linked Site | 0.61 KM | |
| Fernhurst Junior School | Community School | Good | 0.63 KM |
| Devonshire Infant School | Community School | Good | 0.68 KM |
| Cumberland Infant School | Community School | Good | 0.75 KM |
Images
Nearby Streets
| Name | Average Price | Average Sqft | Distance |
|---|---|---|---|
| Fratton Way | £ 162,500 | 0 | 0.00 KM |
| Clovelly Road | £ 0 | 0 | 0.00 KM |
| Church View | £ 0 | 0 | 0.00 KM |
| Warblington Place | £ 0 | 0 | 0.00 KM |
| Proctor Lane | £ 0 | 0 | 0.00 KM |
Nearby Transport
| Name | NLC | TLC | Distance |
|---|---|---|---|
| Fratton | 5509 | FTN | 1.07 KM |
| Portsmouth And Southsea | 5537 | PMS | 2.96 KM |
| Hilsea | 5539 | HLS | 3.75 KM |
| Portsmouth Harbour | 5540 | PMH | 4.81 KM |
| Cosham | 5896 | CSA | 5.23 KM |
Nearby Listings
| Address | Price | Type | Score | Distance |
|---|---|---|---|---|
| Ruskin Road, Southsea | £ 235,000 | BUY | 6 / 10 | 0.00 KM |
| Frogmore Road, Southsea | £ 220,000 | BUY | Unknown | 0.08 KM |
| Frogmore Road, Southsea | £ 245,000 | BUY | 6 / 10 | 0.08 KM |
| Rowan Court, Southsea | £ 175,000 | BUY | 6 / 10 | 0.08 KM |
| Frogmore Road, Southsea | £ 179,995 | BUY | 4 / 10 | 0.09 KM |
Nearby Properties
| Address | Price | Distance |
|---|---|---|
| 41 Ruskin Road | £ 159,000 | 0.00 KM |
| 15 Ruskin Road | £ 107,000 | 0.00 KM |
| 39 Ruskin Road | £ 180,000 | 0.00 KM |
| 26 Ruskin Road | £ 219,500 | 0.00 KM |
| 25 Ruskin Road | £ 235,000 | 0.00 KM |