Chancellors says ..
Chancellors are proud to present to the open market this three bedroom semi-detached property originally built by the prestigious developer Miller Homes who are know for exceptional built quality . this is a larger square footage three bed to many in the local area. Viewing is highly recommended.
Property Oracle says ..
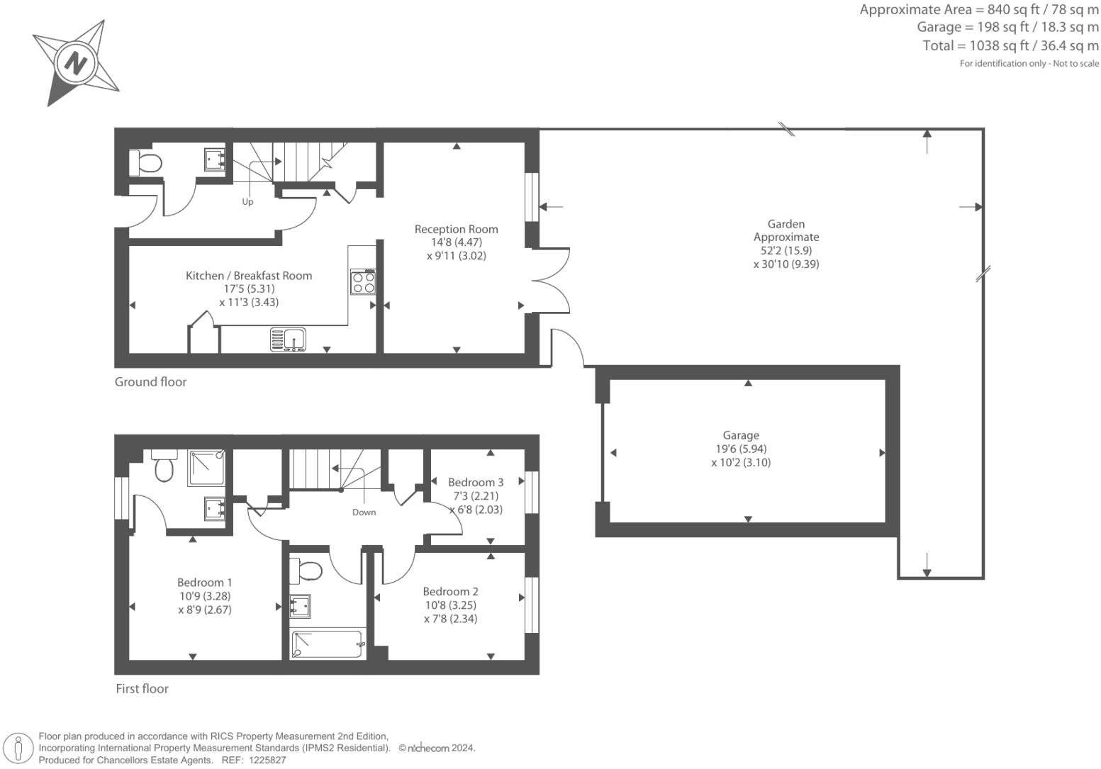
The property is a three-bedroom semi-detached house located in Banbury, Oxfordshire, and appears to be in excellent condition based on the provided photos. It features a modern interior and a good-sized enclosed rear garden. The location is convenient, with proximity to a railway station and several schools. However, a definitive assessment of the property’s value is hampered by the absence of square footage data, which prevents a price-per-square-foot comparison to local averages.
Therefore, we give this property 7 / 10. *Disclaimer: This is our option and does constitute a recommendation or financial advice. Do your own research. *
- Price
- 7
- Condition
- 9
- Location
- 7
- Land
- 8
- Bedrooms
- 3
- Bathrooms
- 2
The heatmap indicates the level of crime in the area. The color of the heatmap indicates the crime severity and recency.
Metrics Year-on-Year
- Average area value
- 990,500.00 £Increased by 38.01 %
- Average area rental value
- 1,536.00 £/moDecreased by 9.43 %
- Est rental Yield
- 1.86 %Decreased by 34.51 %
- Crime Rate
- 23.00 %Unchanged by 0.00 %
Agent Activity
Chancellors created the listing.
Nearby Schools
| Name | Type | Ofsted | Distance |
|---|---|---|---|
| North Oxfordshire Academy | Academy Sponsor Led | Good | 0.60 KM |
| William Morris Primary School | Academy Sponsor Led | Outstanding | 1.16 KM |
| Hardwick Primary School | Academy Converter | 1.31 KM | |
| Hill View Primary School | Academy Converter | 1.72 KM | |
| St Joseph'S Catholic Primary School, Banbury | Academy Converter | Good | 1.94 KM |
Images
Nearby Streets
| Name | Average Price | Average Sqft | Distance |
|---|---|---|---|
| Bannister Drive | £ 562,500 | 0 | 0.00 KM |
| Nickling Road | £ 0 | 0 | 0.00 KM |
| Jenkins Road | £ 0 | 0 | 0.00 KM |
| Morgan Close | £ 313,000 | 0 | 0.00 KM |
| Queens Crescent | £ 0 | 0 | 0.00 KM |
Nearby Transport
| Name | NLC | TLC | Distance |
|---|---|---|---|
| Banbury | 4502 | BAN | 4.74 KM |
Nearby Listings
| Address | Price | Type | Score | Distance |
|---|---|---|---|---|
| Banbury, Oxfordshire, OX16 | £ 350,000 | BUY | 7 / 10 | 0.00 KM |
| Greville Road, Banbury, Oxfordshire, OX16 | £ 350,000 | BUY | 7 / 10 | 0.07 KM |
| Ellison Drive, Banbury | £ 550,000 | BUY | 7 / 10 | 0.12 KM |
| Winston Drive, Banbury | £ 175,000 | BUY | 7 / 10 | 0.13 KM |
| Kingerlee Road, Banbury, Oxfordshire, OX16 | £ 170,500 | BUY | 7 / 10 | 0.17 KM |
Nearby Properties
| Address | Price | Distance |
|---|---|---|
| 9 Ellison Drive | £ 445,000 | 0.11 KM |
| 11 Ellison Drive | £ 279,950 | 0.11 KM |
| 12 Ellison Drive | £ 385,000 | 0.11 KM |
| 2 Ellison Drive | £ 306,000 | 0.11 KM |
| 5 Ellison Drive | £ 335,000 | 0.11 KM |