Clyde Property says ..
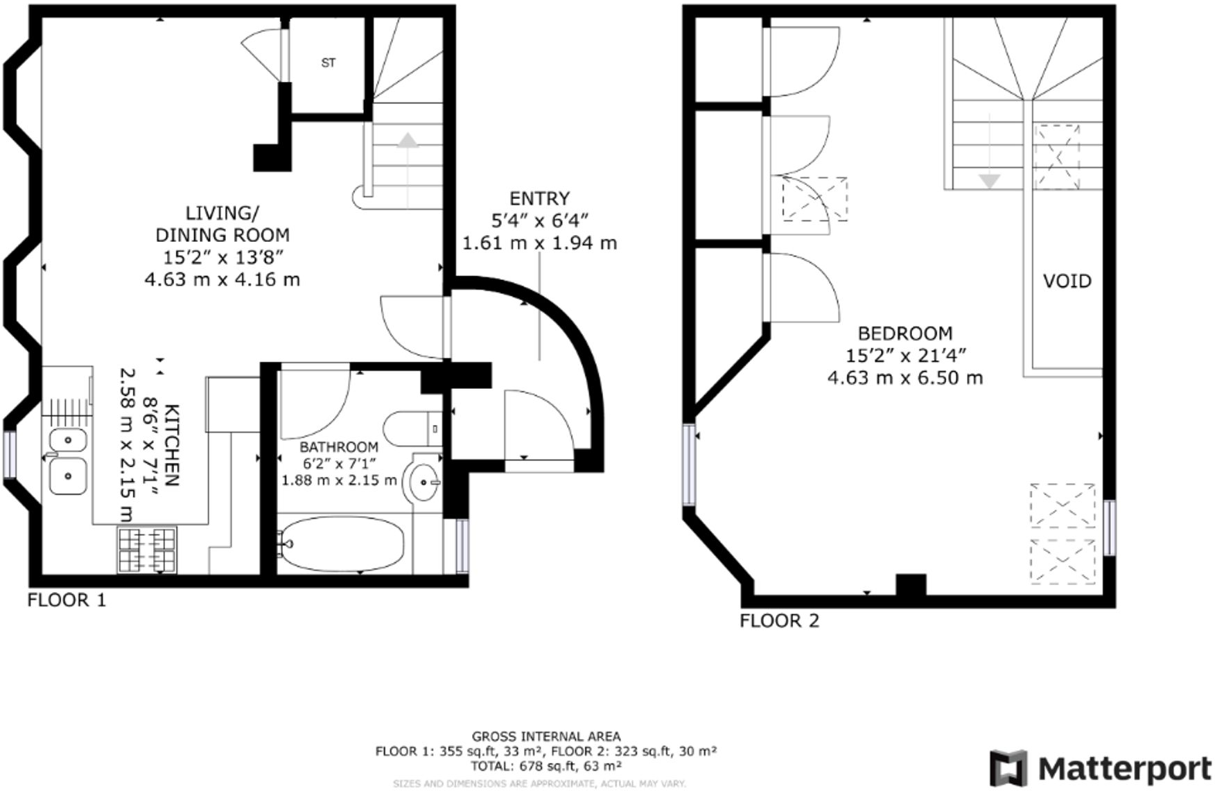
8 Tower Square, Alloa is a beautifully presented mid-terrace cottage forming part of a unique stable conversion within a peaceful and characterful courtyard development.
Property Oracle says ..
Therefore, we give this property 6 / 10. *Disclaimer: This is our option and does constitute a recommendation or financial advice. Do your own research. *
- Price
- 9
- Condition
- 8
- Location
- 7
- Land
- 3
- Bedrooms
- 1
- Bathrooms
- 1
- Sqft (est)
- 669.45
The heatmap indicates the level of crime in the area. The color of the heatmap indicates the crime severity and recency.
Metrics Year-on-Year
- Average area value
- 453,954.00 £Increased by 9.80 %
- Est sale value
- 234,976.95 £Increased by 39.84 %
- Average area rental value
- 1,181.00 £/moIncreased by 9.86 %
- Est letting value
- 0.00 £/mo
- Est rental Yield
- 3.12 %Unchanged by 0.00 %
- Crime Rate
- 0.00 %
from 413,435.00 £
from 168,031.95 £
from 1,075.00 £/mo
from 0.00 £/mo
from 3.12 %
from 0.00 %
Agent Activity
Clyde Property created the listing.
Images
Nearby Streets
| Name | Average Price | Average Sqft | Distance |
|---|---|---|---|
| Kilncraigs Road | £ 0 | 0 | 0.00 KM |
| Rannoch Court | £ 0 | 0 | 0.00 KM |
| Scott Crescent | £ 94,950 | 0 | 0.00 KM |
| Shelduck Park | £ 0 | 0 | 0.00 KM |
| Riverside View | £ 64,995 | 0 | 0.00 KM |
Nearby Transport
| Name | NLC | TLC | Distance |
|---|---|---|---|
| Alloa | 9883 | ALO | 0.68 KM |
Nearby Listings
| Address | Price | Type | Score | Distance |
|---|---|---|---|---|
| Tower Square, Alloa, FK10 | £ 126,000 | BUY | 6 / 10 | 0.00 KM |
| Earn Court, Alloa | £ 114,995 | BUY | 6 / 10 | 0.09 KM |
| Dunvegan Court, Alloa, FK10 | £ 120,000 | BUY | 6 / 10 | 0.14 KM |
| Earn Court, Alloa, FK10 | £ 99,995 | BUY | Unknown | 0.18 KM |
| 35 Earn Court, Alloa | £ 104,950 | BUY | 5 / 10 | 0.18 KM |