Fisher German says ..
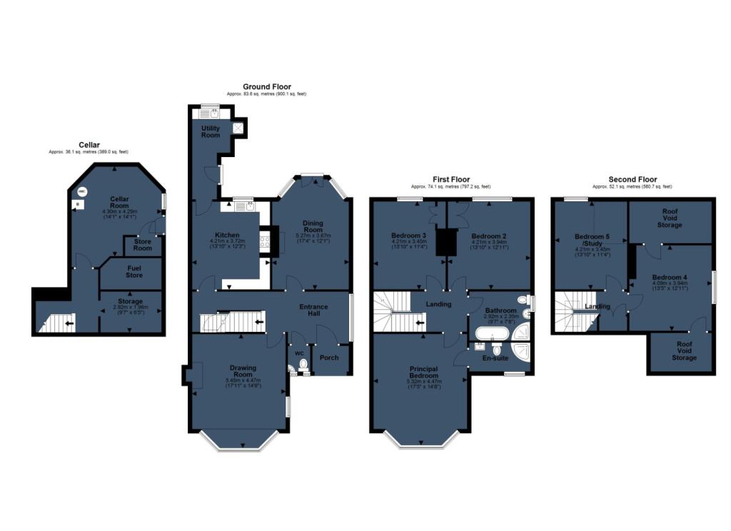
Lister House is a distinguished Edwardian home on a large plot in a central location. Rich in character, it offers great potential for modernisation to create a bespoke family residence.
Property Oracle says ..
Therefore, we give this property 7 / 10. *Disclaimer: This is our option and does constitute a recommendation or financial advice. Do your own research. *
- Price
- 6
- Condition
- 7
- Location
- 8
- Land
- 8
- Bedrooms
- 5
- Bathrooms
- 2
The heatmap indicates the level of crime in the area. The color of the heatmap indicates the crime severity and recency.
Metrics Year-on-Year
- Average area value
- 678,106.00 £Increased by 15.18 %
- Average area rental value
- 1,651.00 £/moDecreased by 17.16 %
- Est rental Yield
- 2.92 %Decreased by 28.08 %
- Crime Rate
- 4.00 %Unchanged by 0.00 %
from 588,724.00 £
from 1,993.00 £/mo
from 4.06 %
from 4.00 %
Agent Activity
Fisher German created the listing.
Nearby Schools
| Name | Type | Ofsted | Distance |
|---|---|---|---|
| Yorston Lodge School | Other Independent School | 0.21 KM | |
| Egerton Primary School | Academy Converter | 0.39 KM | |
| Knutsford Academy | Academy Converter | Good | 0.47 KM |
| Cheshire Studio School | Studio Schools | Good | 0.47 KM |
| Bexton Primary School | Academy Converter | 0.68 KM |
Images
Nearby Streets
| Name | Average Price | Average Sqft | Distance |
|---|---|---|---|
| Gloucester Road | £ 0 | 0 | 0.00 KM |
| Malvern Road | £ 0 | 0 | 0.00 KM |
| Elizabeth Gaskell Court | £ 0 | 0 | 0.00 KM |
| Woodvale Road | £ 1,000,000 | 0 | 0.00 KM |
| Brook Lane | £ 0 | 0 | 0.00 KM |
Nearby Transport
| Name | NLC | TLC | Distance |
|---|---|---|---|
| Knutsford | 2848 | KNF | 0.64 KM |
| Plumley | 2308 | PLM | 5.47 KM |
| Mobberley | 2849 | MOB | 5.81 KM |
| Ashley | 2850 | ASY | 7.37 KM |
| Hale (Manchester) | 2845 | HAL | 9.37 KM |
Nearby Listings
| Address | Price | Type | Score | Distance |
|---|---|---|---|---|
| Knutsford, Cheshire | £ 1,450,000 | BUY | 7 / 10 | 0.00 KM |
| St. Johns Road, Knutsford | £ 600,000 | BUY | 8 / 10 | 0.09 KM |
| St John's Road, Knutsford | £ 1,050,000 | BUY | Unknown | 0.12 KM |
| Lee Close, Knutsford, WA16 | £ 625,000 | BUY | 7 / 10 | 0.12 KM |
| St. Johns Road, Knutsford | £ 750,000 | BUY | Unknown | 0.12 KM |
Nearby Properties
| Address | Price | Distance |
|---|---|---|
| 11 St Peters Avenue | £ 650,000 | 0.02 KM |
| 5 St Peters Avenue | £ 1,280,000 | 0.02 KM |
| 7 St Peters Avenue | £ 1,200,000 | 0.02 KM |
| 2 St Peters Avenue | £ 476,500 | 0.02 KM |
| 3 St Peters Avenue | £ 600,000 | 0.02 KM |