Upper Steeping, Desborough
By Property Perspective
£ 250,000
Reviews
3 out of 5 stars
Property Perspective says ..
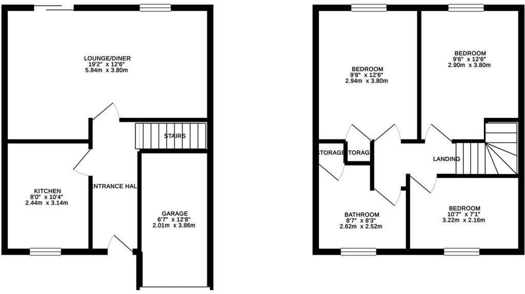
An Established, well maintained three bedroom semi detached family home which provides bright and spacious accommodation across two floors and has well tendered, mature rear gardens that offer high degrees of natural privacy. Both kitchen and bathroom areas have been re fitted and the property th...
Property Oracle says ..
Therefore, we give this property 6 / 10. *Disclaimer: This is our option and does constitute a recommendation or financial advice. Do your own research. *
- Price
- 5
- Condition
- 7
- Location
- 7
- Land
- 7
- Bedrooms
- 3
- Bathrooms
- 1
- Sqft (est)
- 789.55
The heatmap indicates the level of crime in the area. The color of the heatmap indicates the crime severity and recency.
Metrics Year-on-Year
- Average area value
- 386,250.00 £Increased by 7.91 %
- Est sale value
- 185,544.25 £Decreased by 17.54 %
- Average area rental value
- 1,148.00 £/moIncreased by 19.33 %
- Est letting value
- 0.00 £/mo
- Est rental Yield
- 3.57 %Increased by 10.53 %
- Crime Rate
- 13.00 %Unchanged by 0.00 %
from 357,924.00 £
from 225,021.75 £
from 962.00 £/mo
from 0.00 £/mo
from 3.23 %
from 13.00 %
Agent Activity
Property Perspective created the listing.
Nearby Schools
| Name | Type | Ofsted | Distance |
|---|---|---|---|
| Havelock Junior School | Academy Converter | Good | 0.50 KM |
| Havelock Infant School | Academy Converter | Outstanding | 0.59 KM |
| Desborough Children'S Centre | Children's Centre | 0.76 KM | |
| Loatlands Primary School | Academy Converter | Good | 1.65 KM |
| Montsaye Academy | Academy Converter | Good | 1.67 KM |
Images
Nearby Streets
| Name | Average Price | Average Sqft | Distance |
|---|---|---|---|
| Paddock Lane | £ 180,000 | 0 | 0.00 KM |
| Paddock Mews | £ 0 | 0 | 0.00 KM |
| Kings Court | £ 0 | 0 | 0.00 KM |
| Cromwell Close | £ 0 | 0 | 0.00 KM |
| Rabbit Close | £ 340,000 | 0 | 0.00 KM |
Nearby Listings
| Address | Price | Type | Score | Distance |
|---|---|---|---|---|
| Upper Steeping, Desborough | £ 250,000 | BUY | 6 / 10 | 0.00 KM |
| Upper Steeping, Desborough, Kettering | £ 245,000 | BUY | 7 / 10 | 0.04 KM |
| Upper Steeping, Desborough, NN14 2SQ | £ 300,000 | BUY | 7 / 10 | 0.04 KM |
| Milholm Road, Desborough | £ 340,000 | BUY | 8 / 10 | 0.07 KM |
| Millholm Road, Desborough, NN14 | £ 250,000 | BUY | 7 / 10 | 0.10 KM |
Nearby Properties
| Address | Price | Distance |
|---|---|---|
| 12 Upper Steeping | £ 150,000 | 0.04 KM |
| 4 Upper Steeping | £ 189,995 | 0.04 KM |
| 17 Upper Steeping | £ 265,000 | 0.04 KM |
| 2 Upper Steeping | £ 160,000 | 0.04 KM |
| 14 Upper Steeping | £ 315,000 | 0.04 KM |