7 Boughton Parade Flats Loose Road, Maidstone, Kent, ME15
By Sibley Pares LLP
£ 170,000
Reviews
2 out of 5 stars
Sibley Pares LLP says ..
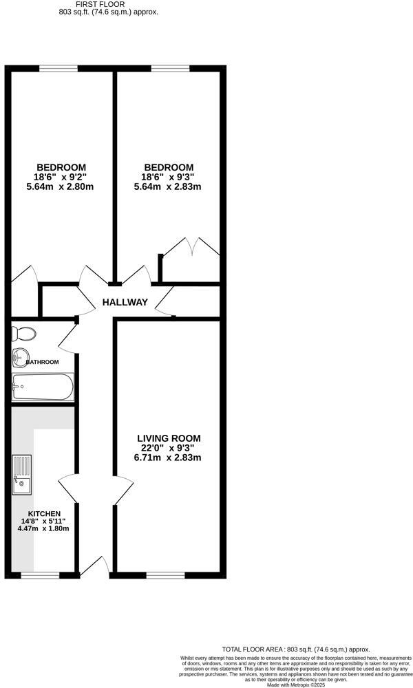
Two bedroom maisonette in a sought after location with no onward chain and ideal for a first home or investment. This spacious apartment comprises living room, fitted kitchen with appliances, two bedrooms with fitted wardrobes and family bathroom with shower over bath. The property also benefits...
Property Oracle says ..
This 2-bedroom maisonette at 7 Boughton Parade Flats on Loose Road in Maidstone presents a potential opportunity for buyers. The property’s location offers convenient access to local amenities and schools. While the interior condition suggests a need for renovation, the reasonable list price of £170,000, compared to the area’s average price per square foot, makes it an attractive prospect for investors or first-time buyers willing to undertake some refurbishment. The lack of a garden may be a drawback for some buyers.
Therefore, we give this property 5 / 10. *Disclaimer: This is our option and does constitute a recommendation or financial advice. Do your own research. *
- Price
- 8
- Condition
- 5
- Location
- 6
- Land
- 1
- Bedrooms
- 2
- Bathrooms
- 1
- Sqft (est)
- 803.00
The heatmap indicates the level of crime in the area. The color of the heatmap indicates the crime severity and recency.
Metrics Year-on-Year
- Average area value
- 279,877.00 £Decreased by 1.23 %
- Est sale value
- 294,701.00 £Increased by 21.12 %
- Average area rental value
- 1,053.00 £/moDecreased by 7.39 %
- Est letting value
- 803.00 £/moUnchanged by 0.00 %
- Est rental Yield
- 4.51 %Decreased by 6.43 %
- Crime Rate
- 6.00 %Unchanged by 0.00 %
Agent Activity
Sibley Pares LLP created the listing.
Nearby Schools
| Name | Type | Ofsted | Distance |
|---|---|---|---|
| New Line Learning Academy | Academy Sponsor Led | Good | 0.62 KM |
| Tiger Primary School | Free Schools | Requires improvement | 0.62 KM |
| Five Acre Wood School | Foundation Special School | Outstanding | 0.71 KM |
| Loose Primary School | Academy Converter | 1.12 KM | |
| Park Way Primary School | Community School | Good | 1.21 KM |
Images
Nearby Streets
| Name | Average Price | Average Sqft | Distance |
|---|---|---|---|
| Wheatsheaf Close | £ 0 | 0 | 0.00 KM |
| Birchfield Close | £ 0 | 0 | 0.00 KM |
| Cranmer Court | £ 0 | 0 | 0.00 KM |
| Strachan Close | £ 190,000 | 0 | 0.00 KM |
| Enterprise Road | £ 0 | 0 | 0.00 KM |
Nearby Transport
| Name | NLC | TLC | Distance |
|---|---|---|---|
| Maidstone West | 5222 | MDW | 2.38 KM |
| Maidstone East | 5115 | MDE | 2.89 KM |
| Maidstone Barracks | 5237 | MDB | 3.12 KM |
| East Farleigh | 5234 | EFL | 4.76 KM |
| Bearsted | 5091 | BSD | 6.09 KM |
Nearby Listings
| Address | Price | Type | Score | Distance |
|---|---|---|---|---|
| 7 Boughton Parade Flats Loose Road, Maidstone, Kent, ME15 | £ 170,000 | BUY | 5 / 10 | 0.00 KM |
| Loose Road, Maidstone | £ 500,000 | BUY | Unknown | 0.13 KM |
| Shernolds, Loose, Maidstone, Kent | £ 675,000 | BUY | Unknown | 0.15 KM |
| Shernolds, Loose, Maidstone, Kent | £ 446,000 | BUY | Unknown | 0.15 KM |
| Contemporary Family Residence, Loose Road, Maidstone | £ 950,000 | BUY | 8 / 10 | 0.15 KM |
Nearby Properties
| Address | Price | Distance |
|---|---|---|
| 8 Pearce Gardens | £ 350,000 | 0.13 KM |
| 410 Loose Road | £ 293,000 | 0.14 KM |
| 406 Loose Road | £ 450,000 | 0.14 KM |
| 398 Loose Road | £ 440,000 | 0.14 KM |
| 384 Loose Road | £ 660,000 | 0.14 KM |