eXp UK says ..
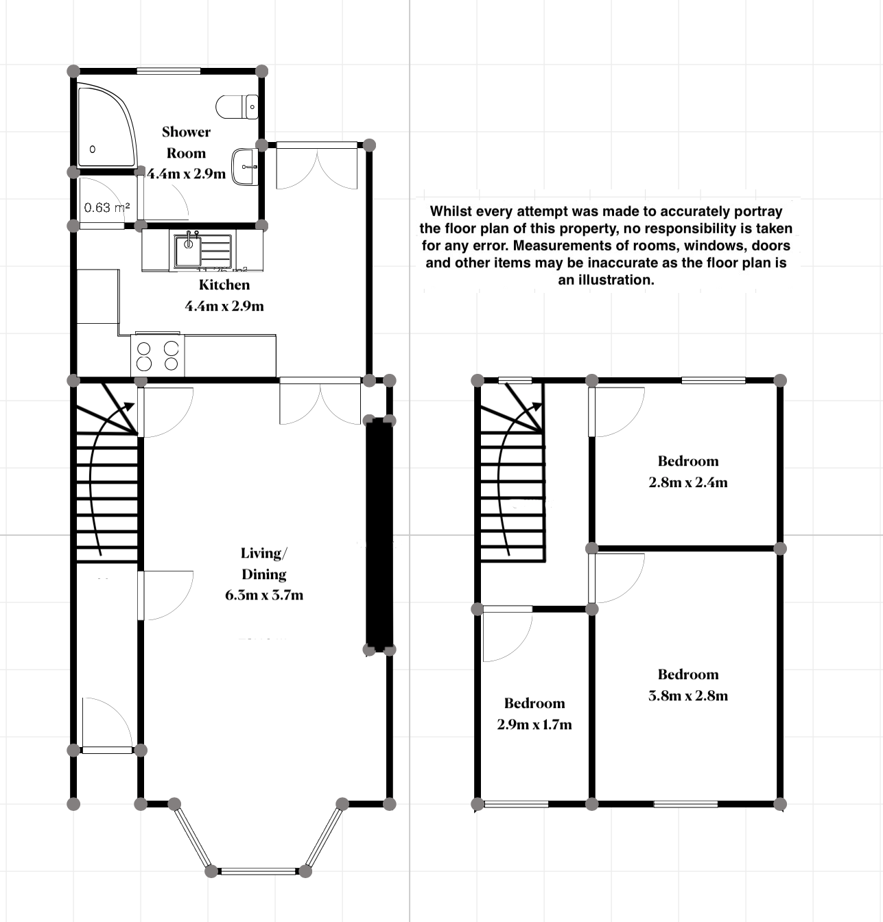
This charming home, located in the desirable area of Graigwen, Pontypridd, is perfectly positioned within walking distance of the town. Offered for sale with no onward chain, this delightful property is an ideal choice for first-time buyers. Call to arrange your viewing quoting Ref: JT0731.
Property Oracle says ..
Therefore, we give this property 6 / 10. *Disclaimer: This is our option and does constitute a recommendation or financial advice. Do your own research. *
- Price
- 6
- Condition
- 6
- Location
- 7
- Land
- 5
- Bedrooms
- 3
- Bathrooms
- 1
- Sqft (est)
- 765.53
The heatmap indicates the level of crime in the area. The color of the heatmap indicates the crime severity and recency.
Metrics Year-on-Year
- Average area value
- 242,000.00 £Decreased by 4.05 %
- Est sale value
- 179,899.55 £Increased by 10.85 %
- Average area rental value
- 437.00 £/moDecreased by 50.79 %
- Est letting value
- 0.00 £/mo
- Est rental Yield
- 2.17 %Decreased by 48.70 %
- Crime Rate
- 7.00 %Unchanged by 0.00 %
from 252,211.00 £
from 162,292.36 £
from 888.00 £/mo
from 0.00 £/mo
from 4.23 %
from 7.00 %
Agent Activity
eXp UK created the listing.
Nearby Schools
| Name | Type | Ofsted | Distance |
|---|---|---|---|
| Ysgol G.G. Evan James | Welsh Establishment | 0.61 KM | |
| Coedylan Primary School | Welsh Establishment | 0.73 KM | |
| Maes-Y-Coed Primary School | Welsh Establishment | 0.89 KM | |
| Trehopcyn Primary School | Welsh Establishment | 1.06 KM | |
| Trallwng Infants School | Welsh Establishment | 1.57 KM |
Images
Nearby Streets
| Name | Average Price | Average Sqft | Distance |
|---|---|---|---|
| Hurford Crescent | £ 0 | 0 | 0.00 KM |
| Seaton's Place | £ 0 | 0 | 0.00 KM |
| Golygfa'r Eglwys | £ 344,950 | 0 | 0.00 KM |
| Golygafar Eglwys | £ 0 | 0 | 0.00 KM |
| Priory Close | £ 0 | 0 | 0.00 KM |
Nearby Transport
| Name | NLC | TLC | Distance |
|---|---|---|---|
| Pontypridd | 3904 | PPD | 1.08 KM |
| Trefforest | 3887 | TRF | 3.05 KM |
| Trehafod | 3888 | TRH | 3.62 KM |
| Abercynon | 3801 | ACY | 4.90 KM |
| Porth | 3870 | POR | 6.54 KM |
Nearby Listings
| Address | Price | Type | Score | Distance |
|---|---|---|---|---|
| Hillside View, Graigwen Pontypridd, CF37 2LG | £ 275,000 | BUY | 7 / 10 | 0.11 KM |
| Hillside View, Graigwen, Pontypridd, CF37 | £ 449,950 | BUY | 7 / 10 | 0.12 KM |
| Hillside View, Graigwen, Pontypridd | £ 165,000 | BUY | 7 / 10 | 0.13 KM |
| Graigwen Road, Graigwen, Pontypridd | £ 190,000 | BUY | Unknown | 0.16 KM |
| Graigwen Road, Pontypridd | £ 260,000 | BUY | Unknown | 0.19 KM |
Nearby Properties
| Address | Price | Distance |
|---|---|---|
| 17 Graigwen Road | £ 51,000 | 0.01 KM |
| Mountain View | £ 349,950 | 0.03 KM |
| 35 Graigwen Road | £ 100,000 | 0.03 KM |
| Sunny Bank | £ 242,250 | 0.03 KM |
| Bryngolau | £ 302,500 | 0.03 KM |