Hills says ..
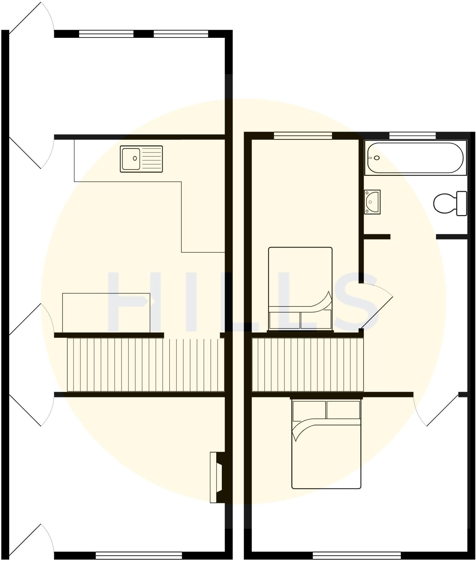
Prime location two bed terraced property overlooking the park. Spacious lounge, open plan kitchen/dining, utility room. Generous master bedroom, sunny garden. Close to amenities, great potential for homebuyers and investors.
Property Oracle says ..
This two-bedroom terraced house in Eccles, Salford is listed at £160,000. The property benefits from a small rear yard. The location is convenient, with nearby schools and transport links. However, the property is smaller than average for the area (400 sqft vs 772 sqft average) and appears to be in satisfactory condition, though not needing any major renovations. The list price is below the average price for the area (£160,000 vs £223,000 average), but the smaller size should be considered. Nearby comparable properties show a range of prices, suggesting some variability in the market.
Therefore, we give this property 5 / 10. *Disclaimer: This is our option and does constitute a recommendation or financial advice. Do your own research. *
- Price
- 7
- Condition
- 6
- Location
- 7
- Land
- 3
- Bedrooms
- 2
- Bathrooms
- 1
- Sqft (est)
- 400.00
The heatmap indicates the level of crime in the area. The color of the heatmap indicates the crime severity and recency.
Metrics Year-on-Year
- Average area value
- 245,000.00 £Increased by 3.26 %
- Est sale value
- 175,200.00 £Increased by 58.70 %
- Average area rental value
- 899.00 £/moDecreased by 12.97 %
- Est letting value
- 400.00 £/moUnchanged by 0.00 %
- Est rental Yield
- 4.40 %Decreased by 15.71 %
- Crime Rate
- 0.00 %
Agent Activity
Hills marked this listing as sold.
Hills created the listing.
Nearby Schools
| Name | Type | Ofsted | Distance |
|---|---|---|---|
| Lewis Street Primary School | Community School | Good | 0.10 KM |
| Holy Cross And All Saints Rc Primary School | Voluntary Aided School | Good | 0.28 KM |
| Christ Church Cofe Primary School | Voluntary Aided School | Good | 0.43 KM |
| Brambles School | Other Independent Special School | Good | 0.49 KM |
| Maple House School | Other Independent Special School | Good | 0.49 KM |
Images
Nearby Streets
| Name | Average Price | Average Sqft | Distance |
|---|---|---|---|
| Lime Street | £ 0 | 0 | 0.00 KM |
| Enfield Close | £ 220,000 | 0 | 0.00 KM |
| Queen Victoria Street | £ 0 | 0 | 0.00 KM |
| Eccles Definitive Footpath 36 | £ 0 | 0 | 0.00 KM |
| Watson Street | £ 0 | 0 | 0.00 KM |
Nearby Transport
| Name | NLC | TLC | Distance |
|---|---|---|---|
| Patricroft | 2916 | PAT | 0.78 KM |
| Eccles (Manchester) | 2950 | ECC | 2.15 KM |
| Urmston | 2938 | URM | 3.53 KM |
| Moorside | 2799 | MSD | 4.04 KM |
| Chassen Road | 2947 | CSR | 4.11 KM |
Nearby Listings
| Address | Price | Type | Score | Distance |
|---|---|---|---|---|
| Ivy Street, Eccles, M30 | £ 160,000 | BUY | 5 / 10 | 0.00 KM |
| Mellor Street, Eccles, Manchester, Greater Manchester, M30 | £ 110,000 | BUY | 5 / 10 | 0.12 KM |
| Mellor Street, Manchester, Greater Manchester, M30 | £ 145,000 | BUY | 5 / 10 | 0.12 KM |
| Wilham Avenue, Eccles, M30 | £ 230,000 | BUY | 6 / 10 | 0.24 KM |
| Cawdor Street, Eccles, Manchester, Greater Manchester, M30 | £ 280,000 | BUY | 7 / 10 | 0.25 KM |
Nearby Properties
| Address | Price | Distance |
|---|---|---|
| 25 Ivy Street | £ 57,500 | 0.02 KM |
| 7 Ivy Street | £ 69,950 | 0.02 KM |
| 23 Ivy Street | £ 87,500 | 0.02 KM |
| 15 Ivy Street | £ 125,000 | 0.02 KM |
| 1 Ivy Street | £ 61,500 | 0.02 KM |