Mark Ewin says ..
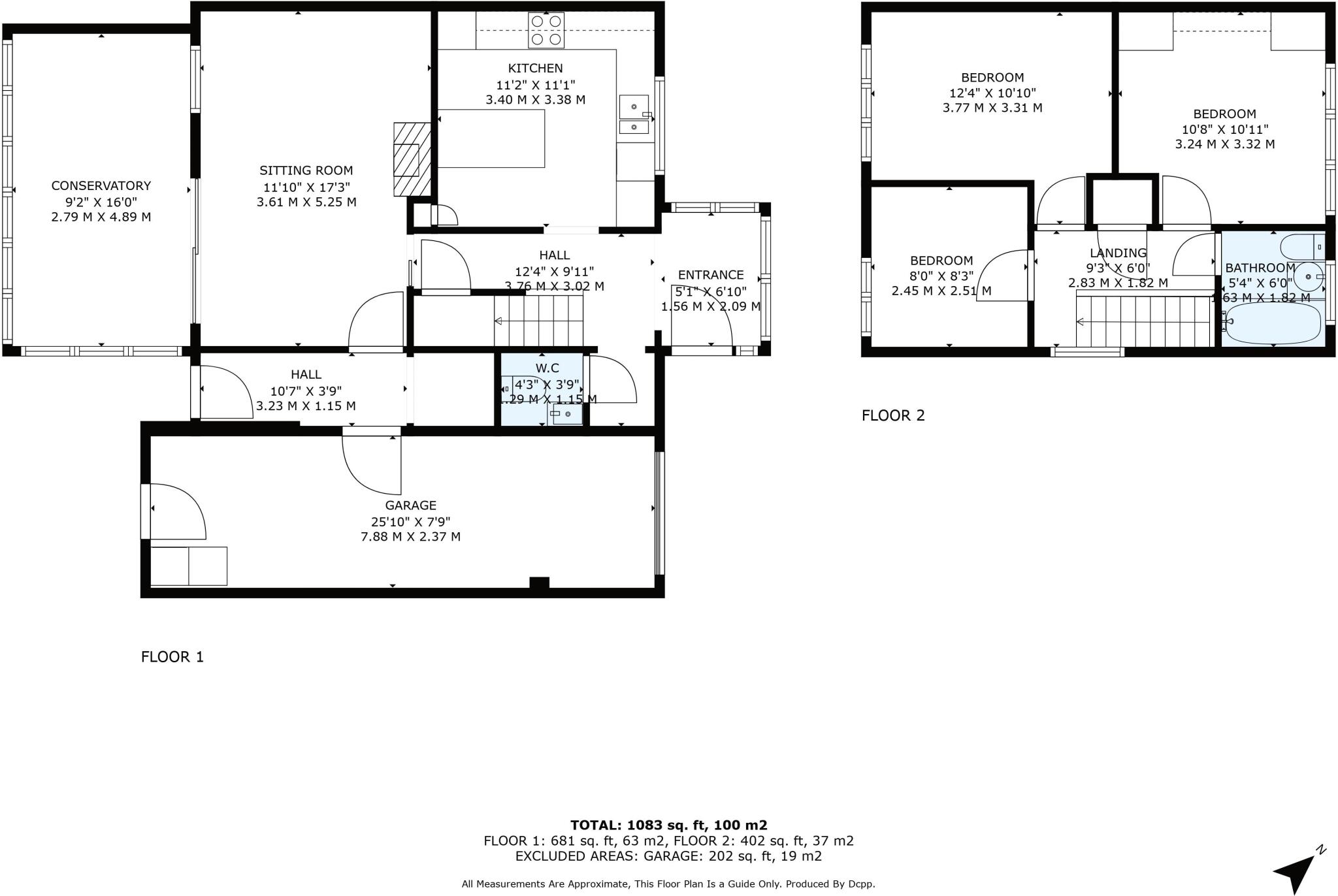
Located to the popular western outskirts of Bury St Edmunds is this three-bedroom semi-detached house benefitting from field views to the rear, a garage and off-road parking. The property offer accommodation to include an entrance hall, cloakroom sitting room with a wood burner, modern kitchen...
Property Oracle says ..
This three-bedroom semi-detached property is located in the Minden area of Bury St Edmunds, Suffolk. The property benefits from off-road parking and a garage. Based on the photos, the property appears to be in good condition with a recently updated kitchen. There is a conservatory and a garden with patio area and raised decking. The location is convenient with nearby schools (Westley Middle School, Sexton’s Manor Community Primary School, Horringer Court Middle School) all rated as “Good” by Ofsted, and is within a reasonable distance of Bury St Edmunds town centre. The list price of £350,000 seems reasonable considering the condition, location, and included land, although further comparative market analysis with similar properties in the area would be beneficial to confirm this.
Therefore, we give this property 7 / 10. *Disclaimer: This is our option and does constitute a recommendation or financial advice. Do your own research. *
- Price
- 7
- Condition
- 8
- Location
- 8
- Land
- 7
- Bedrooms
- 3
- Bathrooms
- 1
- Sqft (est)
- 1,122.00
- Lot (est)
- 1,083.00
The heatmap indicates the level of crime in the area. The color of the heatmap indicates the crime severity and recency.
Metrics Year-on-Year
- Average area value
- 762,500.00 £Increased by 121.14 %
- Est sale value
- 315,282.00 £Decreased by 41.70 %
- Average area rental value
- 1,663.00 £/moIncreased by 17.36 %
- Est letting value
- 0.00 £/moDecreased by 100.00 %
- Est rental Yield
- 2.62 %Decreased by 46.86 %
- Crime Rate
- 7.00 %Unchanged by 0.00 %
Agent Activity
Mark Ewin created the listing.
Nearby Schools
| Name | Type | Ofsted | Distance |
|---|---|---|---|
| Westley Middle School | Academy Converter | Good | 0.41 KM |
| Sexton'S Manor Community Primary School | Community School | Good | 0.77 KM |
| Horringer Court Middle School | Academy Converter | Good | 1.09 KM |
| Abbeygate Sixth Form College | Free Schools 16 To 19 | 1.95 KM | |
| West Suffolk College | Further Education | Good | 2.05 KM |
Images
Nearby Streets
| Name | Average Price | Average Sqft | Distance |
|---|---|---|---|
| Paddock Close | £ 0 | 0 | 0.00 KM |
| Gainsborough Road | £ 0 | 0 | 0.00 KM |
| Langton Road | £ 325,000 | 0 | 0.00 KM |
| Briarwood Avenue | £ 0 | 0 | 0.00 KM |
| Western Way (East) | £ 765,000 | 0 | 0.00 KM |
Nearby Transport
| Name | NLC | TLC | Distance |
|---|---|---|---|
| Bury St Edmunds | 7008 | BSE | 3.58 KM |
Nearby Listings
| Address | Price | Type | Score | Distance |
|---|---|---|---|---|
| Bockhill Road, Bury St Edmunds | £ 350,000 | BUY | 7 / 10 | 0.00 KM |
| Bockhill Road, Bury St Edmunds | £ 375,000 | BUY | 8 / 10 | 0.02 KM |
| Bronyon Close, Bury St Edmunds | £ 300,000 | BUY | Unknown | 0.09 KM |
| Bronyon Close, Bury St. Edmunds | £ 300,000 | BUY | 7 / 10 | 0.10 KM |
| Starre Road, Bury St Edmunds, IP33 | £ 385,000 | BUY | 7 / 10 | 0.11 KM |
Nearby Properties
| Address | Price | Distance |
|---|---|---|
| 19 Bockhill Road | £ 186,000 | 0.03 KM |
| 34 Bockhill Road | £ 190,000 | 0.03 KM |
| 35 Bockhill Road | £ 191,000 | 0.03 KM |
| 33 Bockhill Road | £ 290,000 | 0.03 KM |
| 22 Bockhill Road | £ 270,000 | 0.03 KM |